Одноэтажный Дом в Ренессанс Парке
ID10798 Продажа
- Шоссе Новорижское шоссе
- Населенный пункт Чесноково
- Поселок Ренессанс парк
- Расстояние от МКАД 19 км
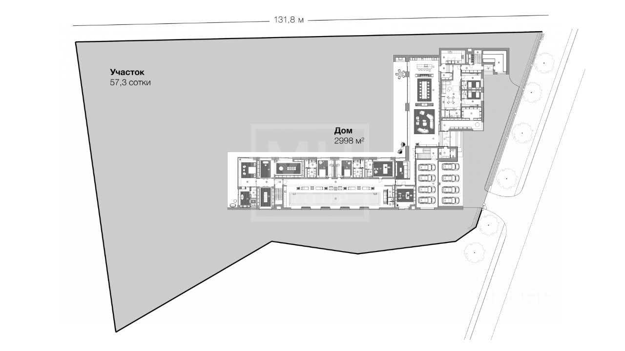
- Площадь объекта 2998 м²
- Площадь участка 74 сот.
Расположение
- Шоссе Новорижское шоссе
- Населенный пункт Чесноково
- Поселок Ренессанс парк
- Удаленность от МКАД 19 км
Объект
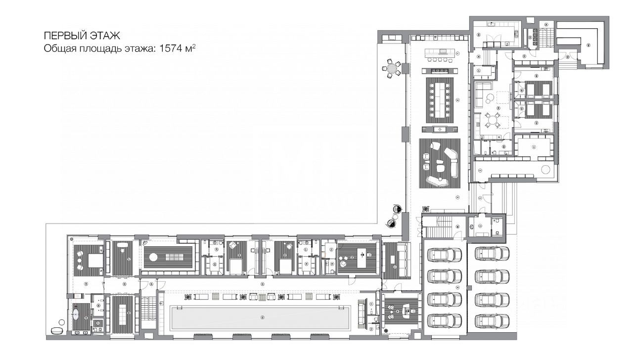
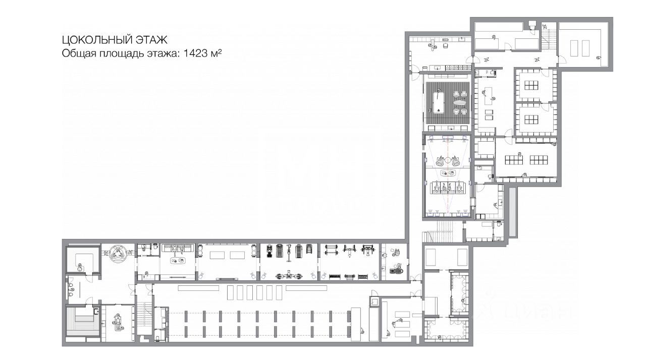
- Площадь дома2998 м²
- Кол-во спален5
- Год постройки здания2022
- Отделкачерновая отделка
Коммуникации
- Водоснабжениецентральное
- Газмагистральный
- Канализацияцентральная
- Электричествода
Дополнительно
- Бассейнда
- Баняда
- Гараж м\мда
- Гостевой домда
- Доп. строенияда
Описание
Современный, одноэтажный дом из белого камня с панорамным остеклением. В данном проекте содержится комплексный инновационный подход:- современная технологичность, функциональность, лаконичность и первоосновы зодчества, которые раскрывают все грани его строительства.
В проекте дома учтены подходы ведической архитектуры:
- посадка здания на местности, с учетом расположения сторон света
- размещение окон и входной двери, для сохранения естественного освещения внутреннего пространства, согласно движению солнца
- зонирование и совмещение жилых и нежилых помещений под одной крышей.
- просторные внутренние помещения дарят комфорт и расширяют потенциал для реализации самых смелых идей.
Системы террас, как место эмоционального притяжения для объединения с близкими
- атмосфера для формирования личных традиций, как места Вашей силы и преемственности.
Архитектор, который разрабатывал проект этого дома, имеет богатый опыт воплощать лучшее для особо взыскательных клиентов. В предлагаемом проекте сошлись тенденции современных классиков архитектуры. Архитектурный стиль позволяет воплотить в нем свои личные предпочтения и вкус.
Благодаря качественному остеклению, панорамным окнам, без переплета и оптических линз, природа воспринимается единым целым с внутренним пространством дома.
Дом полностью построен в 2022 году. Строительство выполнялось известной своим качеством компанией SVARGO. На середину лета 2023 года дом прошел проверку, отстоялся, получено заключение качества строительства.
Завершена кровля, смонтирована канализационно-насосная станция хозяйственно бытовой и ливневой канализации (КНС). В дом заведено центральное водоснабжение, магистральный газ, выделенная электрическая мощность 100 кВт.
Ведутся работы по остеклению, утеплению и облицовке фасада. Завершение всех работ запланировано до конца 2023 года.
Разработана проектная документация и варианты дизайн-проектов с визуализацией.
Индивидуализация внутреннего дизайна, отдельно согласовывается с будущим владельцем.
Имеется полный подбор высококачественных материалов для согласования.
Для всех инженерных систем и внутренних отделочных работ собрана команда грамотных и опытных специалистов.
Индивидуально изготовлены системы уличного и интерьерного освещения ЦЕНТРСВЕТ.
19 км
от МКАД
от МКАД
800 м²
S объекта
S объекта
108 сот.
S участка
S участка
900 000 000
26 км
от МКАД
от МКАД
1700 м²
S объекта
S объекта
150 сот.
S участка
S участка
863 808 768
19 км
от МКАД
от МКАД
1000 м²
S объекта
S объекта
20.5 сот.
S участка
S участка
730 000 000
20 км
от МКАД
от МКАД
у воды
114.9 сот.
S участка
S участка
998 535 451
9 км
от МКАД
от МКАД
850 м²
S объекта
S объекта
27 сот.
S участка
S участка
746 016 664
19 км
от МКАД
от МКАД
847 м²
S объекта
S объекта
25.2 сот.
S участка
S участка
429 000 000
15 км
от МКАД
от МКАД
550 м²
S объекта
S объекта
24 сот.
S участка
S участка
212 025 789
20 км
от МКАД
от МКАД
410 м²
S объекта
S объекта
50 сот.
S участка
S участка
175 000 000
1 км
от МКАД
от МКАД
400 м²
S объекта
S объекта
7 сот.
S участка
S участка
225 000 000
27 км
от МКАД
от МКАД
570 м²
S объекта
S объекта
18 сот.
S участка
S участка
128 000 000
24 км
от МКАД
от МКАД
прилесной
17 сот.
S участка
S участка
65 000 000
5 км
от МКАД
от МКАД
270 м²
S объекта
S объекта
4 сот.
S участка
S участка
115 000 000
23 км
от МКАД
от МКАД
800 м²
S объекта
S объекта
25 сот.
S участка
S участка
300 000 000
20 км
от МКАД
от МКАД
у воды
30.88 сот.
S участка
S участка
420 000 000
23 км
от МКАД
от МКАД
полевой
47 сот.
S участка
S участка
117 500 000
15 км
от МКАД
от МКАД
1000 м²
S объекта
S объекта
40 сот.
S участка
S участка
420 000 000
11 км
от МКАД
от МКАД
415 м²
S объекта
S объекта
12 сот.
S участка
S участка
360 000 000
22 км
от МКАД
от МКАД
1100 м²
S объекта
S объекта
48 сот.
S участка
S участка
255 000 000
15 км
от МКАД
от МКАД
прилесной
42 сот.
S участка
S участка
320 000 000
23 км
от МКАД
от МКАД
-
120.6 сот.
S участка
S участка
301 500 000
24 км
от МКАД
от МКАД
415 м²
S объекта
S объекта
4 сот.
S участка
S участка
49 000 000
7 км
от МКАД
от МКАД
646 м²
S объекта
S объекта
11 сот.
S участка
S участка
390 000 000
5 км
от МКАД
от МКАД
1015 м²
S объекта
S объекта
56 сот.
S участка
S участка
1 590 000 000
24 км
от МКАД
от МКАД
550 м²
S объекта
S объекта
30 сот.
S участка
S участка
298 406 665
5 км
от МКАД
от МКАД
942 м²
S объекта
S объекта
38 сот.
S участка
S участка
1 390 000 000
5 км
от МКАД
от МКАД
862 м²
S объекта
S объекта
38 сот.
S участка
S участка
650 000 000
19 км
от МКАД
от МКАД
847 м²
S объекта
S объекта
25.2 сот.
S участка
S участка
429 000 000