Просторный дом в КП Европа-1
ID8068 Продажа
- Шоссе Рублёво-Успенское шоссе
- Населенный пункт Маслово
- Поселок Европа-1
- Расстояние от МКАД 22 км
- Площадь объекта 1100 м²
- Площадь участка 48 сот.
Расположение
- Шоссе Рублёво-Успенское шоссе
- Новорижское шоссе
- Ильинское шоссе
- Населенный пункт Маслово
- Поселок Европа-1
- Удаленность от МКАД 22 км
Объект
- Площадь дома1100 м²
- Кол-во спален7
- Год постройки здания2013
- Отделкапод ключ с мебелью
Коммуникации
- Водоснабжениеиндивидуальная скважина
- Газмагистральный
- Канализацияцентральная
- Электричествода
Дополнительно
- Гараж м\мда
- Гостевой домда
- Доп. строенияда
- Барбекюда
- Помещение для персоналада
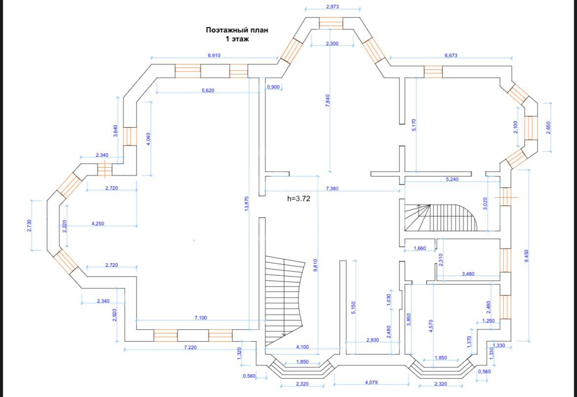
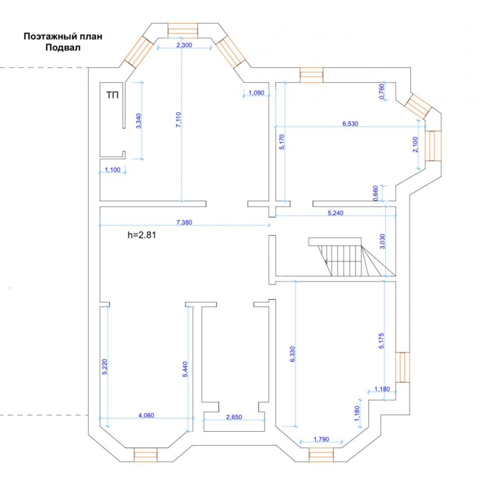
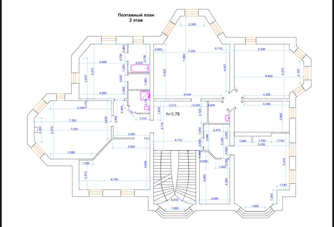
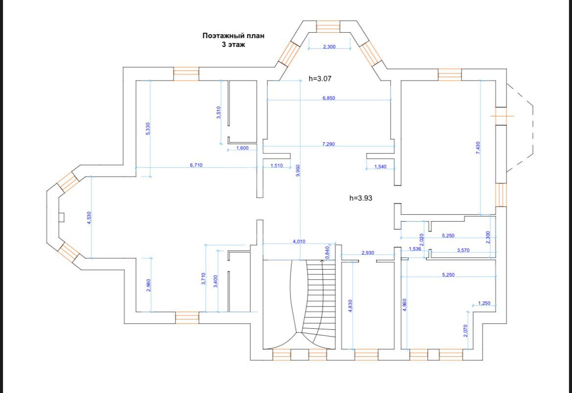
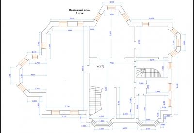
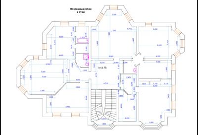
Планировки
Цоколь: постирочная, кладовая, помещение свободного назначения, гардеробная, санузел, котельная, тренажерный зал
Этаж 1: холл, гардеробная, санузел, прихожая, гостиная, каминный зал с выходом на террасу , кухня-столовая с выходом на террасу.
Этаж 2: холл, мастер-спальня, спальня с гардеробной и санузлом - 2шт., спальня с гардеробной - 2шт., ванная комната
Этаж 3: холл, спальня с санузлом, кабинет, детская игровая, помещение свободного назначения
Описание
Уникальное предложение в строго охраняемом посёлке вблизи всей необходимой инфраструктуры в экологическом чистом месте с исключительными условиями для жизни. Транспортная доступность позволяет выехать по Ильинскому шоссе на Рублёво - успенское шоссе , так и выезда в сторону Новорижского шоссе . Светлый просторный дом в классическом стиле на участке 48 соток с эксклюзивным ландшафтным дизайном, продуманным зонированием участка в охраняемом коттеджном посёлке "Европа-1". В доме оборудовано семь спален со своими санузлами и гардеробными, просторная гостиная с высокими потолками, камином и выходом в зону барбекю, а также достаточное количество помещений свободного назначения, которые можно адаптировать согласно пожеланиям нового собственника . На цокольном этаже есть помещения для персонала, имеющие автономный вход с улицы. Помимо основного дома, на участке располагается гостевой дом с гаражом общей площадью 210 м2. Ландшафтный дизайн участка разработан в индивидуальном порядке и включает в себя различные декоративные кустарники, плодовые и хвойные деревья. Изюминкой участка является ухоженный живописный пруд. Дорожки на территории участка вымощены брусчаткой, а подъезды к дому и гаражу - клинкерной плиткой. Установлено уличное освещение и охранная система.
23 км
от МКАД
от МКАД
527 м²
S объекта
S объекта
14 сот.
S участка
S участка
190 000 000
22 км
от МКАД
от МКАД
650 м²
S объекта
S объекта
17.5 сот.
S участка
S участка
270 000 000
22 км
от МКАД
от МКАД
750 м²
S объекта
S объекта
12 сот.
S участка
S участка
215 000 000
13 км
от МКАД
от МКАД
460 м²
S объекта
S объекта
23 сот.
S участка
S участка
110 000 000
9 км
от МКАД
от МКАД
750 м²
S объекта
S объекта
8 сот.
S участка
S участка
276 986 669
Квартира с огромной террасой в ЖК Остров Фантазий
ID5028 Продажа
Рублёво-Успенское шоссе, Западный, Крылатское
1 км
от МКАД
от МКАД
245 м²
S объекта
S объекта
Под ключ
с мебелью
с мебелью
230 000 000
23 км
от МКАД
от МКАД
-
84 сот.
S участка
S участка
135 000 000
24 км
от МКАД
от МКАД
1050 м²
S объекта
S объекта
26 сот.
S участка
S участка
486 502 227
8 км
от МКАД
от МКАД
-
20.64 сот.
S участка
S участка
105 000 000
9 км
от МКАД
от МКАД
лесной
17.7 сот.
S участка
S участка
126 135 468
1 км
от МКАД
от МКАД
1830 м²
S объекта
S объекта
15 сот.
S участка
S участка
578 459 809
9 км
от МКАД
от МКАД
220 м²
S объекта
S объекта
8 сот.
S участка
S участка
132 000 000
9 км
от МКАД
от МКАД
1650 м²
S объекта
S объекта
70 сот.
S участка
S участка
826 371 156
15 км
от МКАД
от МКАД
1200 м²
S объекта
S объекта
50 сот.
S участка
S участка
333 804 447
4 км
от МКАД
от МКАД
343 м²
S объекта
S объекта
Под ключ
с мебелью
с мебелью
213 066 669
15 км
от МКАД
от МКАД
прилесной
42 сот.
S участка
S участка
320 000 000
14 км
от МКАД
от МКАД
560 м²
S объекта
S объекта
25 сот.
S участка
S участка
134 942 223
13 км
от МКАД
от МКАД
535 м²
S объекта
S объекта
18 сот.
S участка
S участка
490 000 000
5 км
от МКАД
от МКАД
862 м²
S объекта
S объекта
38 сот.
S участка
S участка
650 000 000
24 км
от МКАД
от МКАД
550 м²
S объекта
S объекта
30 сот.
S участка
S участка
269 884 447
24 км
от МКАД
от МКАД
415 м²
S объекта
S объекта
4 сот.
S участка
S участка
49 000 000
5 км
от МКАД
от МКАД
1015 м²
S объекта
S объекта
56 сот.
S участка
S участка
1 590 000 000
11 км
от МКАД
от МКАД
415 м²
S объекта
S объекта
12 сот.
S участка
S участка
360 000 000
15 км
от МКАД
от МКАД
1000 м²
S объекта
S объекта
40 сот.
S участка
S участка
400 000 000
5 км
от МКАД
от МКАД
942 м²
S объекта
S объекта
38 сот.
S участка
S участка
1 390 000 000
22 км
от МКАД
от МКАД
лесной
60 сот.
S участка
S участка
78 000 000
7 км
от МКАД
от МКАД
646 м²
S объекта
S объекта
11 сот.
S участка
S участка
550 000 000