Продажа Дом 506 м² на участке 14 сот. в Никологорские дачи
ID12280 Продажа
- Шоссе Рублёво-Успенское шоссе
- Населенный пункт Маслово
- Поселок Никологорские дачи
- Расстояние от МКАД 23 км
- Площадь объекта 506 м²
- Площадь участка 14 сот.
Расположение
- Шоссе Рублёво-Успенское шоссе
- Новорижское шоссе
- Ильинское шоссе
- Населенный пункт Маслово
- Поселок Никологорские дачи
- Удаленность от МКАД 23 км
Объект
- Площадь дома506 м²
- Кол-во спален7
- Отделкапод ключ с мебелью
Коммуникации
- Водоснабжениецентральное
- Газмагистральный
- Канализацияцентральная
- Электричествода
Дополнительно
- Гараж м\мда
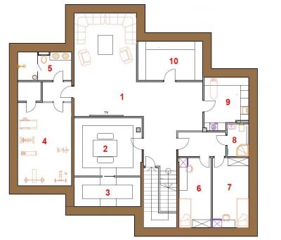
Планировки
Цоколь: Кинотеатр, спортзал, 2 санузла, блок для персонала на 2 комнаты, постирочная, гардеробная, комната хранения.
Этаж 1: Холл, кухня, обеденная зона, гостиная, спальня, 2 санузла, гардеробная, гараж, котельная.
Этаж 2: 4 Спальни, 3 санузла, 3 гардеробные.
Описание
Вашему вниманию предлагается загородный дом в закрытом камерном поселке на 45 домовладений.Дом выполнен в сдержанной стилистике американского архитектора Ллойда Райта и находится в ближайшем расположении от Москвы на Ильинском шоссе.
Благодаря уникальному расположению, Вас вдохновят открывающиеся видовые характеристики на панораму Москвы и комплекс Москва Сити, лесной массив Маслово и Ильинское шоссе с церквями и лесами.
Внутренние интерьеры реализованы в Неоклассическом стиле, выполнены с применением натуральных материалов и европейских инженерных систем.
Дом предлагается с чистовой отделкой.
24 км
от МКАД
от МКАД
300 м²
S объекта
S объекта
15 сот.
S участка
S участка
165 000 000
23 км
от МКАД
от МКАД
590 м²
S объекта
S объекта
19.8 сот.
S участка
S участка
165 000 000
22 км
от МКАД
от МКАД
750 м²
S объекта
S объекта
12 сот.
S участка
S участка
185 000 000
25 км
от МКАД
от МКАД
900 м²
S объекта
S объекта
30 сот.
S участка
S участка
137 000 000
19 км
от МКАД
от МКАД
2100 м²
S объекта
S объекта
63 сот.
S участка
S участка
1 955 707 145
13 км
от МКАД
от МКАД
460 м²
S объекта
S объекта
23 сот.
S участка
S участка
110 000 000
9 км
от МКАД
от МКАД
220 м²
S объекта
S объекта
8 сот.
S участка
S участка
107 000 000
9 км
от МКАД
от МКАД
1650 м²
S объекта
S объекта
70 сот.
S участка
S участка
908 190 974
1 км
от МКАД
от МКАД
1830 м²
S объекта
S объекта
15 сот.
S участка
S участка
635 733 682
28 км
от МКАД
от МКАД
360 м²
S объекта
S объекта
20 сот.
S участка
S участка
107 000 000
28 км
от МКАД
от МКАД
800 м²
S объекта
S объекта
44 сот.
S участка
S участка
62 000 000
9 км
от МКАД
от МКАД
750 м²
S объекта
S объекта
8 сот.
S участка
S участка
305 090 315
7 км
от МКАД
от МКАД
630 м²
S объекта
S объекта
12 сот.
S участка
S участка
188 000 000
24 км
от МКАД
от МКАД
1050 м²
S объекта
S объекта
26 сот.
S участка
S участка
508 483 858
8 км
от МКАД
от МКАД
-
20.64 сот.
S участка
S участка
110 250 000
Квартира с огромной террасой в ЖК Остров Фантазий
ID5028 Продажа
Рублёво-Успенское шоссе, Западный, Крылатское
17 км
от МКАД
от МКАД
245 м²
S объекта
S объекта
Под ключ
с мебелью
с мебелью
230 000 000
23 км
от МКАД
от МКАД
-
120.6 сот.
S участка
S участка
301 500 000
5 км
от МКАД
от МКАД
862 м²
S объекта
S объекта
38 сот.
S участка
S участка
650 000 000
11 км
от МКАД
от МКАД
полевой
15 сот.
S участка
S участка
70 000 000
19 км
от МКАД
от МКАД
847 м²
S объекта
S объекта
25.2 сот.
S участка
S участка
429 000 000
7 км
от МКАД
от МКАД
646 м²
S объекта
S объекта
11 сот.
S участка
S участка
390 000 000
5 км
от МКАД
от МКАД
942 м²
S объекта
S объекта
38 сот.
S участка
S участка
1 350 000 000
15 км
от МКАД
от МКАД
1000 м²
S объекта
S объекта
40 сот.
S участка
S участка
420 000 000
11 км
от МКАД
от МКАД
415 м²
S объекта
S объекта
12 сот.
S участка
S участка
360 000 000
24 км
от МКАД
от МКАД
550 м²
S объекта
S объекта
30 сот.
S участка
S участка
297 267 486
22 км
от МКАД
от МКАД
1100 м²
S объекта
S объекта
48 сот.
S участка
S участка
275 000 000
15 км
от МКАД
от МКАД
прилесной
42 сот.
S участка
S участка
320 000 000
24 км
от МКАД
от МКАД
415 м²
S объекта
S объекта
4 сот.
S участка
S участка
49 000 000