Роскошный дом в Agalarov Estate
ID10912 Продажа
- Шоссе Новорижское шоссе
- Населенный пункт Захарово
- Поселок Агаларов Estate
- Расстояние от МКАД 20 км
- Площадь объекта 864 м²
- Площадь участка 40 сот.
Расположение
- Шоссе Новорижское шоссе
- Новорижское шоссе
- Новорижское шоссе
- Населенный пункт Захарово
- Поселок Агаларов Estate
- Удаленность от МКАД 20 км
Объект
- Площадь дома864 м²
- Кол-во спален4
- Год постройки здания2023
- Отделкапод ключ с мебелью
Коммуникации
- Водоснабжениецентральное
- Газмагистральный
- Канализацияцентральная
- Электричествода
Дополнительно
- Бассейнда
- Баняда
- Гараж м\мда
- Помещение для персоналада
Планировки
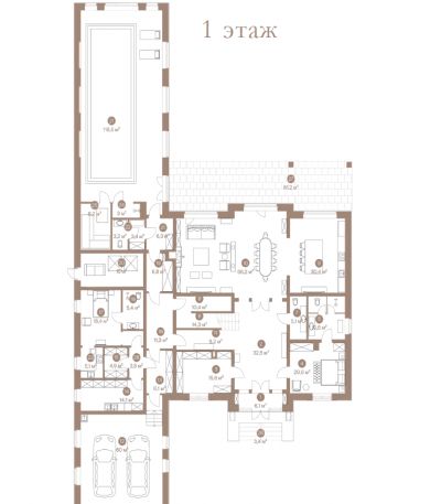
Этаж 1: Прихожая, гардеробная, с/у, спальня с с/у, кухня, столовая, гостиная, спа-зона с бассейном, раздевалкой, с/у, сауной, зона для персонала с кухней, спальней и с/у, котельная, гараж
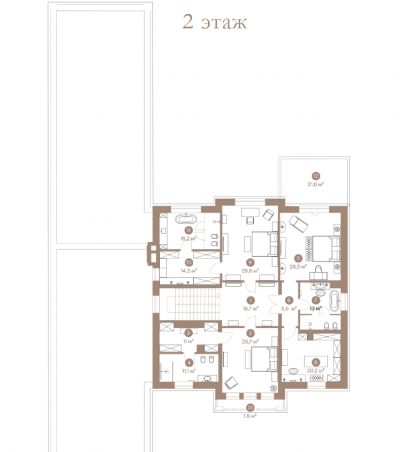
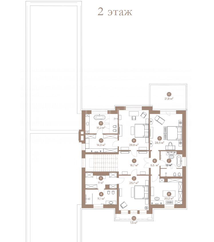
Этаж 2: Мастер-спальня с с/у и гардеробной, 2 спальни с с/у и гардеробными
Описание
Коттеджный посёлок «Агаларов Эстейт» расположен вблизи реки Беляна на 23 километре Новорижского шоссе.Площадь дома – 864 кв.м,участок – 40 соток.
Вокруг развитая инфраструктура, в посёлке есть: гольфполе, фитнес, теннисные корты, детские площадки, рестораны и многое другое.
Отделка фасада выполнена из натурального камня, установлены деревянные стеклопакеты и немецкая фурнитура Siegenia. Применены современные решения по инженерным системам.
Во всех помещениях предусмотрены приточно-вытяжная вентиляция с рекуперацией тепла, канальные кондиционеры Daikin, а также автоматическая регулировка тёплых полов
и конвекторного отопления. В котельной используется надёжное немецкое оборудование производителей Tece, Oventrop, Viega, Wolf,Meibes.
В доме детально продуманная планировка,которая позволит разместиться семье с любым составом: гостиная-столовая с выходом на террасу, кухня, 5 спален, 7 санузлов, SPA-зона с бассейном и сауной, блок персонала, постирочная, гараж на 2 машины.
В отделке использованы:
итальянский керамогранит, мрамор, инженерная доска из дуба, английская краска, дизайнерские обои, итальянская и немецкая сантехника, немецкая кухня из массива с техникой Miele и Liebherr.
20 км
от МКАД
от МКАД
1000 м²
S объекта
S объекта
24.5 сот.
S участка
S участка
750 000 000
20 км
от МКАД
от МКАД
950 м²
S объекта
S объекта
33 сот.
S участка
S участка
798 564 106
15 км
от МКАД
от МКАД
550 м²
S объекта
S объекта
24 сот.
S участка
S участка
205 345 056
5 км
от МКАД
от МКАД
270 м²
S объекта
S объекта
4 сот.
S участка
S участка
95 000 000
23 км
от МКАД
от МКАД
полевой
47 сот.
S участка
S участка
117 500 000
20 км
от МКАД
от МКАД
410 м²
S объекта
S объекта
50 сот.
S участка
S участка
175 000 000
24 км
от МКАД
от МКАД
прилесной
17 сот.
S участка
S участка
63 000 000
9 км
от МКАД
от МКАД
850 м²
S объекта
S объекта
27 сот.
S участка
S участка
722 510 381
1 км
от МКАД
от МКАД
400 м²
S объекта
S объекта
7 сот.
S участка
S участка
225 000 000
27 км
от МКАД
от МКАД
570 м²
S объекта
S объекта
18 сот.
S участка
S участка
128 000 000
20 км
от МКАД
от МКАД
у воды
114.9 сот.
S участка
S участка
967 072 540
20 км
от МКАД
от МКАД
полевой
37 сот.
S участка
S участка
198 000 000
23 км
от МКАД
от МКАД
800 м²
S объекта
S объекта
25 сот.
S участка
S участка
300 000 000
20 км
от МКАД
от МКАД
у воды
30.88 сот.
S участка
S участка
420 000 000
22 км
от МКАД
от МКАД
1100 м²
S объекта
S объекта
48 сот.
S участка
S участка
232 000 000
15 км
от МКАД
от МКАД
1000 м²
S объекта
S объекта
40 сот.
S участка
S участка
420 000 000
24 км
от МКАД
от МКАД
415 м²
S объекта
S объекта
4 сот.
S участка
S участка
49 000 000
5 км
от МКАД
от МКАД
1015 м²
S объекта
S объекта
56 сот.
S участка
S участка
1 590 000 000
15 км
от МКАД
от МКАД
прилесной
42 сот.
S участка
S участка
320 000 000
5 км
от МКАД
от МКАД
862 м²
S объекта
S объекта
38 сот.
S участка
S участка
650 000 000
23 км
от МКАД
от МКАД
-
120.6 сот.
S участка
S участка
301 500 000
5 км
от МКАД
от МКАД
942 м²
S объекта
S объекта
38 сот.
S участка
S участка
1 390 000 000
7 км
от МКАД
от МКАД
646 м²
S объекта
S объекта
11 сот.
S участка
S участка
550 000 000
11 км
от МКАД
от МКАД
415 м²
S объекта
S объекта
12 сот.
S участка
S участка
360 000 000
14 км
от МКАД
от МКАД
560 м²
S объекта
S объекта
25 сот.
S участка
S участка
144 502 076
24 км
от МКАД
от МКАД
550 м²
S объекта
S объекта
30 сот.
S участка
S участка
289 004 153