Дом под ключ в Папушево парк
ID10931 Продажа
- Шоссе 2-ое Успенское шоссе
- Населенный пункт Папушево
- Поселок Папушево парк
- Расстояние от МКАД 24 км
- Площадь объекта 320 м²
- Площадь участка 13.27 сот.
Расположение
- Шоссе 2-ое Успенское шоссе
- Рублёво-Успенское шоссе
- Населенный пункт Папушево
- Поселок Папушево парк
- Удаленность от МКАД 24 км
Объект
- Площадь дома320 м²
- Кол-во спален4
- Год постройки здания2022
- Отделкапод ключ без мебели
Коммуникации
- Водоснабжениецентральное
- Газмагистральный
- Канализацияцентральная
- Электричествода
Дополнительно
- Гараж м\мда
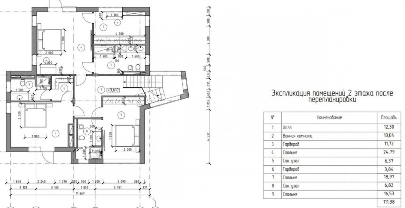
Планировки
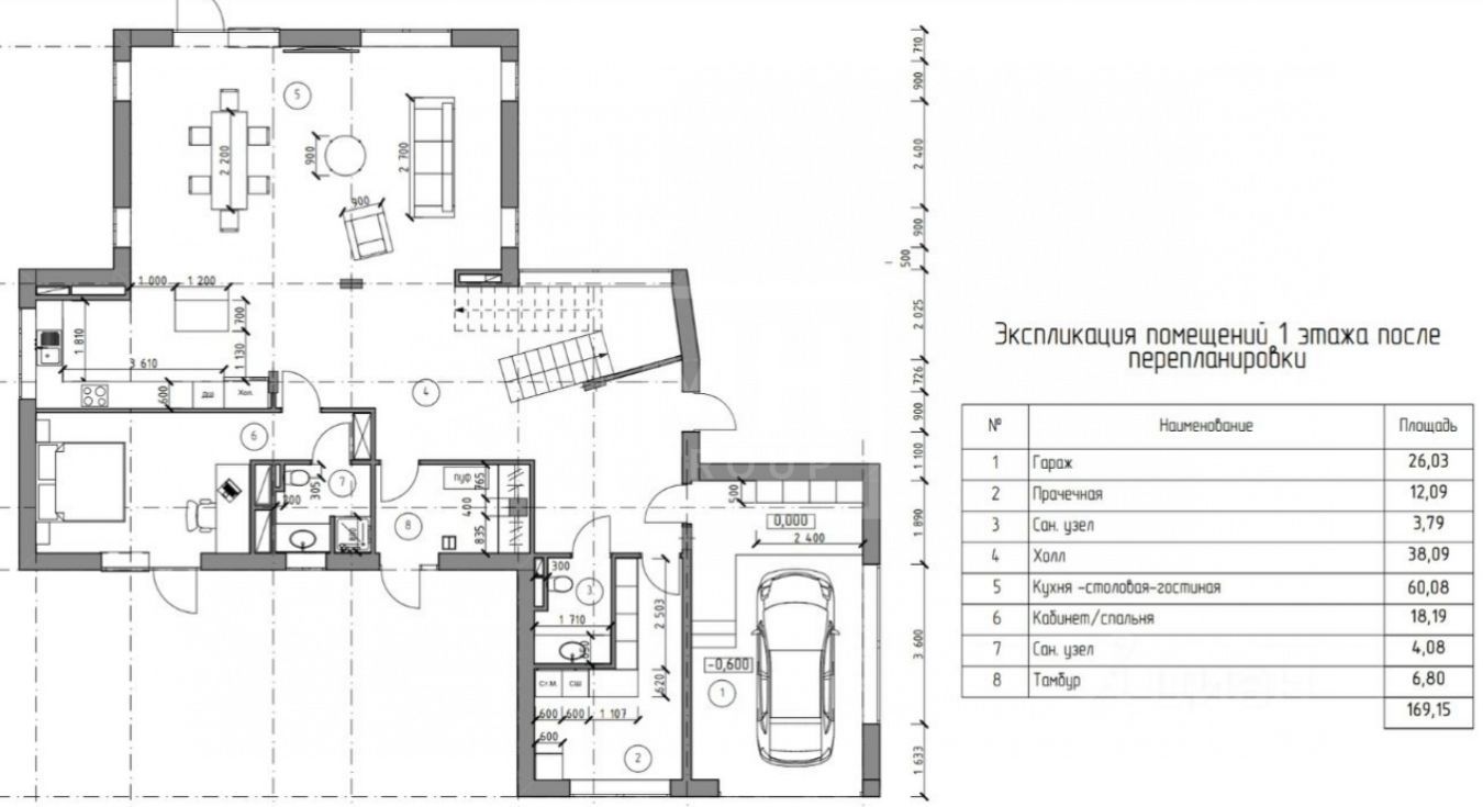
Этаж 1: Прихожая, гардеробная, кухня, столовая, гостиная, с/у, кабинет/спальня с с/у, постирочная, котельная, гараж
Этаж 2: мастер спальня с с/у и гардеробной, 2 спальни с с\у и гардеробными
Описание
Предлагается к продаже новый дом под ключ в поселке Папушево Парк. Дом расположен в шаговой доступности от парка, где можно приятно провести время, занимаясь спортом, наслаждаясь видами лесных массивов. В непосредственной близости от поселка находится вся необходимая инфраструктура, среди которой магазины, учебные заведения, рестораны и кафе, медицинские учреждения.
24 км
от МКАД
от МКАД
398 м²
S объекта
S объекта
10 сот.
S участка
S участка
168 000 000
24 км
от МКАД
от МКАД
375 м²
S объекта
S объекта
20 сот.
S участка
S участка
130 000 000
24 км
от МКАД
от МКАД
322 м²
S объекта
S объекта
10 сот.
S участка
S участка
130 000 000
25 км
от МКАД
от МКАД
-
25 сот.
S участка
S участка
31 291 314
24 км
от МКАД
от МКАД
408 м²
S объекта
S объекта
15 сот.
S участка
S участка
60 000 000
25 км
от МКАД
от МКАД
-
1033 сот.
S участка
S участка
1 373 766 927
25 км
от МКАД
от МКАД
-
100 сот.
S участка
S участка
125 165 257
25 км
от МКАД
от МКАД
прилесной
987 сот.
S участка
S участка
772 113 181
25 км
от МКАД
от МКАД
-
73 сот.
S участка
S участка
59 950 000
23 км
от МКАД
от МКАД
-
50 сот.
S участка
S участка
150 000 000
25 км
от МКАД
от МКАД
-
73 сот.
S участка
S участка
45 685 319
23 км
от МКАД
от МКАД
3000 м²
S объекта
S объекта
255 сот.
S участка
S участка
490 000 000
24 км
от МКАД
от МКАД
320 м²
S объекта
S объекта
23 сот.
S участка
S участка
65 000 000
24 км
от МКАД
от МКАД
400 м²
S объекта
S объекта
30 сот.
S участка
S участка
110 000 000
24 км
от МКАД
от МКАД
полевой
50 сот.
S участка
S участка
60 000 000
15 км
от МКАД
от МКАД
1000 м²
S объекта
S объекта
40 сот.
S участка
S участка
420 000 000
15 км
от МКАД
от МКАД
прилесной
42 сот.
S участка
S участка
320 000 000
24 км
от МКАД
от МКАД
415 м²
S объекта
S объекта
4 сот.
S участка
S участка
49 000 000
5 км
от МКАД
от МКАД
862 м²
S объекта
S объекта
38 сот.
S участка
S участка
650 000 000
22 км
от МКАД
от МКАД
1100 м²
S объекта
S объекта
48 сот.
S участка
S участка
275 000 000
24 км
от МКАД
от МКАД
550 м²
S объекта
S объекта
30 сот.
S участка
S участка
297 267 486
5 км
от МКАД
от МКАД
942 м²
S объекта
S объекта
38 сот.
S участка
S участка
1 350 000 000
19 км
от МКАД
от МКАД
847 м²
S объекта
S объекта
25.2 сот.
S участка
S участка
429 000 000
11 км
от МКАД
от МКАД
415 м²
S объекта
S объекта
12 сот.
S участка
S участка
360 000 000
7 км
от МКАД
от МКАД
646 м²
S объекта
S объекта
11 сот.
S участка
S участка
390 000 000
11 км
от МКАД
от МКАД
полевой
15 сот.
S участка
S участка
70 000 000
23 км
от МКАД
от МКАД
-
120.6 сот.
S участка
S участка
301 500 000