Просторный особняк в КП Гринфилд
ID11131 Продажа
- Шоссе Новорижское шоссе
- Населенный пункт Писково
- Поселок Гринфилд
- Расстояние от МКАД 23 км
- Площадь объекта 2500 м²
- Площадь участка 52 сот.
Расположение
- Шоссе Новорижское шоссе
- Населенный пункт Писково
- Поселок Гринфилд
- Удаленность от МКАД 23 км
Объект
- Площадь дома2500 м²
- Кол-во спален6
- Год постройки здания2016
- Отделкачистовая отделка
Коммуникации
- Водоснабжениецентральное
- Газмагистральный
- Канализацияцентральная
- Электричествода
Дополнительно
- Бассейнда
- Гараж м\мда
- Доп. строенияда
- Барбекюда
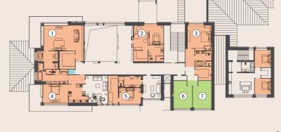
Планировки
Цоколь: зона отдыха, помещение под домашний кинотеатр, игровая, кухня, гостевой санузел и техническое помещение.
Этаж 1: гостиная, столовая, кухня с выходами на большую террасу, малая гостиная, кабинет, гостевой санузел, прачечная, две комнаты для хознужд, гостевая зона с тремя спальнями и двумя санузлами, а также большая спа-зона: 15-метровый бассейн, бассейн с холодной водой, джакузи, паровая кабина, сауна, солевая комната, тренажерный зал, два санузла.
Этаж 2: пять спален, каждая из которых с индивидуальным санузлом и гардеробной комнатой, и три детские.
Описание
К продаже представлен особняк в поселке Гринфилд выполнен в современном стиле. Фасад облицован шпонированными панелями с долгосрочной защитой от негативного воздействия окружающей среды; часть дома облицована итальянскими панелями из натурального камня. Преимуществом дома на данном этапе является, возможность реализовать индивидуальную планировку дома, учитывая потребности и предпочтения семьи. Центр притяжения в доме - просторный и светлый зал с бассейном , который благодаря панорамным окнам и обилию солнечного света визуально соединяется с участком вокруг дома и создает ощущение свободного открытого пространства. В доме смонтирована система вентиляции и кондиционирования с функцией увлажнения воздуха, системы отопления, водопровода и канализации, а также электрика. Установлена сантехника ведущих производителей (Handsgrohe& Villeroy&Bosh, Dornbracht, Cielo). Проложена сеть для внешнего и внутреннего наблюдения, а также усиление сигнала wi-fi и сотовой связи. Есть гараж на три автомобиля, над которым находится квартира для персонала с двумя спальнями, гостиной, кухней и санузлом.
15 км
от МКАД
от МКАД
550 м²
S объекта
S объекта
24 сот.
S участка
S участка
212 025 789
23 км
от МКАД
от МКАД
800 м²
S объекта
S объекта
25 сот.
S участка
S участка
300 000 000
1 км
от МКАД
от МКАД
400 м²
S объекта
S объекта
7 сот.
S участка
S участка
225 000 000
5 км
от МКАД
от МКАД
270 м²
S объекта
S объекта
4 сот.
S участка
S участка
115 000 000
23 км
от МКАД
от МКАД
полевой
47 сот.
S участка
S участка
117 500 000
9 км
от МКАД
от МКАД
850 м²
S объекта
S объекта
27 сот.
S участка
S участка
746 016 664
20 км
от МКАД
от МКАД
у воды
114.9 сот.
S участка
S участка
998 535 451
20 км
от МКАД
от МКАД
у воды
30.88 сот.
S участка
S участка
420 000 000
19 км
от МКАД
от МКАД
847 м²
S объекта
S объекта
25.2 сот.
S участка
S участка
429 000 000
24 км
от МКАД
от МКАД
прилесной
17 сот.
S участка
S участка
65 000 000
27 км
от МКАД
от МКАД
570 м²
S объекта
S объекта
18 сот.
S участка
S участка
128 000 000
20 км
от МКАД
от МКАД
410 м²
S объекта
S объекта
50 сот.
S участка
S участка
175 000 000
5 км
от МКАД
от МКАД
862 м²
S объекта
S объекта
38 сот.
S участка
S участка
650 000 000
5 км
от МКАД
от МКАД
1015 м²
S объекта
S объекта
56 сот.
S участка
S участка
1 590 000 000
11 км
от МКАД
от МКАД
415 м²
S объекта
S объекта
12 сот.
S участка
S участка
360 000 000
23 км
от МКАД
от МКАД
-
120.6 сот.
S участка
S участка
301 500 000
24 км
от МКАД
от МКАД
415 м²
S объекта
S объекта
4 сот.
S участка
S участка
49 000 000
5 км
от МКАД
от МКАД
942 м²
S объекта
S объекта
38 сот.
S участка
S участка
1 390 000 000
15 км
от МКАД
от МКАД
прилесной
42 сот.
S участка
S участка
320 000 000
7 км
от МКАД
от МКАД
646 м²
S объекта
S объекта
11 сот.
S участка
S участка
390 000 000
24 км
от МКАД
от МКАД
550 м²
S объекта
S объекта
30 сот.
S участка
S участка
298 406 665
15 км
от МКАД
от МКАД
1000 м²
S объекта
S объекта
40 сот.
S участка
S участка
420 000 000
22 км
от МКАД
от МКАД
1100 м²
S объекта
S объекта
48 сот.
S участка
S участка
255 000 000
19 км
от МКАД
от МКАД
847 м²
S объекта
S объекта
25.2 сот.
S участка
S участка
429 000 000