Дом в КП Загорье
ID11576 Продажа
- Шоссе Рублёво-Успенское шоссе
- Населенный пункт Горки-2
- Поселок Загорье
- Расстояние от МКАД 15 км
- Площадь объекта 528 м²
- Площадь участка 12 сот.
Расположение
- Шоссе Рублёво-Успенское шоссе
- Северный объезд Одинцово (платная дорога)
- 1-ое Успенское шоссе
- Населенный пункт Горки-2
- Поселок Загорье
- Удаленность от МКАД 15 км
Объект
- Площадь дома528 м²
- Кол-во спален4
- Отделкапод ключ с мебелью
Коммуникации
- Водоснабжениецентральное
- Газмагистральный
- Канализацияцентральная
- Электричествода
Дополнительно
Планировки
Этаж 1: Прихожая, гардеробная, кухня, столовая, гостиная, спальня с гардеробной, с/у, кабинет, кладовая, котельная
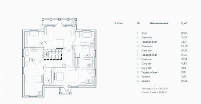
Этаж 2: Мастер-спальня с с/у и гардеробной, 2 спальни с с/у и гардеробными
Этаж 3: Кладовая, игровая, с/у
Описание
Новый дом по индивидуальному дизайнерскому проекту, расположенный в закрытом охраняемом поселке «Загорье». Территория поселка окружена смешанным лесным массивом, что позволяет жителям поселка насладиться обилием чистого свежего воздуха. Уникальное месторасположение поселка дарит возможность его жителям как уединиться, так и с легкостью и комфортом добраться до города благодаря удобной транспортной логистике. Внепосредственной близости развитая инфраструктура: продуктовые магазины, рестораны/кафе, частные школы международного класса /государственные общеобразовательные школы, детские сады, детские игровые площадки.
15 км
от МКАД
от МКАД
1341 м²
S объекта
S объекта
30 сот.
S участка
S участка
299 000 000
15 км
от МКАД
от МКАД
900 м²
S объекта
S объекта
24 сот.
S участка
S участка
230 000 000
15 км
от МКАД
от МКАД
1100 м²
S объекта
S объекта
61 сот.
S участка
S участка
300 000 000
14 км
от МКАД
от МКАД
612 м²
S объекта
S объекта
14.5 сот.
S участка
S участка
210 000 000
15 км
от МКАД
от МКАД
611 м²
S объекта
S объекта
12.5 сот.
S участка
S участка
280 000 000
14 км
от МКАД
от МКАД
514 м²
S объекта
S объекта
61 сот.
S участка
S участка
210 000 000
14 км
от МКАД
от МКАД
662.1 м²
S объекта
S объекта
21 сот.
S участка
S участка
230 000 000
15 км
от МКАД
от МКАД
410 м²
S объекта
S объекта
14 сот.
S участка
S участка
295 000 000
15 км
от МКАД
от МКАД
550 м²
S объекта
S объекта
20 сот.
S участка
S участка
227 731 403
15 км
от МКАД
от МКАД
900 м²
S объекта
S объекта
50 сот.
S участка
S участка
235 584 210
15 км
от МКАД
от МКАД
280 м²
S объекта
S объекта
12 сот.
S участка
S участка
295 000 000
15 км
от МКАД
от МКАД
330 м²
S объекта
S объекта
30 сот.
S участка
S участка
196 320 175
22 км
от МКАД
от МКАД
садовый
50 сот.
S участка
S участка
60 000 000
9 км
от МКАД
от МКАД
750 м²
S объекта
S объекта
8 сот.
S участка
S участка
306 259 472
Квартира с огромной террасой в ЖК Остров Фантазий
ID5028 Продажа
Рублёво-Успенское шоссе, Западный, Крылатское
17 км
от МКАД
от МКАД
245 м²
S объекта
S объекта
Под ключ
с мебелью
с мебелью
230 000 000
19 км
от МКАД
от МКАД
2100 м²
S объекта
S объекта
63 сот.
S участка
S участка
1 963 201 746
28 км
от МКАД
от МКАД
360 м²
S объекта
S объекта
20 сот.
S участка
S участка
107 000 000
13 км
от МКАД
от МКАД
460 м²
S объекта
S объекта
23 сот.
S участка
S участка
110 000 000
9 км
от МКАД
от МКАД
220 м²
S объекта
S объекта
8 сот.
S участка
S участка
107 000 000
1 км
от МКАД
от МКАД
1830 м²
S объекта
S объекта
15 сот.
S участка
S участка
642 685 323
7 км
от МКАД
от МКАД
630 м²
S объекта
S объекта
12 сот.
S участка
S участка
188 000 000
24 км
от МКАД
от МКАД
1050 м²
S объекта
S объекта
26 сот.
S участка
S участка
537 917 279
8 км
от МКАД
от МКАД
-
20.64 сот.
S участка
S участка
110 250 000
28 км
от МКАД
от МКАД
800 м²
S объекта
S объекта
44 сот.
S участка
S участка
62 000 000
24 км
от МКАД
от МКАД
415 м²
S объекта
S объекта
4 сот.
S участка
S участка
49 000 000
24 км
от МКАД
от МКАД
550 м²
S объекта
S объекта
30 сот.
S участка
S участка
298 406 665
5 км
от МКАД
от МКАД
942 м²
S объекта
S объекта
38 сот.
S участка
S участка
1 390 000 000
5 км
от МКАД
от МКАД
1015 м²
S объекта
S объекта
56 сот.
S участка
S участка
1 590 000 000
22 км
от МКАД
от МКАД
1100 м²
S объекта
S объекта
48 сот.
S участка
S участка
255 000 000
7 км
от МКАД
от МКАД
646 м²
S объекта
S объекта
11 сот.
S участка
S участка
390 000 000
15 км
от МКАД
от МКАД
прилесной
42 сот.
S участка
S участка
320 000 000
23 км
от МКАД
от МКАД
-
120.6 сот.
S участка
S участка
301 500 000
15 км
от МКАД
от МКАД
1000 м²
S объекта
S объекта
40 сот.
S участка
S участка
420 000 000
11 км
от МКАД
от МКАД
415 м²
S объекта
S объекта
12 сот.
S участка
S участка
360 000 000
19 км
от МКАД
от МКАД
847 м²
S объекта
S объекта
25.2 сот.
S участка
S участка
429 000 000
5 км
от МКАД
от МКАД
862 м²
S объекта
S объекта
38 сот.
S участка
S участка
650 000 000