Современный дом на шикарном лесном участке
ID11577 Продажа
- Шоссе Новорижское шоссе
- Населенный пункт Поздняково
- Поселок Коровино
- Расстояние от МКАД 10 км
- Площадь объекта 1700 м²
- Площадь участка 46 сот.
Расположение
- Шоссе Новорижское шоссе
- Ильинское шоссе
- Населенный пункт Поздняково
- Поселок Коровино
- Удаленность от МКАД 10 км
Объект
- Площадь дома1700 м²
- Кол-во спален6
- Год постройки здания2024
- Отделкачистовая отделка
Коммуникации
- Водоснабжениецентральное
- Газмагистральный
- Канализацияцентральная
- Электричествода
Дополнительно
- Бассейнда
- Гараж м\мда
- Помещение для персоналада
Планировки
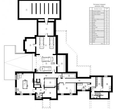
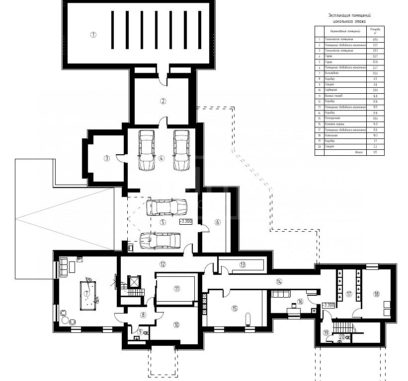
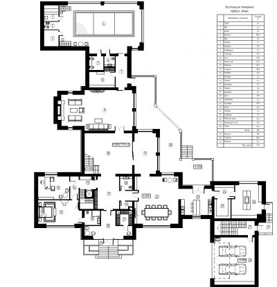
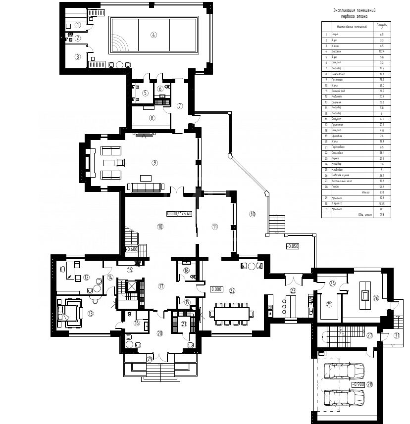
Цоколь: Помещения свободного назначения (кинотеатр, спортзал, бильярдная, винотека), постирочная, 2 с/у, комната охраны, гараж
Этаж 1: Прихожая, гардеробная, с/у, рабочая кухня, кладовая, кухня, столовая, гостиная с камином, спальня, кабинет, спа-зона (бассейн, сауна, хаммам), 2 с/у, гараж
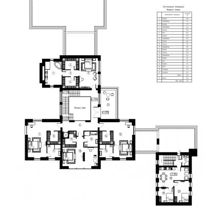
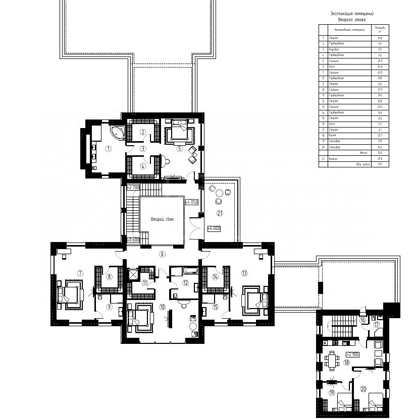
Этаж 2: мастер спальня с с/у и гардеробной, 3 спальни с с/у и гардеробными
Описание
Современный дом в реликтовом лесу под чистовую отделку. Дизайнерская подсветка фасада, панорамное остекление, плоская кровля, высокие потолки, лифт, спа-зона с бассейном, сауной и хаммамом, отдельный блок для персонала и охраны, два гаража на 8 машиномест. Установлены системы умный дом, снеготаяния, полива, кондиционирования, видеонаблюдения, усиления связи, стабилизации электричества, очистки воды, обогрева ливневой канализации, бесшовный Wi-Fi.
9 км
от МКАД
от МКАД
1407 м²
S объекта
S объекта
35 сот.
S участка
S участка
999 000 000
9 км
от МКАД
от МКАД
1778 м²
S объекта
S объекта
28 сот.
S участка
S участка
650 000 000
9 км
от МКАД
от МКАД
1400 м²
S объекта
S объекта
103 сот.
S участка
S участка
942 336 838
9 км
от МКАД
от МКАД
850 м²
S объекта
S объекта
27 сот.
S участка
S участка
746 016 664
9 км
от МКАД
от МКАД
1015 м²
S объекта
S объекта
20 сот.
S участка
S участка
651 782 980
9 км
от МКАД
от МКАД
1800 м²
S объекта
S объекта
50 сот.
S участка
S участка
1 000 000 000
20 км
от МКАД
от МКАД
410 м²
S объекта
S объекта
50 сот.
S участка
S участка
175 000 000
5 км
от МКАД
от МКАД
270 м²
S объекта
S объекта
4 сот.
S участка
S участка
115 000 000
9 км
от МКАД
от МКАД
850 м²
S объекта
S объекта
27 сот.
S участка
S участка
746 016 664
15 км
от МКАД
от МКАД
550 м²
S объекта
S объекта
24 сот.
S участка
S участка
212 025 789
1 км
от МКАД
от МКАД
400 м²
S объекта
S объекта
7 сот.
S участка
S участка
225 000 000
19 км
от МКАД
от МКАД
847 м²
S объекта
S объекта
25.2 сот.
S участка
S участка
429 000 000
23 км
от МКАД
от МКАД
800 м²
S объекта
S объекта
25 сот.
S участка
S участка
300 000 000
27 км
от МКАД
от МКАД
570 м²
S объекта
S объекта
18 сот.
S участка
S участка
128 000 000
24 км
от МКАД
от МКАД
прилесной
17 сот.
S участка
S участка
65 000 000
20 км
от МКАД
от МКАД
у воды
30.88 сот.
S участка
S участка
420 000 000
23 км
от МКАД
от МКАД
полевой
47 сот.
S участка
S участка
117 500 000
20 км
от МКАД
от МКАД
у воды
114.9 сот.
S участка
S участка
998 535 451
15 км
от МКАД
от МКАД
1000 м²
S объекта
S объекта
40 сот.
S участка
S участка
420 000 000
23 км
от МКАД
от МКАД
-
120.6 сот.
S участка
S участка
301 500 000
5 км
от МКАД
от МКАД
942 м²
S объекта
S объекта
38 сот.
S участка
S участка
1 390 000 000
5 км
от МКАД
от МКАД
862 м²
S объекта
S объекта
38 сот.
S участка
S участка
650 000 000
15 км
от МКАД
от МКАД
прилесной
42 сот.
S участка
S участка
320 000 000
24 км
от МКАД
от МКАД
415 м²
S объекта
S объекта
4 сот.
S участка
S участка
49 000 000
11 км
от МКАД
от МКАД
415 м²
S объекта
S объекта
12 сот.
S участка
S участка
360 000 000
5 км
от МКАД
от МКАД
1015 м²
S объекта
S объекта
56 сот.
S участка
S участка
1 590 000 000
19 км
от МКАД
от МКАД
847 м²
S объекта
S объекта
25.2 сот.
S участка
S участка
429 000 000
7 км
от МКАД
от МКАД
646 м²
S объекта
S объекта
11 сот.
S участка
S участка
390 000 000
24 км
от МКАД
от МКАД
550 м²
S объекта
S объекта
30 сот.
S участка
S участка
298 406 665
22 км
от МКАД
от МКАД
1100 м²
S объекта
S объекта
48 сот.
S участка
S участка
255 000 000