Современный дом в КП Новорижский
ID11721 Продажа
- Шоссе Новорижское шоссе
- Населенный пункт Покровское
- Поселок Новорижский
- Расстояние от МКАД 23 км
- Площадь объекта 300 м²
- Площадь участка 6.1 сот.
Расположение
- Шоссе Новорижское шоссе
- Ильинское шоссе
- Населенный пункт Покровское
- Поселок Новорижский
- Удаленность от МКАД 23 км
Объект
- Площадь дома300 м²
- Кол-во спален4
- Год постройки здания2024
- Отделкапод ключ без мебели
Коммуникации
- Водоснабжениецентральное
- Газмагистральный
- Канализацияцентральная
- Электричествода
Дополнительно
Планировки
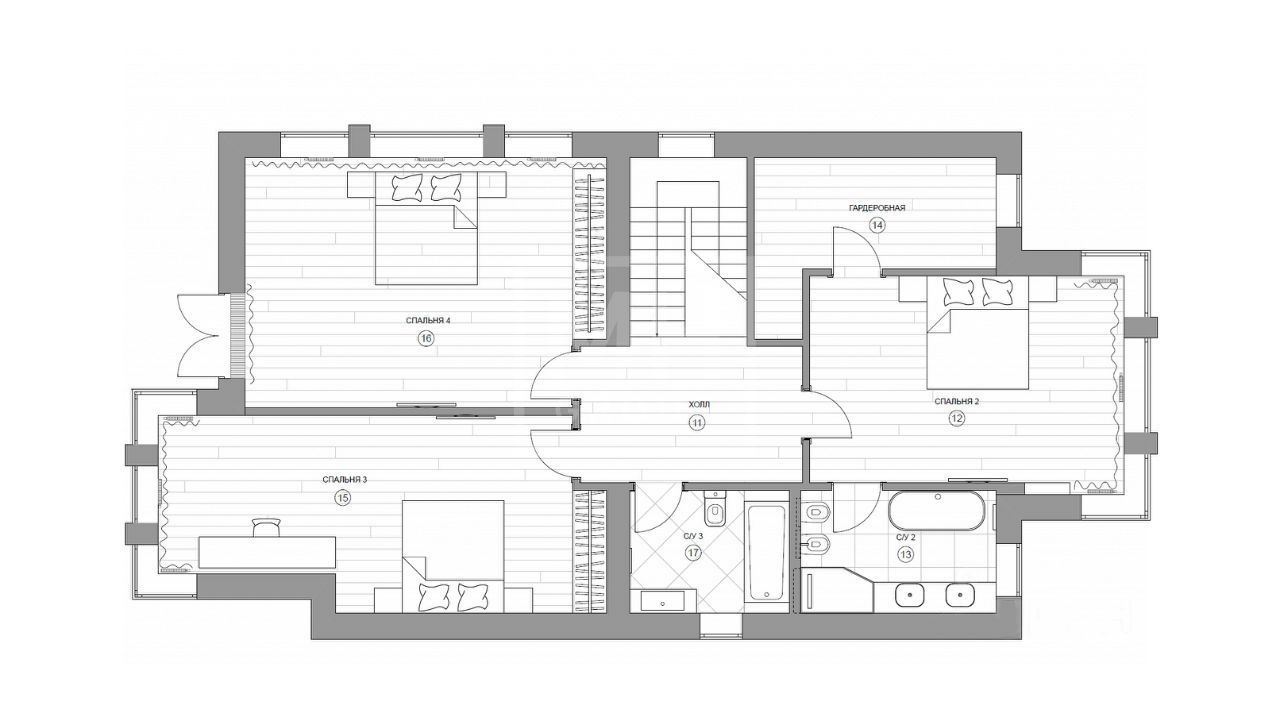
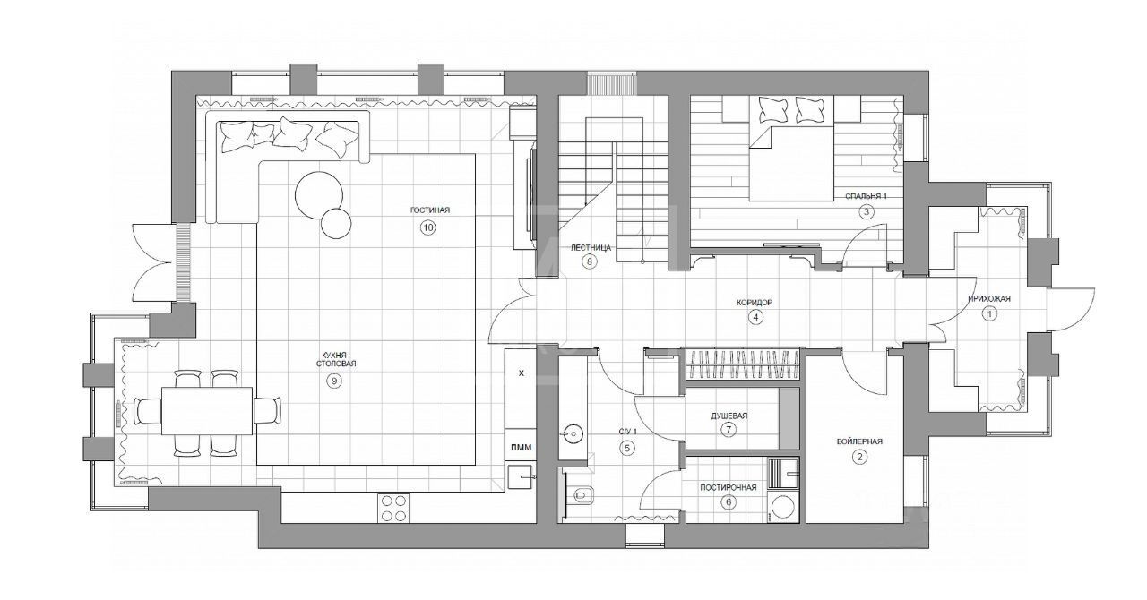
Этаж 1: прихожая, гостиная-столовая-кухня, спальня, санузел, постирочная, бойлерная
Этаж 2: мастер спальня с санузлом и гардеробной, две спальни, санузел
Описание
Новый дом 300 м2, 2024 года постройки, в элитном охраняемом коттеджном посёлке Новорижский. Это посёлок с широкими дорогами из брусчатки, в 24 км от МКАД, есть два пруда с прогулочными территориями, волейбольная площадка с кварцевым песком, детская и универсальная спортивная площадки, детский сад. Большинство домов уже построено, соседи проживают постоянно. Участок 6 соток огорожен забором, выполнены ландшафтные работы, смонтирована дренажная система, оборудована система полива, обустроены дорожки и площадки из брусчатки. Парковка на 4м/м с автоматическими воротами.Коттедж в составе: гостиная-столовая-кухня (с встроенной техникой ASKO) - 55м2, 3с/у, 4 спальни, в т.ч. мастер-спальня с собственным с/у и гардеробной, постирочная, бойлерная, большая терраса и балкон (по 20м2). Сантехника VILLEROY&BOCH. Все центральные коммуникации включая воду, газ, канализацию и интернет заведены в дом. Коттедж в современном стиле, имеет 2 полноценных этажа с высотой потолков более 3 м, а также мансардный этаж. Входная группа оборудована биометрическим замком, из дома предусмотрен выход на террасу внутреннего двора через широкую распашную дверь. В доме установлены окна Rehau. Коттедж построен на монолитном фундаменте, стены из керамического пустотелого кирпича покрыты декоративной штукатуркой. Фасад декорирован деревом, клинкерной плиткой и искусственным камнем. Все материалы примененные при строительстве 100% экологически чистые.
Внутренняя отделка выполняется по авторскому проекту в современном стиле. Используются исключительно натуральные материалы такие как массив дуба, мрамор, керамогранит, кварц. Помимо традиционных инженерных систем в доме установлена система умный дом, централизованное пылеудаление и кондиционирование DAIKIN
23 км
от МКАД
от МКАД
307 м²
S объекта
S объекта
12.5 сот.
S участка
S участка
69 900 000
23 км
от МКАД
от МКАД
330 м²
S объекта
S объекта
13 сот.
S участка
S участка
79 900 000
23 км
от МКАД
от МКАД
483 м²
S объекта
S объекта
12 сот.
S участка
S участка
99 000 000
23 км
от МКАД
от МКАД
250 м²
S объекта
S объекта
6.2 сот.
S участка
S участка
79 000 000
23 км
от МКАД
от МКАД
494 м²
S объекта
S объекта
11 сот.
S участка
S участка
78 000 000
23 км
от МКАД
от МКАД
полевой
47 сот.
S участка
S участка
117 500 000
20 км
от МКАД
от МКАД
410 м²
S объекта
S объекта
50 сот.
S участка
S участка
175 000 000
27 км
от МКАД
от МКАД
570 м²
S объекта
S объекта
18 сот.
S участка
S участка
128 000 000
1 км
от МКАД
от МКАД
400 м²
S объекта
S объекта
7 сот.
S участка
S участка
225 000 000
20 км
от МКАД
от МКАД
у воды
30.88 сот.
S участка
S участка
420 000 000
20 км
от МКАД
от МКАД
полевой
37 сот.
S участка
S участка
198 000 000
15 км
от МКАД
от МКАД
550 м²
S объекта
S объекта
24 сот.
S участка
S участка
208 639 209
5 км
от МКАД
от МКАД
270 м²
S объекта
S объекта
4 сот.
S участка
S участка
115 000 000
20 км
от МКАД
от МКАД
у воды
114.9 сот.
S участка
S участка
982 586 353
24 км
от МКАД
от МКАД
прилесной
17 сот.
S участка
S участка
65 000 000
9 км
от МКАД
от МКАД
850 м²
S объекта
S объекта
27 сот.
S участка
S участка
734 100 920
23 км
от МКАД
от МКАД
800 м²
S объекта
S объекта
25 сот.
S участка
S участка
300 000 000
5 км
от МКАД
от МКАД
942 м²
S объекта
S объекта
38 сот.
S участка
S участка
1 390 000 000
7 км
от МКАД
от МКАД
646 м²
S объекта
S объекта
11 сот.
S участка
S участка
390 000 000
5 км
от МКАД
от МКАД
1015 м²
S объекта
S объекта
56 сот.
S участка
S участка
1 590 000 000
24 км
от МКАД
от МКАД
415 м²
S объекта
S объекта
4 сот.
S участка
S участка
49 000 000
11 км
от МКАД
от МКАД
415 м²
S объекта
S объекта
12 сот.
S участка
S участка
360 000 000
15 км
от МКАД
от МКАД
прилесной
42 сот.
S участка
S участка
320 000 000
14 км
от МКАД
от МКАД
560 м²
S объекта
S объекта
25 сот.
S участка
S участка
146 820 184
5 км
от МКАД
от МКАД
862 м²
S объекта
S объекта
38 сот.
S участка
S участка
650 000 000
15 км
от МКАД
от МКАД
1000 м²
S объекта
S объекта
40 сот.
S участка
S участка
420 000 000
23 км
от МКАД
от МКАД
-
120.6 сот.
S участка
S участка
301 500 000
22 км
от МКАД
от МКАД
1100 м²
S объекта
S объекта
48 сот.
S участка
S участка
255 000 000
24 км
от МКАД
от МКАД
550 м²
S объекта
S объекта
30 сот.
S участка
S участка
293 640 368