Новый дом под отделку на небольшом участке в Миллениум Парке
ID11850 Продажа
- Шоссе Новорижское шоссе
- Населенный пункт Обушково
- Поселок Миллениум Парк
- Расстояние от МКАД 19 км
- Площадь объекта 307 м²
- Площадь участка 8.14 сот.
Расположение
- Шоссе Новорижское шоссе
- Населенный пункт Обушково
- Поселок Миллениум Парк
- Удаленность от МКАД 19 км
Объект
- Площадь дома307 м²
- Кол-во спален4
- Год постройки здания2024
- Отделкачистовая отделка
Коммуникации
- Водоснабжениецентральное
- Газмагистральный
- Канализацияцентральная
- Электричествода
Дополнительно
Планировки
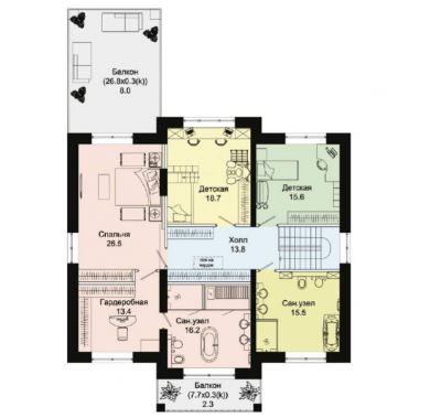
Этаж 1: Прихожая, с/у, кухня, столовая, гостиная, кабинет, спальня, котельная
Этаж 2: Мастер-спальня с с/у и гардеробной, 2 спальни, с/у
Описание
Современный дом под финишную отделку в одном из лучших поселков Новорижского шоссе в КП Миллениум Парк. Планировкой дома предусмотрено размещение 4-х спален, кабинета, а также всех необходимых помещений для комфортного проживания.
20 км
от МКАД
от МКАД
410 м²
S объекта
S объекта
50 сот.
S участка
S участка
175 000 000
27 км
от МКАД
от МКАД
570 м²
S объекта
S объекта
18 сот.
S участка
S участка
128 000 000
20 км
от МКАД
от МКАД
у воды
114.9 сот.
S участка
S участка
998 535 451
20 км
от МКАД
от МКАД
у воды
30.88 сот.
S участка
S участка
420 000 000
19 км
от МКАД
от МКАД
847 м²
S объекта
S объекта
25.2 сот.
S участка
S участка
429 000 000
5 км
от МКАД
от МКАД
270 м²
S объекта
S объекта
4 сот.
S участка
S участка
115 000 000
24 км
от МКАД
от МКАД
прилесной
17 сот.
S участка
S участка
65 000 000
1 км
от МКАД
от МКАД
400 м²
S объекта
S объекта
7 сот.
S участка
S участка
225 000 000
9 км
от МКАД
от МКАД
850 м²
S объекта
S объекта
27 сот.
S участка
S участка
746 016 664
23 км
от МКАД
от МКАД
полевой
47 сот.
S участка
S участка
117 500 000
23 км
от МКАД
от МКАД
800 м²
S объекта
S объекта
25 сот.
S участка
S участка
300 000 000
15 км
от МКАД
от МКАД
550 м²
S объекта
S объекта
24 сот.
S участка
S участка
212 025 789
5 км
от МКАД
от МКАД
862 м²
S объекта
S объекта
38 сот.
S участка
S участка
650 000 000
15 км
от МКАД
от МКАД
прилесной
42 сот.
S участка
S участка
320 000 000
24 км
от МКАД
от МКАД
415 м²
S объекта
S объекта
4 сот.
S участка
S участка
49 000 000
5 км
от МКАД
от МКАД
1015 м²
S объекта
S объекта
56 сот.
S участка
S участка
1 590 000 000
24 км
от МКАД
от МКАД
550 м²
S объекта
S объекта
30 сот.
S участка
S участка
298 406 665
7 км
от МКАД
от МКАД
646 м²
S объекта
S объекта
11 сот.
S участка
S участка
390 000 000
23 км
от МКАД
от МКАД
-
120.6 сот.
S участка
S участка
301 500 000
5 км
от МКАД
от МКАД
942 м²
S объекта
S объекта
38 сот.
S участка
S участка
1 390 000 000
15 км
от МКАД
от МКАД
1000 м²
S объекта
S объекта
40 сот.
S участка
S участка
420 000 000
22 км
от МКАД
от МКАД
1100 м²
S объекта
S объекта
48 сот.
S участка
S участка
255 000 000
11 км
от МКАД
от МКАД
415 м²
S объекта
S объекта
12 сот.
S участка
S участка
360 000 000
19 км
от МКАД
от МКАД
847 м²
S объекта
S объекта
25.2 сот.
S участка
S участка
429 000 000