Резиденция из дерева в Завидово
ID11989 Продажа
- Шоссе Ленинградское шоссе
- Населенный пункт Лазурная
- Поселок Московское море
- Расстояние от МКАД 120 км
- Площадь объекта 1200 м²
- Площадь участка 70 сот.
Расположение
- Шоссе Ленинградское шоссе
- М-11
- Населенный пункт Лазурная
- Поселок Московское море
- Удаленность от МКАД 120 км
Объект
- Площадь дома1200 м²
- Кол-во спален5
- Год постройки здания2020
- Отделкапод ключ с мебелью
Коммуникации
- Водоснабжениецентральное
- Газмагистральный
- Канализацияцентральная
- Электричествода
Дополнительно
- Бассейнда
- Гараж м\мда
- Гостевой домда
- Помещение для персоналада
Планировки
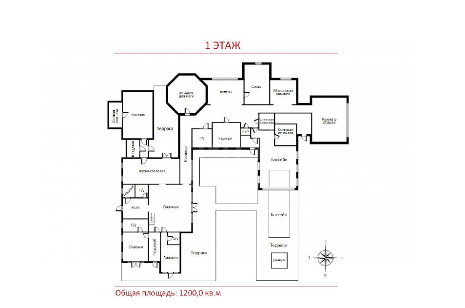
Этаж 1: Прихожая, гардеробная, с/у, кухня-столовая, гостиная, 2 спальни с с/у, гардеробная, спа-зона: сауна, хамам, бассейн, комната для йоги, массажная комната, соляная комната, с/у, душевая, комната отдыха. Винная, комната, кинозал
Этаж 2: Мастер-спальня с с/у и гардеробной, 2 спальни с с/у
Описание
Уникальная резиденция в КП «Московское море« у большой воды. Участок 70 соток. Жилой дом 1200 м2 + 3 строения (отдельностоящий гараж на 4 авто с мойкой , гостевой дом с зоной барбекю и 3 спальнями, дом для охраны (5 комнат для персонала). В строительстве и интерьерах использованы только высококачественные натуральные материалы. Уровень проработки интерьера на высокохудожественном уровне. Мебель и текстиль ведущих брендов, инженерия самого высокого класса. Великолепный продуманный ландшафт. Удобная транспортная доступность (рядом с посёлком съезд с платной дороги, хелипорт). Вся инфраструктура Завидово в пределах 7 минут езды на автомобиле.
7 км
от МКАД
от МКАД
602 м²
S объекта
S объекта
40.48 сот.
S участка
S участка
450 000 000
24 км
от МКАД
от МКАД
550 м²
S объекта
S объекта
30 сот.
S участка
S участка
298 406 665
24 км
от МКАД
от МКАД
415 м²
S объекта
S объекта
4 сот.
S участка
S участка
49 000 000
15 км
от МКАД
от МКАД
1000 м²
S объекта
S объекта
40 сот.
S участка
S участка
420 000 000
15 км
от МКАД
от МКАД
прилесной
42 сот.
S участка
S участка
320 000 000
5 км
от МКАД
от МКАД
1015 м²
S объекта
S объекта
56 сот.
S участка
S участка
1 590 000 000
22 км
от МКАД
от МКАД
1100 м²
S объекта
S объекта
48 сот.
S участка
S участка
255 000 000
5 км
от МКАД
от МКАД
942 м²
S объекта
S объекта
38 сот.
S участка
S участка
1 390 000 000
19 км
от МКАД
от МКАД
847 м²
S объекта
S объекта
25.2 сот.
S участка
S участка
429 000 000
23 км
от МКАД
от МКАД
-
120.6 сот.
S участка
S участка
301 500 000
5 км
от МКАД
от МКАД
862 м²
S объекта
S объекта
38 сот.
S участка
S участка
650 000 000
7 км
от МКАД
от МКАД
646 м²
S объекта
S объекта
11 сот.
S участка
S участка
390 000 000
11 км
от МКАД
от МКАД
415 м²
S объекта
S объекта
12 сот.
S участка
S участка
360 000 000