Новый современный дом в КП VISION
ID12151 Продажа
- Шоссе Новорижское шоссе
- Населенный пункт Котово
- Поселок КП Vision
- Расстояние от МКАД 35 км
- Площадь объекта 577 м²
- Площадь участка 11.33 сот.
Расположение
- Шоссе Новорижское шоссе
- Волоколамское шоссе
- Населенный пункт Котово
- Поселок КП Vision
- Удаленность от МКАД 35 км
Объект
- Площадь дома577 м²
- Кол-во спален5
- Год постройки здания2025
- Отделкачерновая отделка
Коммуникации
- Водоснабжениецентральное
- Газмагистральный
- Канализацияцентральная
- Электричествода
Дополнительно
- Бассейнда
- Баняда
- Гараж м\мда
- Доп. строенияда
Планировки
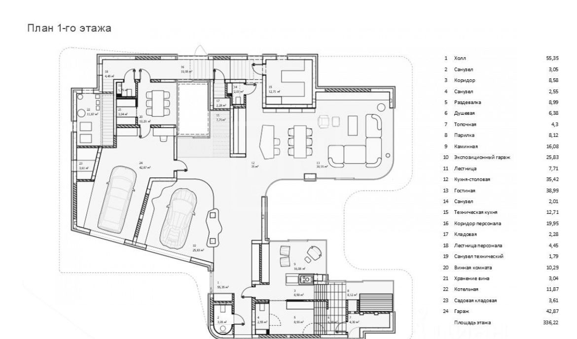
Этаж 1: холл, с/у, раздевалка, с/у, душевая, топочная, парилка, каминная, гараж, кухня-столовая, гостиная, с/у, техническая кухня, коридор персонала, кладовая, с/у технический, винная комната, котельная, кладовая, гараж.
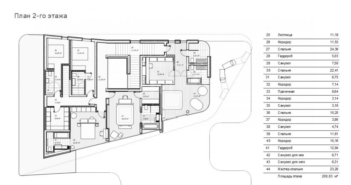
Этаж 2: просторная мастер-спальня с гардеробной, двумя санузлами и выходом на террасу, две универсальные комнаты с гардеробными и отдельными санузлами, которыми могут использоваться как детские или гостевые, прачечная , две многофункциональные комнаты, которые могут использоваться для персонала либо для размещения гостей.
Описание
На продажу представлен загородный дом в коттеджном посёлке Vision. Общая площадь дома составляет 577 м², участка — 11.33 сотки. Объект построен в 2025 году и расположен всего в 35 км от МКАД по скоростному Новорижскому шоссе, что делает его отличным выбором для тех, кто ищет баланс между близостью к Москве и спокойствием загородной жизни. Дом возведён по современным технологиям из качественных материалов. Внутри выполнен ремонт в стадии черновой отделки — идеальная основа для реализации ваших дизайнерских идей. Просторные помещения, высокие потолки, большие окна и современная планировка позволяют создать уютное и функциональное пространство под любые потребности: от жизни большой семьи до комфортного отдыха от городской суеты. На двух уровнях расположены: просторная гостиная, отдельная кухня, несколько санузлов, несколько спален, кабинет и зона отдыха. Потенциал дома позволяет адаптировать внутреннюю структуру под индивидуальные предпочтения покупателя. Участок ровный, правильной формы, частично огорожен. На его территории можно обустроить зону отдыха, детскую площадку, сад или построить баню. Подведены все центральные коммуникации: электричество, водопровод, газ и канализация. Это обеспечивает круглогодичное проживание и полную автономность систем. Этот дом — отличная возможность приобрести современное жильё с перспективой личного оформления и жить в комфортном и уютном месте. Он подойдёт как для постоянного проживания, так и в качестве элитной дачи.
20 км
от МКАД
от МКАД
у воды
30.88 сот.
S участка
S участка
420 000 000
20 км
от МКАД
от МКАД
у воды
114.9 сот.
S участка
S участка
998 535 451
24 км
от МКАД
от МКАД
прилесной
17 сот.
S участка
S участка
65 000 000
23 км
от МКАД
от МКАД
полевой
47 сот.
S участка
S участка
117 500 000
1 км
от МКАД
от МКАД
400 м²
S объекта
S объекта
7 сот.
S участка
S участка
225 000 000
5 км
от МКАД
от МКАД
270 м²
S объекта
S объекта
4 сот.
S участка
S участка
115 000 000
23 км
от МКАД
от МКАД
800 м²
S объекта
S объекта
25 сот.
S участка
S участка
300 000 000
15 км
от МКАД
от МКАД
550 м²
S объекта
S объекта
24 сот.
S участка
S участка
212 025 789
9 км
от МКАД
от МКАД
850 м²
S объекта
S объекта
27 сот.
S участка
S участка
746 016 664
20 км
от МКАД
от МКАД
410 м²
S объекта
S объекта
50 сот.
S участка
S участка
175 000 000
27 км
от МКАД
от МКАД
570 м²
S объекта
S объекта
18 сот.
S участка
S участка
128 000 000
19 км
от МКАД
от МКАД
847 м²
S объекта
S объекта
25.2 сот.
S участка
S участка
429 000 000
11 км
от МКАД
от МКАД
415 м²
S объекта
S объекта
12 сот.
S участка
S участка
360 000 000
7 км
от МКАД
от МКАД
646 м²
S объекта
S объекта
11 сот.
S участка
S участка
390 000 000
15 км
от МКАД
от МКАД
1000 м²
S объекта
S объекта
40 сот.
S участка
S участка
420 000 000
15 км
от МКАД
от МКАД
прилесной
42 сот.
S участка
S участка
320 000 000
5 км
от МКАД
от МКАД
1015 м²
S объекта
S объекта
56 сот.
S участка
S участка
1 590 000 000
19 км
от МКАД
от МКАД
847 м²
S объекта
S объекта
25.2 сот.
S участка
S участка
429 000 000
5 км
от МКАД
от МКАД
862 м²
S объекта
S объекта
38 сот.
S участка
S участка
650 000 000
22 км
от МКАД
от МКАД
1100 м²
S объекта
S объекта
48 сот.
S участка
S участка
255 000 000
23 км
от МКАД
от МКАД
-
120.6 сот.
S участка
S участка
301 500 000
24 км
от МКАД
от МКАД
550 м²
S объекта
S объекта
30 сот.
S участка
S участка
298 406 665
5 км
от МКАД
от МКАД
942 м²
S объекта
S объекта
38 сот.
S участка
S участка
1 390 000 000
24 км
от МКАД
от МКАД
415 м²
S объекта
S объекта
4 сот.
S участка
S участка
49 000 000