Уютный дом в Лесном Городке
ID12238 Продажа
- Шоссе Можайское шоссе
- Населенный пункт Лесной Городок
- Расстояние от МКАД 13 км
- Площадь объекта 190 м²
- Площадь участка 4 сот.
Видео
Расположение
- Шоссе Можайское шоссе
- Минское шоссе
- Северный объезд Одинцово (платная дорога)
- Населенный пункт Лесной Городок
- Удаленность от МКАД 13 км
Объект
- Площадь дома190 м²
- Кол-во спален4
- Отделкапод ключ с мебелью
Коммуникации
- Водоснабжениеиндивидуальная скважина
- Газмагистральный
- Канализациясептик
- Электричествода
Дополнительно
Планировки
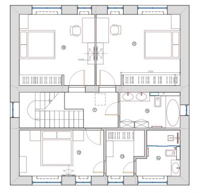
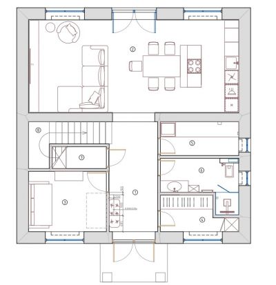
Этаж 1: Прихожая, гардеробная, гостиная-кухня-столовая, гостевая спальня, санузел, кладовая, котельная, терраса с навесом.
Этаж 2: Мастер-спальня с санузлом и гардеробной, две детские спальни, большой санузел с ванной.
Описание
Уютный новый дом в мини-поселке на 8 домов в Лесном Городке. Сделан абсолютно новый ремонт, качественно и для себя. В доме четыре спальни, просторная уютная гостиная с выходом на террасу, три санузла. В пешей доступности торговый центр "Город", новая муниципальная школа, несколько кафе, ресторан и станция МЦД. Рядом выезд на платную дорогу по которой можно доехать до Москва сити от дома за 15-20 минут. Предложение может быть интересно тем, кто ищет загородную недвижимость без потери удобства проживания в городе или как аналог таунхауса.В радиусе 200 метров находятся школа, детский сад, поликлиника, магазины, рестораны, кинотеатр, боулинг и всё необходимое для повседневной жизни.
До МКАД 13 км.
До платной трассы 2 км (Москва Сити - 15 минут).
До МЦД Лесной городок 400 метров.
До остановки автобуса в Одинцово 200 метров.
До центра Москвы по Минскому шоссе 30 минут на авто.
Из за удобной локации может быть интересно покупателям как владеющим так и не владеющим автомобильным транспортом.
Предложение имеет все плюсы комфортной городской жизни в органичном загородном формате !
11 км
от МКАД
от МКАД
550 м²
S объекта
S объекта
26 сот.
S участка
S участка
65 000 000
17 км
от МКАД
от МКАД
254 м²
S объекта
S объекта
8 сот.
S участка
S участка
41 500 000
17 км
от МКАД
от МКАД
254 м²
S объекта
S объекта
8 сот.
S участка
S участка
41 500 000
21 км
от МКАД
от МКАД
570 м²
S объекта
S объекта
15 сот.
S участка
S участка
62 000 000
12 км
от МКАД
от МКАД
565 м²
S объекта
S объекта
23 сот.
S участка
S участка
149 146 668
6 км
от МКАД
от МКАД
650 м²
S объекта
S объекта
19 сот.
S участка
S участка
120 000 000
19 км
от МКАД
от МКАД
320 м²
S объекта
S объекта
13 сот.
S участка
S участка
105 000 000
11 км
от МКАД
от МКАД
763 м²
S объекта
S объекта
55 сот.
S участка
S участка
319 600 003
2 км
от МКАД
от МКАД
800 м²
S объекта
S объекта
25 сот.
S участка
S участка
220 000 000
5 км
от МКАД
от МКАД
420 м²
S объекта
S объекта
12 сот.
S участка
S участка
187 000 000
2 км
от МКАД
от МКАД
850 м²
S объекта
S объекта
50 сот.
S участка
S участка
300 000 000
18 км
от МКАД
от МКАД
-
366 сот.
S участка
S участка
140 000 000
11 км
от МКАД
от МКАД
262 м²
S объекта
S объекта
2.5 сот.
S участка
S участка
90 000 000
2 км
от МКАД
от МКАД
700 м²
S объекта
S объекта
21 сот.
S участка
S участка
160 000 000
16 км
от МКАД
от МКАД
500 м²
S объекта
S объекта
13 сот.
S участка
S участка
130 000 000
15 км
от МКАД
от МКАД
1000 м²
S объекта
S объекта
40 сот.
S участка
S участка
400 000 000
5 км
от МКАД
от МКАД
862 м²
S объекта
S объекта
38 сот.
S участка
S участка
650 000 000
15 км
от МКАД
от МКАД
прилесной
42 сот.
S участка
S участка
320 000 000
24 км
от МКАД
от МКАД
415 м²
S объекта
S объекта
4 сот.
S участка
S участка
49 000 000
22 км
от МКАД
от МКАД
1100 м²
S объекта
S объекта
48 сот.
S участка
S участка
232 000 000
24 км
от МКАД
от МКАД
550 м²
S объекта
S объекта
30 сот.
S участка
S участка
269 884 447
13 км
от МКАД
от МКАД
535 м²
S объекта
S объекта
18 сот.
S участка
S участка
490 000 000
7 км
от МКАД
от МКАД
646 м²
S объекта
S объекта
11 сот.
S участка
S участка
550 000 000
5 км
от МКАД
от МКАД
1015 м²
S объекта
S объекта
56 сот.
S участка
S участка
1 590 000 000
22 км
от МКАД
от МКАД
лесной
60 сот.
S участка
S участка
78 000 000
5 км
от МКАД
от МКАД
942 м²
S объекта
S объекта
38 сот.
S участка
S участка
1 390 000 000
11 км
от МКАД
от МКАД
415 м²
S объекта
S объекта
12 сот.
S участка
S участка
360 000 000