Дом в стиле Альпийского шале
ID12253 Продажа
- Шоссе Новорижское шоссе
- Населенный пункт Пионерский
- Поселок Покровское-Рубцово
- Расстояние от МКАД 45 км
- Площадь объекта 638 м²
- Площадь участка 30.2 сот.
Расположение
- Шоссе Новорижское шоссе
- Волоколамское шоссе
- Населенный пункт Пионерский
- Поселок Покровское-Рубцово
- Удаленность от МКАД 45 км
Объект
- Площадь дома638 м²
- Кол-во спален5
- Отделкачистовая отделка
Коммуникации
- Водоснабжениецентральное
- Газмагистральный
- Канализацияцентральная
- Электричествода
Дополнительно
- Гараж м\мда
Планировки
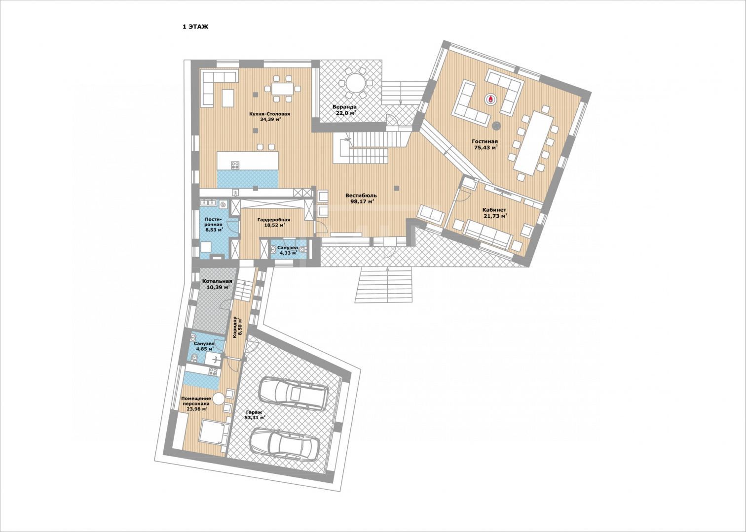
Этаж 1: Общие помещения: вестибюль (98,2), гостиная (75,4), кухня-столовая (34,4), веранда (22), кабинет (21,7), гардеробная (18,5), гостевой с/у (4,3), гараж на 2 м/м (53,3). Технические помещения: постирочная (8,5), котельная (10,4), коридор (8,5), комната для персонала (24) с с/у (4,9).
Этаж 2: Мастер-блок:спальня (46,3) с ванной (20,1), гардеробной (16,5) и балконом. Спальня №1 (33,1) с ванной (6), спальня №2 (31,7) и спальня №3 (20,2) с общим с/у (7,2), холл (72,2).
Описание
Просторный дом 638 кв.м в стиле Альпийского шале с панорамным остеклением на лесном участке 30,2 сотки представлен в отделке White Box. Расположен в тихой и уютной части поселка бизнес-класса “Покровское-Рубцово” на Новорижском шоссе.Планировка по проекту: 5 спален, гостиная, кухня-столовая, кабинет, гардеробная при входе и гостевой с/у, гараж на 2 м/м, комната персонала с с/у, постирочная, котельная.
Особенности дома: интересная планировка, высокие потолки (3,3 м - на 1 этаже, 5,5 м - на втором), лесной участок - утопает в зелени, живописный вид из панорамных окон на вековые сосны, рябины, дубы.
Дом “под чистовую отделку”. В дверные проемы установлены короба, современные двери “под покраску” на все проемы закуплены и находятся в доме.
Выполнена инженерная разводка: водоснабжение, канализация, электричество, газ, теплые полы. В каждом с/у установлена инсталляция.
В гараже уложена плитка, готовы водостоки.
В котельной функционирует оборудование, заключен прямой договор на газ.
45 км
от МКАД
от МКАД
450 м²
S объекта
S объекта
33 сот.
S участка
S участка
70 000 000
45 км
от МКАД
от МКАД
630 м²
S объекта
S объекта
28 сот.
S участка
S участка
75 100 000
9 км
от МКАД
от МКАД
850 м²
S объекта
S объекта
27 сот.
S участка
S участка
746 016 664
20 км
от МКАД
от МКАД
у воды
30.88 сот.
S участка
S участка
420 000 000
5 км
от МКАД
от МКАД
270 м²
S объекта
S объекта
4 сот.
S участка
S участка
115 000 000
20 км
от МКАД
от МКАД
410 м²
S объекта
S объекта
50 сот.
S участка
S участка
175 000 000
24 км
от МКАД
от МКАД
прилесной
17 сот.
S участка
S участка
65 000 000
23 км
от МКАД
от МКАД
800 м²
S объекта
S объекта
25 сот.
S участка
S участка
300 000 000
15 км
от МКАД
от МКАД
550 м²
S объекта
S объекта
24 сот.
S участка
S участка
212 025 789
19 км
от МКАД
от МКАД
847 м²
S объекта
S объекта
25.2 сот.
S участка
S участка
429 000 000
1 км
от МКАД
от МКАД
400 м²
S объекта
S объекта
7 сот.
S участка
S участка
225 000 000
23 км
от МКАД
от МКАД
полевой
47 сот.
S участка
S участка
117 500 000
27 км
от МКАД
от МКАД
570 м²
S объекта
S объекта
18 сот.
S участка
S участка
128 000 000
20 км
от МКАД
от МКАД
у воды
114.9 сот.
S участка
S участка
998 535 451
15 км
от МКАД
от МКАД
прилесной
42 сот.
S участка
S участка
320 000 000
24 км
от МКАД
от МКАД
550 м²
S объекта
S объекта
30 сот.
S участка
S участка
298 406 665
7 км
от МКАД
от МКАД
646 м²
S объекта
S объекта
11 сот.
S участка
S участка
390 000 000
19 км
от МКАД
от МКАД
847 м²
S объекта
S объекта
25.2 сот.
S участка
S участка
429 000 000
22 км
от МКАД
от МКАД
1100 м²
S объекта
S объекта
48 сот.
S участка
S участка
255 000 000
24 км
от МКАД
от МКАД
415 м²
S объекта
S объекта
4 сот.
S участка
S участка
49 000 000
23 км
от МКАД
от МКАД
-
120.6 сот.
S участка
S участка
301 500 000
5 км
от МКАД
от МКАД
942 м²
S объекта
S объекта
38 сот.
S участка
S участка
1 390 000 000
11 км
от МКАД
от МКАД
415 м²
S объекта
S объекта
12 сот.
S участка
S участка
360 000 000
15 км
от МКАД
от МКАД
1000 м²
S объекта
S объекта
40 сот.
S участка
S участка
420 000 000
5 км
от МКАД
от МКАД
862 м²
S объекта
S объекта
38 сот.
S участка
S участка
650 000 000
5 км
от МКАД
от МКАД
1015 м²
S объекта
S объекта
56 сот.
S участка
S участка
1 590 000 000