Новый дом в КП "Русская деревня"
ID12343 Продажа
- Шоссе Новорижское шоссе
- Населенный пункт Падиково
- Поселок Русская деревня
- Расстояние от МКАД 25 км
- Площадь объекта 320 м²
- Площадь участка 10 сот.
Расположение
- Шоссе Новорижское шоссе
- Волоколамское шоссе
- Населенный пункт Падиково
- Поселок Русская деревня
- Удаленность от МКАД 25 км
Объект
- Площадь дома320 м²
- Кол-во спален4
- Год постройки здания2025
- Отделкапод ключ с мебелью
Коммуникации
- Водоснабжениецентральное
- Газмагистральный
- Канализацияцентральная
- Электричествода
Дополнительно
- Гараж м\мда
Планировки
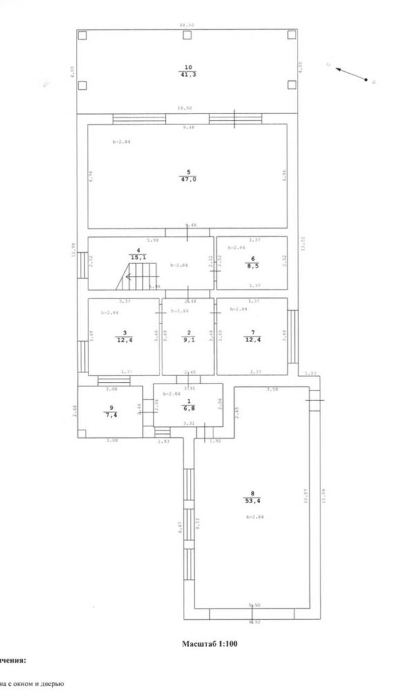
Этаж 1: Входная группа, гостиная с выходом на террасу, кухня столовая, гостевая спальня, кабинет, гараж.
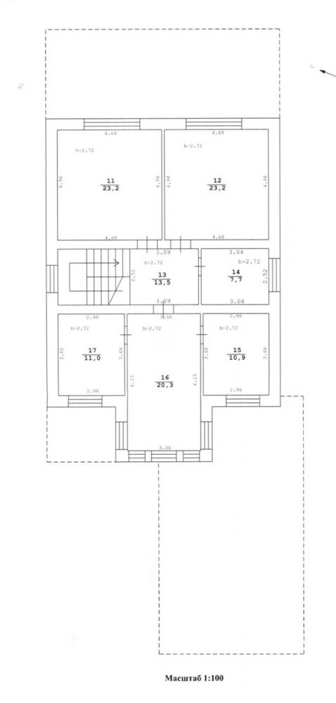
Этаж 2: Мастер спальня с ванной комнатой и гардеробной, 2 спальни, санузел.
Описание
К продаже представлен новый, современный дом в одном из лучших районов Подмосковья. Продуманная, грамотная планировка. На первом этаже нас встречает красивый холл, гардеробная, кабинет, гостиная-кухня столовая, прачечная, гараж на 2 машиноместа. На втором этаже мастер спальня с ванной комнатой и гардеробной, 2 спальни с гардеробными, санузел. В отделке дома использовались дорогие и качественные материалы.
25 км
от МКАД
от МКАД
430 м²
S объекта
S объекта
15 сот.
S участка
S участка
110 000 000
25 км
от МКАД
от МКАД
540 м²
S объекта
S объекта
19.5 сот.
S участка
S участка
153 000 000
25 км
от МКАД
от МКАД
410 м²
S объекта
S объекта
13 сот.
S участка
S участка
140 000 000
9 км
от МКАД
от МКАД
850 м²
S объекта
S объекта
27 сот.
S участка
S участка
674 711 117
23 км
от МКАД
от МКАД
800 м²
S объекта
S объекта
25 сот.
S участка
S участка
300 000 000
1 км
от МКАД
от МКАД
400 м²
S объекта
S объекта
7 сот.
S участка
S участка
225 000 000
20 км
от МКАД
от МКАД
у воды
114.9 сот.
S участка
S участка
903 093 728
24 км
от МКАД
от МКАД
прилесной
17 сот.
S участка
S участка
63 000 000
20 км
от МКАД
от МКАД
у воды
30.88 сот.
S участка
S участка
420 000 000
27 км
от МКАД
от МКАД
570 м²
S объекта
S объекта
18 сот.
S участка
S участка
128 000 000
5 км
от МКАД
от МКАД
270 м²
S объекта
S объекта
4 сот.
S участка
S участка
115 000 000
20 км
от МКАД
от МКАД
полевой
37 сот.
S участка
S участка
198 000 000
23 км
от МКАД
от МКАД
полевой
47 сот.
S участка
S участка
117 500 000
20 км
от МКАД
от МКАД
410 м²
S объекта
S объекта
50 сот.
S участка
S участка
175 000 000
15 км
от МКАД
от МКАД
550 м²
S объекта
S объекта
24 сот.
S участка
S участка
191 760 002
5 км
от МКАД
от МКАД
862 м²
S объекта
S объекта
38 сот.
S участка
S участка
650 000 000
24 км
от МКАД
от МКАД
550 м²
S объекта
S объекта
30 сот.
S участка
S участка
269 884 447
15 км
от МКАД
от МКАД
1000 м²
S объекта
S объекта
40 сот.
S участка
S участка
400 000 000
13 км
от МКАД
от МКАД
535 м²
S объекта
S объекта
18 сот.
S участка
S участка
490 000 000
22 км
от МКАД
от МКАД
1100 м²
S объекта
S объекта
48 сот.
S участка
S участка
232 000 000
7 км
от МКАД
от МКАД
646 м²
S объекта
S объекта
11 сот.
S участка
S участка
550 000 000
24 км
от МКАД
от МКАД
415 м²
S объекта
S объекта
4 сот.
S участка
S участка
49 000 000
11 км
от МКАД
от МКАД
415 м²
S объекта
S объекта
12 сот.
S участка
S участка
360 000 000
22 км
от МКАД
от МКАД
лесной
60 сот.
S участка
S участка
78 000 000
5 км
от МКАД
от МКАД
942 м²
S объекта
S объекта
38 сот.
S участка
S участка
1 390 000 000
5 км
от МКАД
от МКАД
1015 м²
S объекта
S объекта
56 сот.
S участка
S участка
1 590 000 000
15 км
от МКАД
от МКАД
прилесной
42 сот.
S участка
S участка
320 000 000