Особняк в английском стиле в КП Николина поляна
ID12434 Продажа
- Шоссе Ильинское шоссе
- Населенный пункт Дмитровское
- Поселок Николина Поляна
- Расстояние от МКАД 18 км
- Площадь объекта 625 м²
- Площадь участка 8 сот.
Расположение
- Шоссе Ильинское шоссе
- Новорижское шоссе
- Рублёво-Успенское шоссе
- Населенный пункт Дмитровское
- Поселок Николина Поляна
- Удаленность от МКАД 18 км
Объект
- Площадь дома625 м²
- Кол-во спален5
- Отделкапод ключ с мебелью
Коммуникации
- Водоснабжениецентральное
- Газмагистральный
- Канализацияцентральная
- Электричествода
Дополнительно
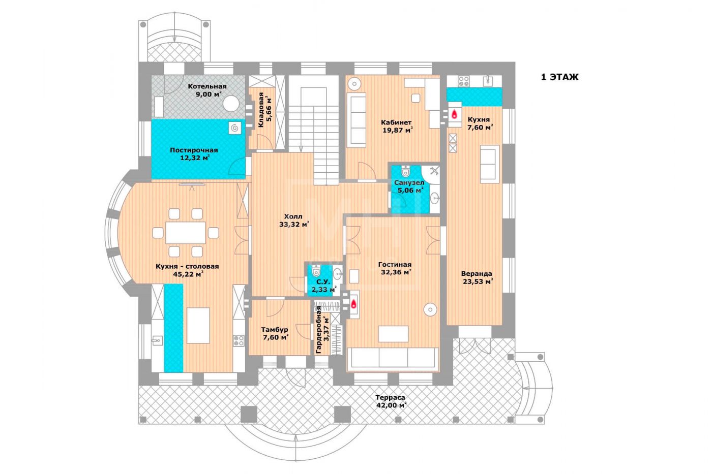
Планировки
Мансарда: свободной планировки “под чистовую отделку”
Этаж 1: тамбур, гардеробная, холл, кухня-столовая, гостиная с камином, спальня/кабинет, малая кухня с печью с верандой и выходом на террасу, с/у. Постирочная, котельная, кладовая.
Этаж 2: холл,Мастер-спальня №1 с ванной , гардеробной и выходом на террасу; Мастер-спальня №2 с ванной и гардеробной; две спальни; кладовая .
Описание
Классический особняк 625 кв.м из красного кирпича в английском стиле на участке 8 соток в КП Николина поляна.В доме: 5 спален (одна из них - на первом этаже), гостиная с камином, большая кухня-столовая с эркером, теплая веранда (зимний сад) с кухонной зоной и выходом на террасу, террасы на первом и втором этажах, мансардный этаж свободной планировки “под чистовую отделку”, постирочная, котельная и кладовые.
Особенности: высокие потолки, большая площадь остекления, камин с отделкой мрамором в гостиной, на полу штучный паркет, дровяная печь на малой кухне, светлый интерьер в классическом стиле, водяные теплые полы, уютный зеленый участок с ландшафтным дизайном.
18 км
от МКАД
от МКАД
342 м²
S объекта
S объекта
15 сот.
S участка
S участка
69 000 000
18 км
от МКАД
от МКАД
187 м²
S объекта
S объекта
13 сот.
S участка
S участка
97 000 000
18 км
от МКАД
от МКАД
650 м²
S объекта
S объекта
14 сот.
S участка
S участка
95 000 000
21 км
от МКАД
от МКАД
450 м²
S объекта
S объекта
37 сот.
S участка
S участка
65 000 000
18 км
от МКАД
от МКАД
340 м²
S объекта
S объекта
15 сот.
S участка
S участка
90 000 000
18 км
от МКАД
от МКАД
250 м²
S объекта
S объекта
6 сот.
S участка
S участка
87 000 000
18 км
от МКАД
от МКАД
342 м²
S объекта
S объекта
15 сот.
S участка
S участка
69 000 000
9 км
от МКАД
от МКАД
1500 м²
S объекта
S объекта
33 сот.
S участка
S участка
1 408 109 144
40 км
от МКАД
от МКАД
2500 м²
S объекта
S объекта
200 сот.
S участка
S участка
350 000 000
10 км
от МКАД
от МКАД
400 м²
S объекта
S объекта
18.7 сот.
S участка
S участка
195 000 000
9 км
от МКАД
от МКАД
-
15 сот.
S участка
S участка
89 962 529
18 км
от МКАД
от МКАД
370 м²
S объекта
S объекта
2.7 сот.
S участка
S участка
34 950 000
23 км
от МКАД
от МКАД
396 м²
S объекта
S объекта
18 сот.
S участка
S участка
33 000 000
9 км
от МКАД
от МКАД
1000 м²
S объекта
S объекта
20 сот.
S участка
S участка
438 078 400
9 км
от МКАД
от МКАД
232 м²
S объекта
S объекта
Под ключ
с мебелью
с мебелью
82 921 983
6 км
от МКАД
от МКАД
-
170 сот.
S участка
S участка
234 684 857
10 км
от МКАД
от МКАД
-
50 сот.
S участка
S участка
164 279 400
9 км
от МКАД
от МКАД
-
47 сот.
S участка
S участка
273 799 000
9 км
от МКАД
от МКАД
-
58 сот.
S участка
S участка
312 000 000
7 км
от МКАД
от МКАД
646 м²
S объекта
S объекта
11 сот.
S участка
S участка
390 000 000
19 км
от МКАД
от МКАД
847 м²
S объекта
S объекта
25.2 сот.
S участка
S участка
429 000 000
24 км
от МКАД
от МКАД
550 м²
S объекта
S объекта
30 сот.
S участка
S участка
297 267 486
15 км
от МКАД
от МКАД
1000 м²
S объекта
S объекта
40 сот.
S участка
S участка
420 000 000
22 км
от МКАД
от МКАД
1100 м²
S объекта
S объекта
48 сот.
S участка
S участка
275 000 000
15 км
от МКАД
от МКАД
прилесной
42 сот.
S участка
S участка
320 000 000
5 км
от МКАД
от МКАД
862 м²
S объекта
S объекта
38 сот.
S участка
S участка
650 000 000
11 км
от МКАД
от МКАД
полевой
15 сот.
S участка
S участка
70 000 000
11 км
от МКАД
от МКАД
415 м²
S объекта
S объекта
12 сот.
S участка
S участка
360 000 000
23 км
от МКАД
от МКАД
-
120.6 сот.
S участка
S участка
301 500 000
24 км
от МКАД
от МКАД
415 м²
S объекта
S объекта
4 сот.
S участка
S участка
49 000 000
5 км
от МКАД
от МКАД
942 м²
S объекта
S объекта
38 сот.
S участка
S участка
1 350 000 000