Роскошный дом в «Ренессанс парк»
ID12694 Продажа
- Шоссе Новорижское шоссе
- Населенный пункт Чесноково
- Поселок Ренессанс парк
- Расстояние от МКАД 19 км
- Площадь объекта 522.3 м²
- Площадь участка 21.5 сот.
Расположение
- Шоссе Новорижское шоссе
- Ильинское шоссе
- Населенный пункт Чесноково
- Поселок Ренессанс парк
- Удаленность от МКАД 19 км
Объект
- Площадь дома522.3 м²
- Кол-во спален4
- Год постройки здания2020
- Отделкачерновая отделка
Коммуникации
- Водоснабжениецентральное
- Газмагистральный
- Канализацияцентральная
- Электричествода
Дополнительно
- Гараж м\мда
- Гостевой домда
- Доп. строенияда
- Помещение для персоналада
Планировки
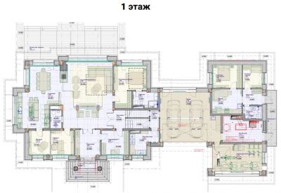
Этаж 1: Прихожая; гардеробная; гостевой санузел; кухня-гостиная с камином и вторым светом и выходом на террасу внутреннего двора, дополнительная кухня (шеф-кухня); спальня с гардеробом и санузлом; игровая; кабинет; гостевая спальня с собственным санузлом; постирочная и кладовая. Гараж на 2 машино-места и отдельный гаражный блок для мототехники с собственным выездом.
Этаж 2: 1 мастер-блок с панорамным балконом, санузлом и гардеробной; две спальни с санузлами и гардеробными; балкон-библиотека.
Описание
Основной дом 255,3 м² выполнен в современном стиле Райт под отделку.Построен в 2020 году из кирпича на монолитном фундаменте с монолитными перекрытиями, фасад здания облицован дагестанским песчаником, мрамором и декорирован гранитом по цоколю.
Большая площадь остекления, второй свет и высокие потолки делают дом невероятно просторным, светлым и уютным.
Гостевой дом 253 м² с комнатой отдыха с шикарным панорамным остеклением, сауной и винным погребом. На втором этаже гостевая комната с санузлом и гардеробной.
19 км
от МКАД
от МКАД
850 м²
S объекта
S объекта
25 сот.
S участка
S участка
330 000 000
19 км
от МКАД
от МКАД
2000 м²
S объекта
S объекта
22 сот.
S участка
S участка
345 000 000
19 км
от МКАД
от МКАД
520 м²
S объекта
S объекта
16 сот.
S участка
S участка
290 000 000
19 км
от МКАД
от МКАД
450 м²
S объекта
S объекта
11 сот.
S участка
S участка
350 000 000
19 км
от МКАД
от МКАД
691.8 м²
S объекта
S объекта
42.14 сот.
S участка
S участка
350 000 000
19 км
от МКАД
от МКАД
370 м²
S объекта
S объекта
28 сот.
S участка
S участка
230 000 000
19 км
от МКАД
от МКАД
550 м²
S объекта
S объекта
30 сот.
S участка
S участка
227 271 113
19 км
от МКАД
от МКАД
630 м²
S объекта
S объекта
30.3 сот.
S участка
S участка
297 000 000
19 км
от МКАД
от МКАД
489 м²
S объекта
S объекта
21.78 сот.
S участка
S участка
320 000 000
19 км
от МКАД
от МКАД
780 м²
S объекта
S объекта
43.41 сот.
S участка
S участка
298 293 336
19 км
от МКАД
от МКАД
1221 м²
S объекта
S объекта
30 сот.
S участка
S участка
350 000 000
19 км
от МКАД
от МКАД
748 м²
S объекта
S объекта
43.5 сот.
S участка
S участка
319 600 003
5 км
от МКАД
от МКАД
270 м²
S объекта
S объекта
4 сот.
S участка
S участка
115 000 000
27 км
от МКАД
от МКАД
570 м²
S объекта
S объекта
18 сот.
S участка
S участка
128 000 000
9 км
от МКАД
от МКАД
850 м²
S объекта
S объекта
27 сот.
S участка
S участка
674 711 117
20 км
от МКАД
от МКАД
у воды
30.88 сот.
S участка
S участка
420 000 000
23 км
от МКАД
от МКАД
полевой
47 сот.
S участка
S участка
117 500 000
20 км
от МКАД
от МКАД
410 м²
S объекта
S объекта
50 сот.
S участка
S участка
175 000 000
15 км
от МКАД
от МКАД
550 м²
S объекта
S объекта
24 сот.
S участка
S участка
191 760 002
23 км
от МКАД
от МКАД
800 м²
S объекта
S объекта
25 сот.
S участка
S участка
300 000 000
24 км
от МКАД
от МКАД
прилесной
17 сот.
S участка
S участка
63 000 000
20 км
от МКАД
от МКАД
полевой
37 сот.
S участка
S участка
198 000 000
1 км
от МКАД
от МКАД
400 м²
S объекта
S объекта
7 сот.
S участка
S участка
225 000 000
20 км
от МКАД
от МКАД
у воды
114.9 сот.
S участка
S участка
903 093 728
15 км
от МКАД
от МКАД
прилесной
42 сот.
S участка
S участка
320 000 000
22 км
от МКАД
от МКАД
1100 м²
S объекта
S объекта
48 сот.
S участка
S участка
232 000 000
13 км
от МКАД
от МКАД
535 м²
S объекта
S объекта
18 сот.
S участка
S участка
490 000 000
5 км
от МКАД
от МКАД
1015 м²
S объекта
S объекта
56 сот.
S участка
S участка
1 590 000 000
7 км
от МКАД
от МКАД
646 м²
S объекта
S объекта
11 сот.
S участка
S участка
550 000 000
11 км
от МКАД
от МКАД
415 м²
S объекта
S объекта
12 сот.
S участка
S участка
360 000 000
22 км
от МКАД
от МКАД
лесной
60 сот.
S участка
S участка
78 000 000
5 км
от МКАД
от МКАД
942 м²
S объекта
S объекта
38 сот.
S участка
S участка
1 390 000 000
15 км
от МКАД
от МКАД
1000 м²
S объекта
S объекта
40 сот.
S участка
S участка
400 000 000
5 км
от МКАД
от МКАД
862 м²
S объекта
S объекта
38 сот.
S участка
S участка
650 000 000
24 км
от МКАД
от МКАД
415 м²
S объекта
S объекта
4 сот.
S участка
S участка
49 000 000
24 км
от МКАД
от МКАД
550 м²
S объекта
S объекта
30 сот.
S участка
S участка
269 884 447