Современный одноэтажный дом в Павловых Озерах
ID12808 Продажа
- Шоссе Новорижское шоссе
- Населенный пункт Лобаново
- Поселок Павловы Озёра
- Расстояние от МКАД 20 км
- Площадь объекта 168 м²
- Площадь участка 8.5 сот.
Расположение
- Шоссе Новорижское шоссе
- Волоколамское шоссе
- Населенный пункт Лобаново
- Поселок Павловы Озёра
- Удаленность от МКАД 20 км
Объект
- Площадь дома168 м²
- Кол-во спален4
- Год постройки здания2025
- Отделкапод ключ с мебелью
Коммуникации
- Водоснабжениецентральное
- Газмагистральный
- Канализацияцентральная
- Электричествода
Дополнительно
Планировки
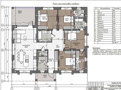
Этаж 1: Кухня-столовая, гостиная с выходом на террасу, спальня с санузлом и гардеробной, спальня с санузлом, две спальни, санузел с ванной, санузел, холл, прихожая, котельная.
Описание
Одноэтажный современный дом в премиальном коттеджном поселке "Павловы Озера" в 14 км от МКАД по скоростному Новорижскому шоссе. В поселке собственное чистое озеро, пляж, лес, охраняемая территория. Дом площадью 166 кв.м. расположен на участке 8,5 соток. Современная архитектура и премиальные материалы в отделке Вся необходимая инфраструктура находится в радиусе нескольких километров, в том числе станция МЦД-2 «Нахабино».КП «Павловы Озера» — «Поселок года 2024»
20 км
от МКАД
от МКАД
241 м²
S объекта
S объекта
7.5 сот.
S участка
S участка
59 000 000
20 км
от МКАД
от МКАД
217 м²
S объекта
S объекта
7.83 сот.
S участка
S участка
71 022 223
23 км
от МКАД
от МКАД
полевой
47 сот.
S участка
S участка
117 500 000
27 км
от МКАД
от МКАД
570 м²
S объекта
S объекта
18 сот.
S участка
S участка
128 000 000
20 км
от МКАД
от МКАД
410 м²
S объекта
S объекта
50 сот.
S участка
S участка
175 000 000
1 км
от МКАД
от МКАД
400 м²
S объекта
S объекта
7 сот.
S участка
S участка
225 000 000
20 км
от МКАД
от МКАД
полевой
37 сот.
S участка
S участка
198 000 000
5 км
от МКАД
от МКАД
270 м²
S объекта
S объекта
4 сот.
S участка
S участка
115 000 000
24 км
от МКАД
от МКАД
прилесной
17 сот.
S участка
S участка
63 000 000
20 км
от МКАД
от МКАД
у воды
114.9 сот.
S участка
S участка
903 093 728
20 км
от МКАД
от МКАД
у воды
30.88 сот.
S участка
S участка
420 000 000
15 км
от МКАД
от МКАД
550 м²
S объекта
S объекта
24 сот.
S участка
S участка
191 760 002
9 км
от МКАД
от МКАД
850 м²
S объекта
S объекта
27 сот.
S участка
S участка
674 711 117
23 км
от МКАД
от МКАД
800 м²
S объекта
S объекта
25 сот.
S участка
S участка
300 000 000
5 км
от МКАД
от МКАД
1015 м²
S объекта
S объекта
56 сот.
S участка
S участка
1 590 000 000
24 км
от МКАД
от МКАД
415 м²
S объекта
S объекта
4 сот.
S участка
S участка
49 000 000
15 км
от МКАД
от МКАД
прилесной
42 сот.
S участка
S участка
320 000 000
22 км
от МКАД
от МКАД
1100 м²
S объекта
S объекта
48 сот.
S участка
S участка
232 000 000
22 км
от МКАД
от МКАД
лесной
60 сот.
S участка
S участка
78 000 000
13 км
от МКАД
от МКАД
535 м²
S объекта
S объекта
18 сот.
S участка
S участка
490 000 000
5 км
от МКАД
от МКАД
942 м²
S объекта
S объекта
38 сот.
S участка
S участка
1 390 000 000
7 км
от МКАД
от МКАД
646 м²
S объекта
S объекта
11 сот.
S участка
S участка
550 000 000
15 км
от МКАД
от МКАД
1000 м²
S объекта
S объекта
40 сот.
S участка
S участка
400 000 000
24 км
от МКАД
от МКАД
550 м²
S объекта
S объекта
30 сот.
S участка
S участка
269 884 447
5 км
от МКАД
от МКАД
862 м²
S объекта
S объекта
38 сот.
S участка
S участка
650 000 000
11 км
от МКАД
от МКАД
415 м²
S объекта
S объекта
12 сот.
S участка
S участка
360 000 000