Большой дом на берегу озера в Довиле
ID7098 Продажа
- Шоссе Можайское шоссе
- Населенный пункт Одинцово
- Поселок Довиль
- Расстояние от МКАД 11 км
- Площадь объекта 2164 м²
- Площадь участка 58 сот.
Расположение
- Шоссе Можайское шоссе
- Минское шоссе
- Северный объезд Одинцово (платная дорога)
- Населенный пункт Одинцово
- Поселок Довиль
- Удаленность от МКАД 11 км
Объект
- Площадь дома2164 м²
- Кол-во спален6
- Отделкапод ключ с мебелью
Коммуникации
- Водоснабжениецентральное
- Газмагистральный
- Канализацияцентральная
- Электричествода
Дополнительно
- Бассейнда
- Гараж м\мда
- Барбекюда
- Помещение для персоналада
Планировки
Мансарда: холл-библиотека, две комнаты, техническое помещение, домашний кинотеатр, два с/у.
Цоколь: тех.помещения бассейна, вентиляционная камера, серверная, электрощитовая, постирочная.
Этаж 1: холл, малая гостиная, кухня, парадная столовая, салон, кабинет-зимний сад, винный погреб, бильярдная, туалетная комната, гардеробная, гостевая спальня, два с/у, кладовая, щитовая, тех. помещение, тренажерный зал, бассейн, сауна, хамам, душевая, два с/у, холодная гардеробная, котельная.
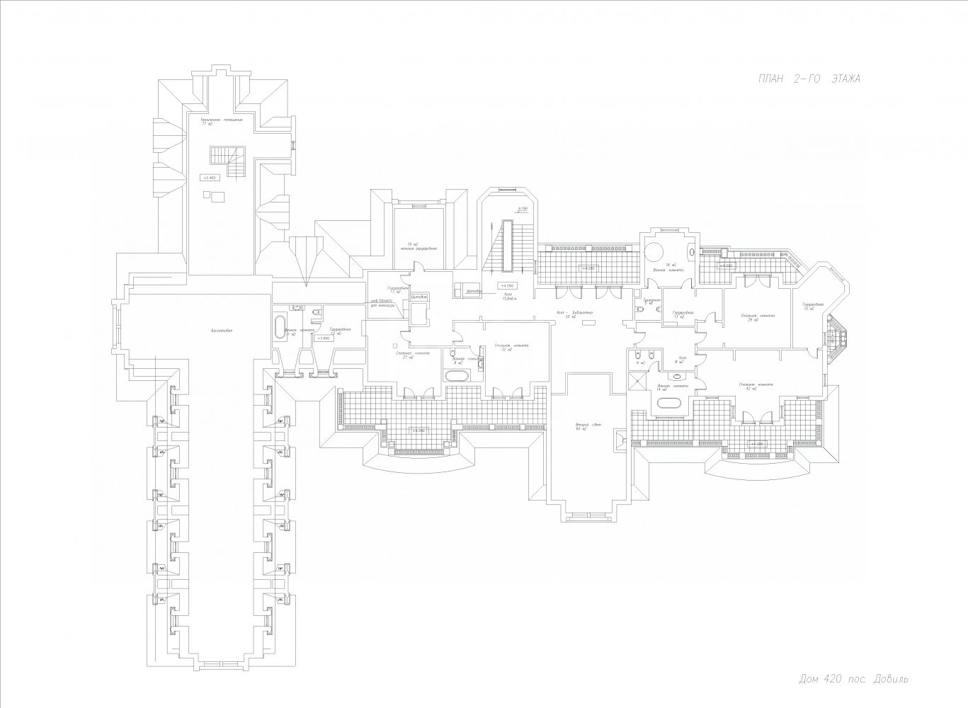
Этаж 2: холл-библиотека, второй свет, две спальни с ванными комнатами и гардеробными, спальня с ванной комнатой, спальня, три гардеробные, ванная комната, техническое помещение.
Описание
Дом расположен на одном из самых больших участков в посёлке, площадью 58 соток. Архитектура дома выполнена с классическом стиле. Дом восхищает своим великолепием, и современной планировкой, в нем максимально реализовано все что может понадобиться для жизни большой семьи. На участке так же расположено барбекю на 4 сезона, для большой компании. Большой гараж на 4 автомобиля с двумя квартирами для персонала на втором этаже.от МКАД
S объекта
S участка
от МКАД
S объекта
S участка
от МКАД
S объекта
S участка
от МКАД
S участка
от МКАД
S объекта
S участка
от МКАД
S объекта
S участка
от МКАД
S объекта
S участка
от МКАД
S объекта
S участка
от МКАД
S объекта
S участка
от МКАД
S объекта
S участка
от МКАД
S объекта
S участка
от МКАД
S объекта
S участка
от МКАД
S объекта
S участка
от МКАД
S объекта
S участка
от МКАД
S объекта
S участка
от МКАД
S участка
от МКАД
S объекта
S участка
от МКАД
S объекта
S участка
от МКАД
S объекта
S участка
от МКАД
S объекта
S участка
от МКАД
S объекта
S участка
от МКАД
S объекта
S участка
от МКАД
S объекта
S участка
от МКАД
S участка