Участок в коттеджном поселке "Вымпел"
ID11359 Продажа
- Шоссе Новорижское шоссе
- Населенный пункт Веледниково
- Поселок Вымпел
- Расстояние от МКАД 16 км
- Площадь участка 50 сот.
Расположение
- Шоссе Новорижское шоссе
- Населенный пункт Веледниково
- Поселок Вымпел
- Удаленность от МКАД 16 км
Объект
- Площадь участка50 сот.
- Категория землиземли с/х назначения
- Назначение землидачное строительство
Коммуникации
- Водоснабжениецентрализованная скважина
- Газмагистральный
- Канализацияцентральная
- Электричествода
Дополнительно
Описание
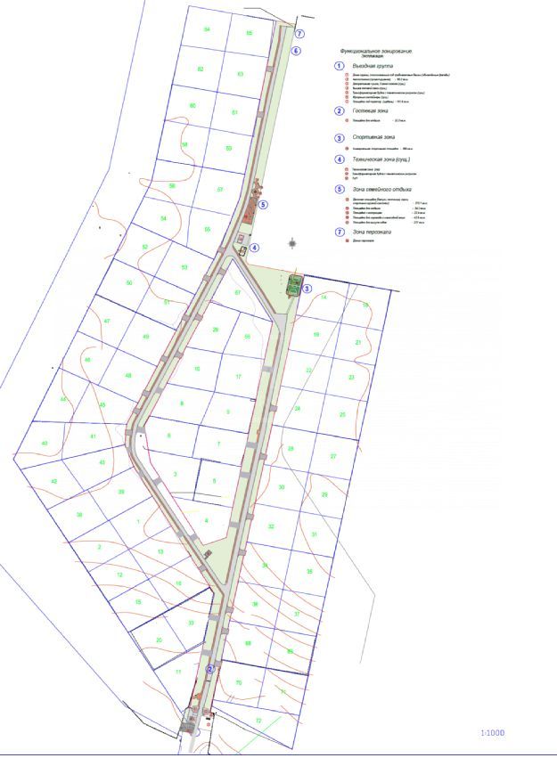
Участок со взрослыми лесными деревьями (сосны, березы, ели), прямоугольной формы. Расположен в начале поселка, имеет все коммуникации по границе. На участке установлена фундаментная плита и стены цокольного этажа, выполнена обратная засыпка песком. По периметру фундамента выполнены дорогие дренажные работы. Получено разрешение на строительство. Рабочий и дизайн-проекты дома, разработанные известным архитектурным бюро будут переданы в подарок покупателю при покупке участка.Поселок Вымпел расположен в 16 км от Москвы по Новорижскому шоссе. Общая территория составляет 17 Га, на которых расположено около 70 домовладений. Вымпел живописный лесной поселок. Здесь царит по-настоящему камерная, спокойная атмосфера, располагающая к отдыху. В то же время, поселок не отрезан от цивилизации множество объектов развитой инфраструктуры . Это магазины, рестораны, кафе, фитнес-клуб известной сети, несколько образовательных учреждений. В непосредственной близости от поселка Вымпел также находится и многофункциональный комплекс Павлово подворье. Охрана в поселке обеспечивается на высоком уровне военизированная охрана, современные системы видеонаблюдения, контроль доступа на территорию.
20 км
от МКАД
от МКАД
у воды
114.9 сот.
S участка
S участка
998 535 451
23 км
от МКАД
от МКАД
полевой
47 сот.
S участка
S участка
117 500 000
20 км
от МКАД
от МКАД
410 м²
S объекта
S объекта
50 сот.
S участка
S участка
175 000 000
9 км
от МКАД
от МКАД
850 м²
S объекта
S объекта
27 сот.
S участка
S участка
746 016 664
23 км
от МКАД
от МКАД
800 м²
S объекта
S объекта
25 сот.
S участка
S участка
300 000 000
15 км
от МКАД
от МКАД
550 м²
S объекта
S объекта
24 сот.
S участка
S участка
212 025 789
1 км
от МКАД
от МКАД
400 м²
S объекта
S объекта
7 сот.
S участка
S участка
225 000 000
19 км
от МКАД
от МКАД
847 м²
S объекта
S объекта
25.2 сот.
S участка
S участка
429 000 000
24 км
от МКАД
от МКАД
прилесной
17 сот.
S участка
S участка
65 000 000
5 км
от МКАД
от МКАД
270 м²
S объекта
S объекта
4 сот.
S участка
S участка
115 000 000
20 км
от МКАД
от МКАД
у воды
30.88 сот.
S участка
S участка
420 000 000
27 км
от МКАД
от МКАД
570 м²
S объекта
S объекта
18 сот.
S участка
S участка
128 000 000
24 км
от МКАД
от МКАД
550 м²
S объекта
S объекта
30 сот.
S участка
S участка
298 406 665
19 км
от МКАД
от МКАД
847 м²
S объекта
S объекта
25.2 сот.
S участка
S участка
429 000 000
5 км
от МКАД
от МКАД
862 м²
S объекта
S объекта
38 сот.
S участка
S участка
650 000 000
15 км
от МКАД
от МКАД
прилесной
42 сот.
S участка
S участка
320 000 000
5 км
от МКАД
от МКАД
942 м²
S объекта
S объекта
38 сот.
S участка
S участка
1 390 000 000
7 км
от МКАД
от МКАД
646 м²
S объекта
S объекта
11 сот.
S участка
S участка
390 000 000
24 км
от МКАД
от МКАД
415 м²
S объекта
S объекта
4 сот.
S участка
S участка
49 000 000
23 км
от МКАД
от МКАД
-
120.6 сот.
S участка
S участка
301 500 000
11 км
от МКАД
от МКАД
415 м²
S объекта
S объекта
12 сот.
S участка
S участка
360 000 000
5 км
от МКАД
от МКАД
1015 м²
S объекта
S объекта
56 сот.
S участка
S участка
1 590 000 000
15 км
от МКАД
от МКАД
1000 м²
S объекта
S объекта
40 сот.
S участка
S участка
420 000 000
22 км
от МКАД
от МКАД
1100 м²
S объекта
S объекта
48 сот.
S участка
S участка
255 000 000