Участки новой очереди в проекте Покровское Рубцово.
ID12841 Продажа
- Шоссе Новорижское шоссе
- Населенный пункт Пионерский
- Поселок Покровское-Рубцово
- Расстояние от МКАД 45 км
- Площадь участка 19.26 сот.
Расположение
- Шоссе Новорижское шоссе
- Волоколамское шоссе
- Населенный пункт Пионерский
- Поселок Покровское-Рубцово
- Удаленность от МКАД 45 км
Объект
- Площадь участка19.26 сот.
- Категория землиземли с/х назначения
- Назначение землиИЖС
- Тип участкалесной
Коммуникации
- Водоснабжениецентральное
- Газмагистральный
- Канализацияцентральная
- Электричествода
Дополнительно
Описание
Старт НОВОЙ ОЧЕРЕДИ продаж в элитном коттеджном поселке «Покровское-Рубцово» — редкое предложение на престижном Новорижском направлении.«Покровское-Рубцово» - уникальный жилой поселок, утопающий в зелени, расположенный на территории старинной усадьбы 18 века, рассчитанный на 90 домовладений в единой архитектурной концепции. Это место для тех, кто ценит приватность, природную эстетику и высокий уровень загородной жизни. Формат поселка обеспечивает особую атмосферу уединения, тишины и достойного окружения, а также позволяет сохранить оптимальный баланс между приватностью загородной резиденции и удобной доступностью столицы. Территория поселка – 41 Га, из которых 7 Га – площадь парка.
Сейчас в продаже новая очередь - всего 18 участков - площадью от 14,24 до 26,34 сотки.
Категория: земли сельскохозяйственного назначения для ведения садоводства
Центральные коммуникации по границам участков: газ, вода, канализация, электричество.
Асфальтированная дорога, подъезд к каждому участку
Пешеходная дорога из тротуарной плитки
Уличные фонари вдоль дорог
Эксклюзивные виды
В поселке особая инфраструктура – усадебный парк с липовой аллеей и рукотворным прудом, теннисный корт, детская площадка. В 10-ти минутах ходьбы от «Покровского-Рубцово» расположен 5-звездочный отель AMAKS «Новая Истра» с расширенной премиум-инфраструктурой: физкультурно-оздоровительным комплексом, ресторанами, кафе и барами, спа-комплексами и косметологическими услугами, детскими площадками и развлечениями.
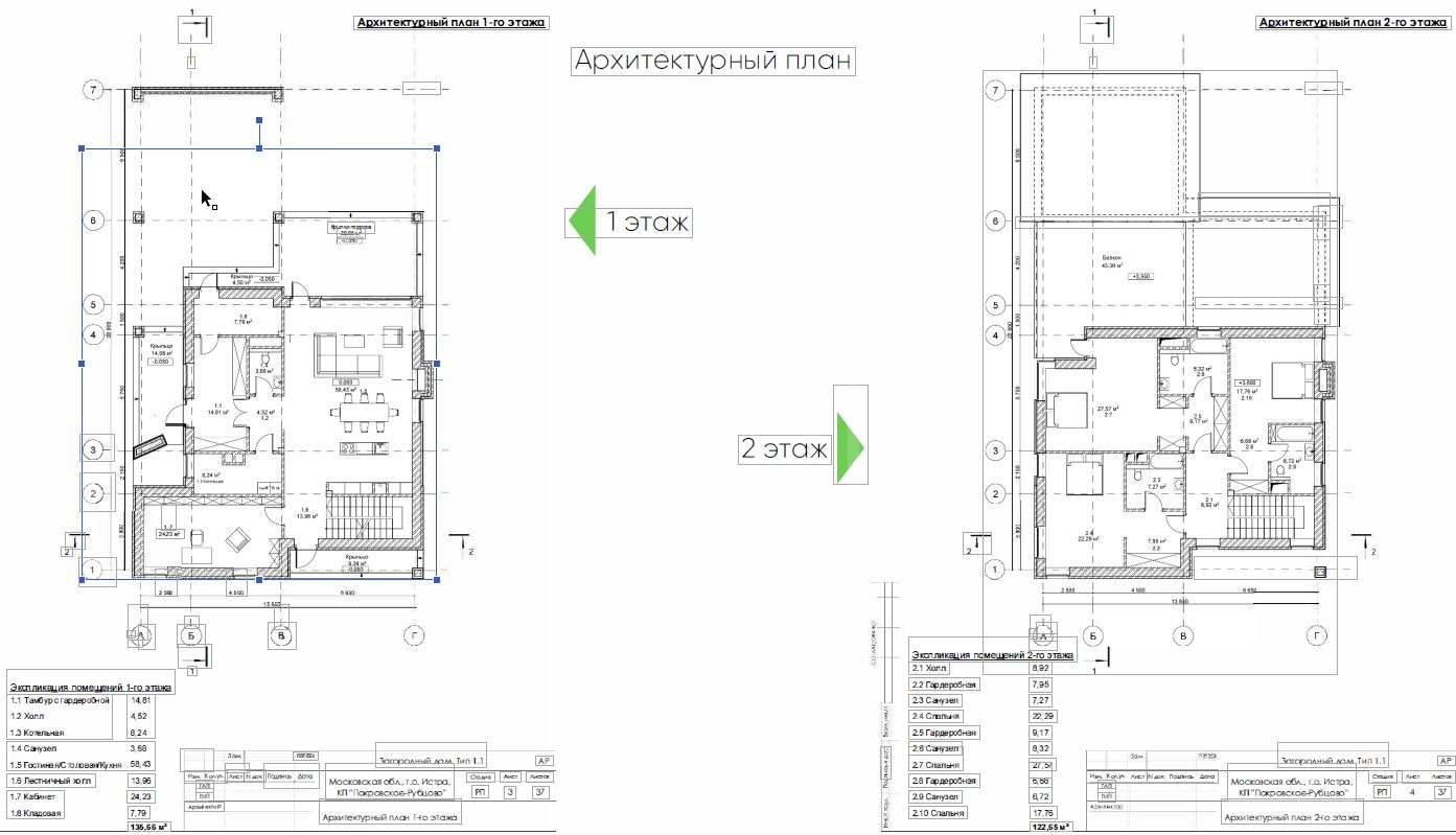
Возможно строительство дома под покупателя, в стилистике представленной на фотографиях.
45 км
от МКАД
от МКАД
лесной
27.5 сот.
S участка
S участка
33 000 000
45 км
от МКАД
от МКАД
лесной
43.7 сот.
S участка
S участка
37 000 000
45 км
от МКАД
от МКАД
полевой
43.5 сот.
S участка
S участка
39 500 000
38 км
от МКАД
от МКАД
лесной
45.7 сот.
S участка
S участка
39 500 000
45 км
от МКАД
от МКАД
лесной
14.24 сот.
S участка
S участка
28 200 000
45 км
от МКАД
от МКАД
лесной
26.34 сот.
S участка
S участка
41 900 000
45 км
от МКАД
от МКАД
лесной
18.51 сот.
S участка
S участка
33 900 000
45 км
от МКАД
от МКАД
садовый
16.54 сот.
S участка
S участка
32 700 000
45 км
от МКАД
от МКАД
лесной
19.97 сот.
S участка
S участка
36 500 000
45 км
от МКАД
от МКАД
лесной
19.26 сот.
S участка
S участка
35 200 000
23 км
от МКАД
от МКАД
полевой
47 сот.
S участка
S участка
117 500 000
1 км
от МКАД
от МКАД
400 м²
S объекта
S объекта
7 сот.
S участка
S участка
225 000 000
5 км
от МКАД
от МКАД
270 м²
S объекта
S объекта
4 сот.
S участка
S участка
115 000 000
23 км
от МКАД
от МКАД
800 м²
S объекта
S объекта
25 сот.
S участка
S участка
300 000 000
20 км
от МКАД
от МКАД
410 м²
S объекта
S объекта
50 сот.
S участка
S участка
175 000 000
20 км
от МКАД
от МКАД
полевой
37 сот.
S участка
S участка
198 000 000
20 км
от МКАД
от МКАД
у воды
114.9 сот.
S участка
S участка
903 093 728
27 км
от МКАД
от МКАД
570 м²
S объекта
S объекта
18 сот.
S участка
S участка
128 000 000
9 км
от МКАД
от МКАД
850 м²
S объекта
S объекта
27 сот.
S участка
S участка
674 711 117
24 км
от МКАД
от МКАД
прилесной
17 сот.
S участка
S участка
63 000 000
20 км
от МКАД
от МКАД
у воды
30.88 сот.
S участка
S участка
420 000 000
15 км
от МКАД
от МКАД
550 м²
S объекта
S объекта
24 сот.
S участка
S участка
191 760 002
22 км
от МКАД
от МКАД
1100 м²
S объекта
S объекта
48 сот.
S участка
S участка
232 000 000
13 км
от МКАД
от МКАД
535 м²
S объекта
S объекта
18 сот.
S участка
S участка
490 000 000
22 км
от МКАД
от МКАД
лесной
60 сот.
S участка
S участка
78 000 000
24 км
от МКАД
от МКАД
415 м²
S объекта
S объекта
4 сот.
S участка
S участка
49 000 000
11 км
от МКАД
от МКАД
415 м²
S объекта
S объекта
12 сот.
S участка
S участка
360 000 000
24 км
от МКАД
от МКАД
550 м²
S объекта
S объекта
30 сот.
S участка
S участка
269 884 447
5 км
от МКАД
от МКАД
942 м²
S объекта
S объекта
38 сот.
S участка
S участка
1 390 000 000
5 км
от МКАД
от МКАД
1015 м²
S объекта
S объекта
56 сот.
S участка
S участка
1 590 000 000
5 км
от МКАД
от МКАД
862 м²
S объекта
S объекта
38 сот.
S участка
S участка
650 000 000
7 км
от МКАД
от МКАД
646 м²
S объекта
S объекта
11 сот.
S участка
S участка
550 000 000
15 км
от МКАД
от МКАД
1000 м²
S объекта
S объекта
40 сот.
S участка
S участка
400 000 000
15 км
от МКАД
от МКАД
прилесной
42 сот.
S участка
S участка
320 000 000