Новый коттедж в Молоденово
ID11244 Продажа
- Шоссе Рублёво-Успенское шоссе
- Населенный пункт Молоденово
- Расстояние от МКАД 23 км
- Площадь объекта 540 м²
- Площадь участка 12.5 сот.
Расположение
- Шоссе Рублёво-Успенское шоссе
- 2-ое Успенское шоссе
- Северный объезд Одинцово (платная дорога)
- Населенный пункт Молоденово
- Удаленность от МКАД 23 км
Объект
- Площадь дома540 м²
- Кол-во спален5
- Год постройки здания2023
- Отделкапод ключ без мебели
Коммуникации
- Водоснабжениеиндивидуальная скважина
- Газмагистральный
- Канализациясептик
- Электричествода
Дополнительно
- Гараж м\мда
Планировки
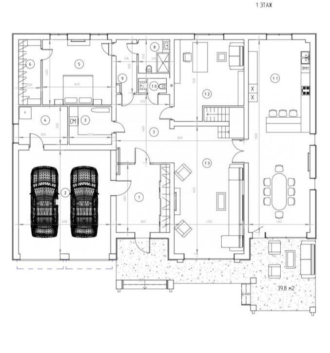
Этаж 1: Холл, кухня, гостиная с выходом на террасу, спальня с санузлом, котельная, постирочная, кабинет, гараж.
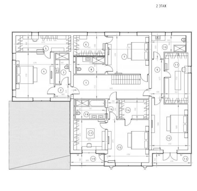
Этаж 2: Мастер спальня с ванной комнатой и гардеробной, 3 спальни со своими гардеробными и санузлами.
Описание
К продаже представлен новый, современный дом.На участке будут выполнены работы по ландшафтному дизайну, высажены плодовитые деревья, цветы и уложен газон. Дом построен по специальному проекту, который включает в себя: на первом этаже большую входную группу, кухню, гостинную с выходом на террасу, кабинет, гостевую спальню с собственным санузлом, на втором этаже 4 большие спальни с собственными гардеробными и ванными комнатами.
23 км
от МКАД
от МКАД
491 м²
S объекта
S объекта
12.5 сот.
S участка
S участка
135 000 000
28 км
от МКАД
от МКАД
800 м²
S объекта
S объекта
44 сот.
S участка
S участка
62 000 000
24 км
от МКАД
от МКАД
1050 м²
S объекта
S объекта
26 сот.
S участка
S участка
537 917 279
1 км
от МКАД
от МКАД
1830 м²
S объекта
S объекта
15 сот.
S участка
S участка
642 685 323
9 км
от МКАД
от МКАД
750 м²
S объекта
S объекта
8 сот.
S участка
S участка
306 259 472
9 км
от МКАД
от МКАД
220 м²
S объекта
S объекта
8 сот.
S участка
S участка
107 000 000
19 км
от МКАД
от МКАД
2100 м²
S объекта
S объекта
63 сот.
S участка
S участка
1 963 201 746
22 км
от МКАД
от МКАД
садовый
50 сот.
S участка
S участка
60 000 000
28 км
от МКАД
от МКАД
360 м²
S объекта
S объекта
20 сот.
S участка
S участка
107 000 000
13 км
от МКАД
от МКАД
460 м²
S объекта
S объекта
23 сот.
S участка
S участка
110 000 000
Квартира с огромной террасой в ЖК Остров Фантазий
ID5028 Продажа
Рублёво-Успенское шоссе, Западный, Крылатское
17 км
от МКАД
от МКАД
245 м²
S объекта
S объекта
Под ключ
с мебелью
с мебелью
230 000 000
8 км
от МКАД
от МКАД
-
20.64 сот.
S участка
S участка
110 250 000
7 км
от МКАД
от МКАД
630 м²
S объекта
S объекта
12 сот.
S участка
S участка
188 000 000
5 км
от МКАД
от МКАД
942 м²
S объекта
S объекта
38 сот.
S участка
S участка
1 390 000 000
15 км
от МКАД
от МКАД
1000 м²
S объекта
S объекта
40 сот.
S участка
S участка
420 000 000
5 км
от МКАД
от МКАД
862 м²
S объекта
S объекта
38 сот.
S участка
S участка
650 000 000
15 км
от МКАД
от МКАД
прилесной
42 сот.
S участка
S участка
320 000 000
7 км
от МКАД
от МКАД
646 м²
S объекта
S объекта
11 сот.
S участка
S участка
390 000 000
24 км
от МКАД
от МКАД
415 м²
S объекта
S объекта
4 сот.
S участка
S участка
49 000 000
24 км
от МКАД
от МКАД
550 м²
S объекта
S объекта
30 сот.
S участка
S участка
298 406 665
22 км
от МКАД
от МКАД
1100 м²
S объекта
S объекта
48 сот.
S участка
S участка
255 000 000
11 км
от МКАД
от МКАД
415 м²
S объекта
S объекта
12 сот.
S участка
S участка
360 000 000
23 км
от МКАД
от МКАД
-
120.6 сот.
S участка
S участка
301 500 000
5 км
от МКАД
от МКАД
1015 м²
S объекта
S объекта
56 сот.
S участка
S участка
1 590 000 000
19 км
от МКАД
от МКАД
847 м²
S объекта
S объекта
25.2 сот.
S участка
S участка
429 000 000