Современный дом под ключ
ID11419 Продажа
- Шоссе Ильинское шоссе
- Населенный пункт Петрово-Дальнее
- Расстояние от МКАД 18 км
- Площадь объекта 310 м²
- Площадь участка 12 сот.
Расположение
- Шоссе Ильинское шоссе
- Рублёво-Успенское шоссе
- Новорижское шоссе
- Населенный пункт Петрово-Дальнее
- Удаленность от МКАД 18 км
Объект
- Площадь дома310 м²
- Кол-во спален4
- Год постройки здания2022
- Отделкапод ключ с мебелью
Коммуникации
- Водоснабжениецентрализованная скважина
- Газмагистральный
- Канализациясептик
- Электричествода
Дополнительно
Планировки
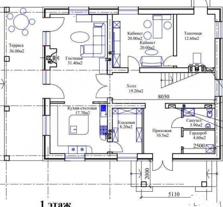
Этаж 1: Входная группа, гардеробная, санузел, большая кухня гостиная с выходом на террасу, кладовая, спальня, котельная.
Этаж 2: Мастер спальня с кабинетом, санузлом, гардеробной; 2 спальни, гардеробная, санузел, постирочная.
Описание
Общая площадь дома составляет более 300 квадратных метров, что позволяет разместить все необходимые функциональные зоны с максимальным комфортом. Планировка продумана до мелочей: просторная гостиная с высокими потолками становится центральным местом для семейных встреч и приема гостей, с выходом на большую террасу. Смежная кухня-столовая оборудована встроенной техникой премиум-класса — духовой шкаф, варочная панель, вытяжка, посудомоечная машина, холодильник. На первом этаже также расположены: удобная прихожая с гардеробной, отдельный санузел для гостей, гостевая спальня. Особое внимание уделено инженерным системам: установлены система рекуперации воздуха, «умный дом» с управлением освещением, климатом и безопасностью, а также автономное газовое.Второй этаж — это личное пространство семьи. Здесь находятся три просторные спальни, одна из которых — мастер-спальня с собственной гардеробной и с кабинетом, 2 спальни, санузел, постирочная. Дом построен по передовым технологиям с использованием высококачественных материалов, что гарантирует надежность, энергоэффективность и минимальные эксплуатационные расходы. Отделка выполнена в современном стиле с акцентом на натуральные текстуры: дерево, камень, матовые поверхности и тонированные стекла. Пространство наполнено светом благодаря панорамным окнам, выходящими на южную и западную стороны, обеспечивая естественное освещение в течение большей части дня.
15 км
от МКАД
от МКАД
215 м²
S объекта
S объекта
7.77 сот.
S участка
S участка
33 000 000
15 км
от МКАД
от МКАД
348 м²
S объекта
S объекта
9 сот.
S участка
S участка
50 000 000
15 км
от МКАД
от МКАД
374 м²
S объекта
S объекта
9 сот.
S участка
S участка
53 000 000
9 км
от МКАД
от МКАД
-
58 сот.
S участка
S участка
350 000 000
40 км
от МКАД
от МКАД
2500 м²
S объекта
S объекта
200 сот.
S участка
S участка
350 000 000
6 км
от МКАД
от МКАД
-
170 сот.
S участка
S участка
235 584 210
23 км
от МКАД
от МКАД
396 м²
S объекта
S объекта
18 сот.
S участка
S участка
29 600 000
9 км
от МКАД
от МКАД
1000 м²
S объекта
S объекта
20 сот.
S участка
S участка
439 757 191
18 км
от МКАД
от МКАД
370 м²
S объекта
S объекта
2.7 сот.
S участка
S участка
34 950 000
10 км
от МКАД
от МКАД
400 м²
S объекта
S объекта
18.7 сот.
S участка
S участка
195 000 000
10 км
от МКАД
от МКАД
-
50 сот.
S участка
S участка
164 908 947
9 км
от МКАД
от МКАД
-
15 сот.
S участка
S участка
90 307 280
9 км
от МКАД
от МКАД
1500 м²
S объекта
S объекта
33 сот.
S участка
S участка
1 413 505 257
9 км
от МКАД
от МКАД
-
47 сот.
S участка
S участка
274 848 245
9 км
от МКАД
от МКАД
232 м²
S объекта
S объекта
Под ключ
с мебелью
с мебелью
83 239 754
5 км
от МКАД
от МКАД
1015 м²
S объекта
S объекта
56 сот.
S участка
S участка
1 590 000 000
5 км
от МКАД
от МКАД
862 м²
S объекта
S объекта
38 сот.
S участка
S участка
650 000 000
23 км
от МКАД
от МКАД
-
120.6 сот.
S участка
S участка
301 500 000
11 км
от МКАД
от МКАД
415 м²
S объекта
S объекта
12 сот.
S участка
S участка
360 000 000
24 км
от МКАД
от МКАД
550 м²
S объекта
S объекта
30 сот.
S участка
S участка
298 406 665
19 км
от МКАД
от МКАД
847 м²
S объекта
S объекта
25.2 сот.
S участка
S участка
429 000 000
7 км
от МКАД
от МКАД
646 м²
S объекта
S объекта
11 сот.
S участка
S участка
390 000 000
24 км
от МКАД
от МКАД
415 м²
S объекта
S объекта
4 сот.
S участка
S участка
49 000 000
15 км
от МКАД
от МКАД
1000 м²
S объекта
S объекта
40 сот.
S участка
S участка
420 000 000
5 км
от МКАД
от МКАД
942 м²
S объекта
S объекта
38 сот.
S участка
S участка
1 390 000 000
15 км
от МКАД
от МКАД
прилесной
42 сот.
S участка
S участка
320 000 000
22 км
от МКАД
от МКАД
1100 м²
S объекта
S объекта
48 сот.
S участка
S участка
255 000 000