Дом с бассейном в КП Бенилюкс
ID11606 Продажа
- Шоссе Новорижское шоссе
- Населенный пункт Чесноково
- Поселок Резиденция Бенилюкс
- Расстояние от МКАД 19 км
- Площадь объекта 850 м²
- Площадь участка 25 сот.
Расположение
- Шоссе Новорижское шоссе
- Ильинское шоссе
- Населенный пункт Чесноково
- Поселок Резиденция Бенилюкс
- Удаленность от МКАД 19 км
Объект
- Площадь дома850 м²
- Кол-во спален5
- Отделкапод ключ с мебелью
Коммуникации
- Водоснабжениецентральное
- Газмагистральный
- Канализацияцентральная
- Электричествода
Дополнительно
- Бассейнда
- Баняда
- Гараж м\мда
- Барбекюда
- Помещение для персоналада
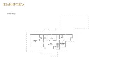
Планировки
Мансарда: 2 спальни с с/у, подсобные помещения
Этаж 1: Прихожая, 2 гардеробных, с/у, кухня, столовая, гостиная, каминный зал, спальня с с/у, кабинет, тренажерный зал, спа-зона с бассейном, гараж, котельная
Этаж 2: Мастер-спальня с 2-мя гардеробными и с/у, 2 спальни с/у
Описание
К продаже прекрасный дом с авторской отделкой площадью 850 кв.м расположен на участке с красивым ландшафтным дизайном с многовековыми соснами и редкими породами деревьев. При въезде на участок большая парковочнаязона, гараж, навес на две машины, дом для персонала. В саду есть открытая беседка с очагом для барбекю, отдельная мангальная зона, чайный домик, кострище, пруд с рыбками, изящный мостик, мягкая лужайка, теплица для любого времени года, аллея камней, 21-метровый бассейн, фонтан, клумбы, множество растений, кустарников, плодовых и хвойных деревьев. Такое разнообразие позволяет саду цвести до поздней осени.
19 км
от МКАД
от МКАД
550 м²
S объекта
S объекта
18.5 сот.
S участка
S участка
400 000 000
19 км
от МКАД
от МКАД
520 м²
S объекта
S объекта
16 сот.
S участка
S участка
290 000 000
19 км
от МКАД
от МКАД
774.4 м²
S объекта
S объекта
39 сот.
S участка
S участка
255 000 000
19 км
от МКАД
от МКАД
720 м²
S объекта
S объекта
17.5 сот.
S участка
S участка
390 000 000
19 км
от МКАД
от МКАД
691.8 м²
S объекта
S объекта
42.14 сот.
S участка
S участка
350 000 000
19 км
от МКАД
от МКАД
450 м²
S объекта
S объекта
11 сот.
S участка
S участка
295 000 000
19 км
от МКАД
от МКАД
550 м²
S объекта
S объекта
30 сот.
S участка
S участка
251 428 033
19 км
от МКАД
от МКАД
630 м²
S объекта
S объекта
30.3 сот.
S участка
S участка
270 000 000
19 км
от МКАД
от МКАД
489 м²
S объекта
S объекта
21.78 сот.
S участка
S участка
300 000 000
19 км
от МКАД
от МКАД
500 м²
S объекта
S объекта
19 сот.
S участка
S участка
390 000 000
26 км
от МКАД
от МКАД
800 м²
S объекта
S объекта
50 сот.
S участка
S участка
400 000 000
19 км
от МКАД
от МКАД
780 м²
S объекта
S объекта
43.41 сот.
S участка
S участка
329 999 293
15 км
от МКАД
от МКАД
550 м²
S объекта
S объекта
24 сот.
S участка
S участка
212 142 403
24 км
от МКАД
от МКАД
прилесной
17 сот.
S участка
S участка
65 000 000
5 км
от МКАД
от МКАД
270 м²
S объекта
S объекта
4 сот.
S участка
S участка
115 000 000
20 км
от МКАД
от МКАД
410 м²
S объекта
S объекта
50 сот.
S участка
S участка
175 000 000
20 км
от МКАД
от МКАД
у воды
30.88 сот.
S участка
S участка
420 000 000
1 км
от МКАД
от МКАД
400 м²
S объекта
S объекта
7 сот.
S участка
S участка
225 000 000
20 км
от МКАД
от МКАД
у воды
114.9 сот.
S участка
S участка
999 084 645
19 км
от МКАД
от МКАД
847 м²
S объекта
S объекта
25.2 сот.
S участка
S участка
429 000 000
9 км
от МКАД
от МКАД
850 м²
S объекта
S объекта
27 сот.
S участка
S участка
746 426 972
23 км
от МКАД
от МКАД
800 м²
S объекта
S объекта
25 сот.
S участка
S участка
300 000 000
23 км
от МКАД
от МКАД
полевой
47 сот.
S участка
S участка
117 500 000
27 км
от МКАД
от МКАД
570 м²
S объекта
S объекта
18 сот.
S участка
S участка
128 000 000
5 км
от МКАД
от МКАД
1015 м²
S объекта
S объекта
56 сот.
S участка
S участка
1 590 000 000
22 км
от МКАД
от МКАД
1100 м²
S объекта
S объекта
48 сот.
S участка
S участка
255 000 000
24 км
от МКАД
от МКАД
550 м²
S объекта
S объекта
30 сот.
S участка
S участка
298 570 789
19 км
от МКАД
от МКАД
847 м²
S объекта
S объекта
25.2 сот.
S участка
S участка
429 000 000
23 км
от МКАД
от МКАД
-
120.6 сот.
S участка
S участка
301 500 000
15 км
от МКАД
от МКАД
1000 м²
S объекта
S объекта
40 сот.
S участка
S участка
420 000 000
7 км
от МКАД
от МКАД
646 м²
S объекта
S объекта
11 сот.
S участка
S участка
390 000 000
11 км
от МКАД
от МКАД
415 м²
S объекта
S объекта
12 сот.
S участка
S участка
360 000 000
5 км
от МКАД
от МКАД
862 м²
S объекта
S объекта
38 сот.
S участка
S участка
650 000 000
5 км
от МКАД
от МКАД
942 м²
S объекта
S объекта
38 сот.
S участка
S участка
1 390 000 000
15 км
от МКАД
от МКАД
прилесной
42 сот.
S участка
S участка
320 000 000
24 км
от МКАД
от МКАД
415 м²
S объекта
S объекта
4 сот.
S участка
S участка
49 000 000