Дом в стиле Шале
ID12023 Продажа
- Шоссе Рублёво-Успенское шоссе
- Населенный пункт Иславское
- Поселок Лесной Уют
- Расстояние от МКАД 27 км
- Площадь объекта 581.7 м²
- Площадь участка 16.5 сот.
Расположение
- Шоссе Рублёво-Успенское шоссе
- Северный объезд Одинцово (платная дорога)
- Северный объезд Одинцово (платная дорога)
- Населенный пункт Иславское
- Поселок Лесной Уют
- Удаленность от МКАД 27 км
Объект
- Площадь дома581.7 м²
- Кол-во спален4
- Год постройки здания2024
- Отделкачерновая отделка
Коммуникации
- Водоснабжениецентральное
- Газмагистральный
- Канализацияцентральная
- Электричествода
Дополнительно
- Гараж м\мда
Планировки
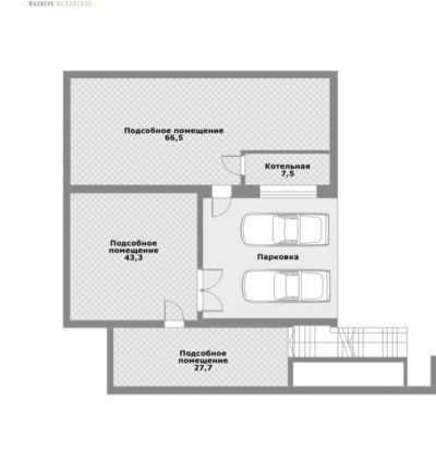
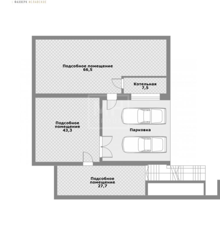
Цоколь: котельная, техническое помещение, парковка на 2 м/м под навесом
Этаж 1: прихожая с гардеробной, кухня, столовая-гостиная со вторым светом, гостевая спальня, с/у, постирочная, кладовая, террасы.
Этаж 2: мастер-спальня с гардеробной и ванной комнатой, 2 детские с ванной комнатой, кабинет с выходом на балкон.
Описание
К продаже представлен модный современный фахверк с панорамными окнами, в окружении леса. Стильный проект альпийского шале 582 кв.м на лесном участке 16.5 соток, в жилом поселке с вековыми деревьями. Премиальный дом статно вписан в естественный ландшафт участка, а большое остекление выигрышно наполняет дом светом и живописными видами, расширяя границы участка. Преимущества проекта: высокое качество строительства, продуманная по видовым параметрам посадка дома на участок, панорамные окна, высокие потолки (до 3.7м), второй свет в столовой (около 7м), террасы и балконы на две стороны, функциональная планировка. Дом построен по технологии фахверк. Использовались дорогие материалы: клееный брус с увеличенным сечением 27x30, алюминиевые окна Alutech, фальцевая кровля, монолитный цоколь, железобетонные перекрытия. Текущее состояние- "под отделку". Установлен временный котел . Выполнена вечерняя подсветка фасада. Строительная компания готова сделать отделку "под ключ". за 6-8 месяцев.
24 км
от МКАД
от МКАД
477 м²
S объекта
S объекта
8.5 сот.
S участка
S участка
110 084 445
28 км
от МКАД
от МКАД
400 м²
S объекта
S объекта
15 сот.
S участка
S участка
135 000 000
26 км
от МКАД
от МКАД
220 м²
S объекта
S объекта
8.2 сот.
S участка
S участка
120 000 000
9 км
от МКАД
от МКАД
1650 м²
S объекта
S объекта
70 сот.
S участка
S участка
826 371 156
24 км
от МКАД
от МКАД
1050 м²
S объекта
S объекта
26 сот.
S участка
S участка
486 502 227
23 км
от МКАД
от МКАД
-
84 сот.
S участка
S участка
135 000 000
9 км
от МКАД
от МКАД
750 м²
S объекта
S объекта
8 сот.
S участка
S участка
276 986 669
15 км
от МКАД
от МКАД
1200 м²
S объекта
S объекта
50 сот.
S участка
S участка
333 804 447
4 км
от МКАД
от МКАД
343 м²
S объекта
S объекта
Под ключ
с мебелью
с мебелью
213 066 669
8 км
от МКАД
от МКАД
-
20.64 сот.
S участка
S участка
105 000 000
9 км
от МКАД
от МКАД
220 м²
S объекта
S объекта
8 сот.
S участка
S участка
132 000 000
1 км
от МКАД
от МКАД
1830 м²
S объекта
S объекта
15 сот.
S участка
S участка
578 459 809
9 км
от МКАД
от МКАД
лесной
17.7 сот.
S участка
S участка
126 135 468
13 км
от МКАД
от МКАД
460 м²
S объекта
S объекта
23 сот.
S участка
S участка
110 000 000
Квартира с огромной террасой в ЖК Остров Фантазий
ID5028 Продажа
Рублёво-Успенское шоссе, Западный, Крылатское
1 км
от МКАД
от МКАД
245 м²
S объекта
S объекта
Под ключ
с мебелью
с мебелью
230 000 000
11 км
от МКАД
от МКАД
415 м²
S объекта
S объекта
12 сот.
S участка
S участка
360 000 000
24 км
от МКАД
от МКАД
550 м²
S объекта
S объекта
30 сот.
S участка
S участка
269 884 447
5 км
от МКАД
от МКАД
1015 м²
S объекта
S объекта
56 сот.
S участка
S участка
1 590 000 000
5 км
от МКАД
от МКАД
862 м²
S объекта
S объекта
38 сот.
S участка
S участка
650 000 000
5 км
от МКАД
от МКАД
942 м²
S объекта
S объекта
38 сот.
S участка
S участка
1 390 000 000
22 км
от МКАД
от МКАД
1100 м²
S объекта
S объекта
48 сот.
S участка
S участка
232 000 000
15 км
от МКАД
от МКАД
1000 м²
S объекта
S объекта
40 сот.
S участка
S участка
400 000 000
24 км
от МКАД
от МКАД
415 м²
S объекта
S объекта
4 сот.
S участка
S участка
49 000 000
13 км
от МКАД
от МКАД
535 м²
S объекта
S объекта
18 сот.
S участка
S участка
490 000 000
22 км
от МКАД
от МКАД
лесной
60 сот.
S участка
S участка
78 000 000
7 км
от МКАД
от МКАД
646 м²
S объекта
S объекта
11 сот.
S участка
S участка
550 000 000
15 км
от МКАД
от МКАД
прилесной
42 сот.
S участка
S участка
320 000 000