Современный дом в КП Созвездие
ID12055 Продажа
- Шоссе Рублёво-Успенское шоссе
- Населенный пункт Горки-2
- Поселок Созвездие
- Расстояние от МКАД 15 км
- Площадь объекта 820 м²
- Площадь участка 42 сот.
Расположение
- Шоссе Рублёво-Успенское шоссе
- Северный объезд Одинцово (платная дорога)
- Красногорское шоссе
- Населенный пункт Горки-2
- Поселок Созвездие
- Удаленность от МКАД 15 км
Объект
- Площадь дома820 м²
- Кол-во спален5
- Год постройки здания2025
- Отделкачерновая отделка
Коммуникации
- Водоснабжениеиндивидуальная скважина
- Газмагистральный
- Канализацияцентральная
- Электричествода
Дополнительно
- Бассейнда
- Гараж м\мда
- Гостевой домда
- Барбекюда
- Помещение для персоналада
Планировки
Цоколь: Бильярдная, кухня, зона отдыха, подсобные помещения
Этаж 1: Прихожая, гардеробная, с/у, кухня, столовая, гостиная, рабочая кухня, спальня с с/у, кабинет
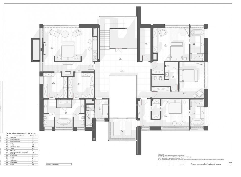
Этаж 2: Мастер-спальня с 2-мя гардеробными и с/у, 2 спальни с с/у и гардеробными
Описание
Дом под отделку в камерном поселке на Рублево-Успенском шоссе. Дом построен из качественных материалов, остекление Schuco, функциональная планировка, высокие потолки. На участке предусмотрены СПА 348 м2 (бассейн, хамам, сауна,тренажерный зал, салон красоты, массажный кабинет, 2 с/у), гостевой дом 206 м2 и двухэтажный гараж 277 м2 с квартирой для персонала. Единая концепция застройки в поселке. В шаговой доступности разнообразная инфраструктура Горок-2.
15 км
от МКАД
от МКАД
1282 м²
S объекта
S объекта
50.5 сот.
S участка
S участка
1 300 000 000
15 км
от МКАД
от МКАД
1400 м²
S объекта
S объекта
90 сот.
S участка
S участка
1 207 377 789
15 км
от МКАД
от МКАД
800 м²
S объекта
S объекта
21 сот.
S участка
S участка
980 000 000
8 км
от МКАД
от МКАД
-
20.64 сот.
S участка
S участка
105 000 000
9 км
от МКАД
от МКАД
1650 м²
S объекта
S объекта
70 сот.
S участка
S участка
826 371 156
9 км
от МКАД
от МКАД
750 м²
S объекта
S объекта
8 сот.
S участка
S участка
276 986 669
4 км
от МКАД
от МКАД
343 м²
S объекта
S объекта
Под ключ
с мебелью
с мебелью
213 066 669
Квартира с огромной террасой в ЖК Остров Фантазий
ID5028 Продажа
Рублёво-Успенское шоссе, Западный, Крылатское
1 км
от МКАД
от МКАД
245 м²
S объекта
S объекта
Под ключ
с мебелью
с мебелью
230 000 000
13 км
от МКАД
от МКАД
460 м²
S объекта
S объекта
23 сот.
S участка
S участка
110 000 000
15 км
от МКАД
от МКАД
1200 м²
S объекта
S объекта
50 сот.
S участка
S участка
333 804 447
1 км
от МКАД
от МКАД
1830 м²
S объекта
S объекта
15 сот.
S участка
S участка
578 459 809
9 км
от МКАД
от МКАД
лесной
17.7 сот.
S участка
S участка
126 135 468
24 км
от МКАД
от МКАД
1050 м²
S объекта
S объекта
26 сот.
S участка
S участка
486 502 227
23 км
от МКАД
от МКАД
-
84 сот.
S участка
S участка
135 000 000
9 км
от МКАД
от МКАД
220 м²
S объекта
S объекта
8 сот.
S участка
S участка
132 000 000
7 км
от МКАД
от МКАД
646 м²
S объекта
S объекта
11 сот.
S участка
S участка
550 000 000
13 км
от МКАД
от МКАД
535 м²
S объекта
S объекта
18 сот.
S участка
S участка
490 000 000
5 км
от МКАД
от МКАД
1015 м²
S объекта
S объекта
56 сот.
S участка
S участка
1 590 000 000
22 км
от МКАД
от МКАД
1100 м²
S объекта
S объекта
48 сот.
S участка
S участка
232 000 000
15 км
от МКАД
от МКАД
прилесной
42 сот.
S участка
S участка
320 000 000
15 км
от МКАД
от МКАД
1000 м²
S объекта
S объекта
40 сот.
S участка
S участка
400 000 000
24 км
от МКАД
от МКАД
550 м²
S объекта
S объекта
30 сот.
S участка
S участка
269 884 447
24 км
от МКАД
от МКАД
415 м²
S объекта
S объекта
4 сот.
S участка
S участка
49 000 000
5 км
от МКАД
от МКАД
862 м²
S объекта
S объекта
38 сот.
S участка
S участка
650 000 000
5 км
от МКАД
от МКАД
942 м²
S объекта
S объекта
38 сот.
S участка
S участка
1 390 000 000
11 км
от МКАД
от МКАД
415 м²
S объекта
S объекта
12 сот.
S участка
S участка
360 000 000
22 км
от МКАД
от МКАД
лесной
60 сот.
S участка
S участка
78 000 000