Дом под отделку в КП Маслово Форест Клаб
ID12108 Продажа
- Шоссе Рублёво-Успенское шоссе
- Населенный пункт Маслово
- Поселок Маслово Forest Club
- Расстояние от МКАД 23 км
- Площадь объекта 268 м²
- Площадь участка 10.4 сот.
Расположение
- Шоссе Рублёво-Успенское шоссе
- Ильинское шоссе
- Ильинское шоссе
- Населенный пункт Маслово
- Поселок Маслово Forest Club
- Удаленность от МКАД 23 км
Объект
- Площадь дома268 м²
- Кол-во спален4
- Год постройки здания2023
- Отделкачерновая отделка
Коммуникации
- Водоснабжениецентральное
- Газмагистральный
- Канализацияцентральная
- Электричествода
Дополнительно
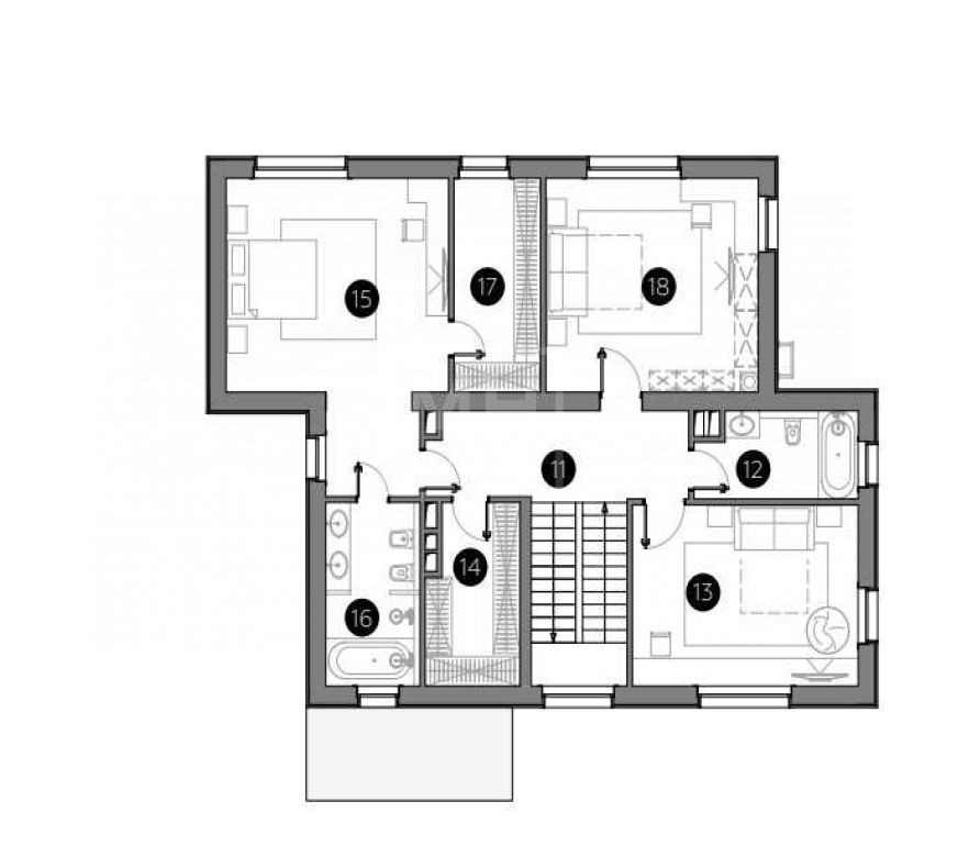
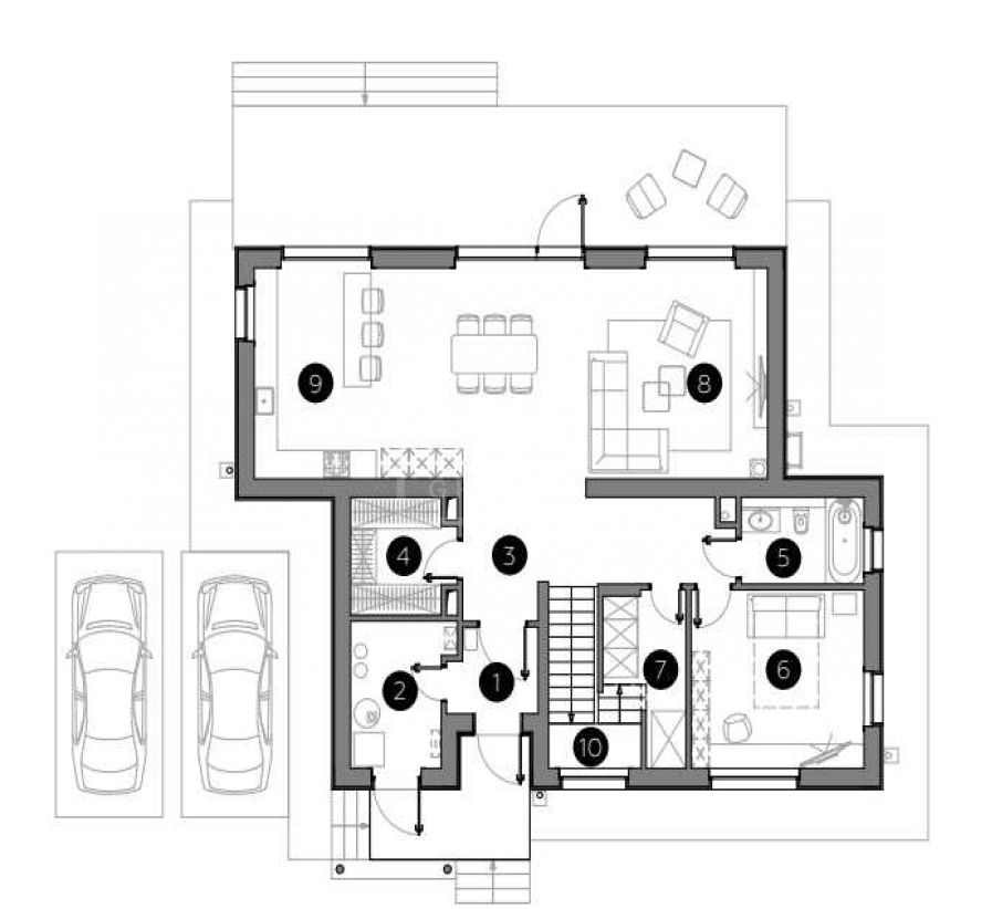
Планировки
Этаж 1: Прихожая, гардеробная, с/у, кухня-столовая, гостиная, кабинет/спальня, кладовая, котельная
Этаж 2: Мастер-спальни с с/у и гардеробной, 2 спальни, с/у, гардеробная
Описание
Новый современный дом под отделку в поселке Маслово Forest Club. Дом расположен в полностью построенной очереди. Продуманная и функциональная планировка. Алюминиевые окна ALUTECH. В гостиной панорамные окна с выходом на террасу. Предусмотрена возможность установки камина в зоне кухни-столовой-гостиной.В непосредственной близости от поселка благоустроенная лесопарковая зона с дорожками, спортивными и детскими площадками, гамаками и качелями. На всей территории установлено освещение.
22 км
от МКАД
от МКАД
360 м²
S объекта
S объекта
17 сот.
S участка
S участка
79 000 000
23 км
от МКАД
от МКАД
286 м²
S объекта
S объекта
5.5 сот.
S участка
S участка
63 000 000
23 км
от МКАД
от МКАД
700 м²
S объекта
S объекта
25 сот.
S участка
S участка
55 000 000
23 км
от МКАД
от МКАД
282 м²
S объекта
S объекта
12 сот.
S участка
S участка
82 000 000
23 км
от МКАД
от МКАД
293 м²
S объекта
S объекта
12.1 сот.
S участка
S участка
85 000 000
23 км
от МКАД
от МКАД
264.7 м²
S объекта
S объекта
16.95 сот.
S участка
S участка
54 500 000
23 км
от МКАД
от МКАД
524 м²
S объекта
S объекта
50 сот.
S участка
S участка
78 000 000
Квартира с огромной террасой в ЖК Остров Фантазий
ID5028 Продажа
Рублёво-Успенское шоссе, Западный, Крылатское
17 км
от МКАД
от МКАД
245 м²
S объекта
S объекта
Под ключ
с мебелью
с мебелью
230 000 000
9 км
от МКАД
от МКАД
220 м²
S объекта
S объекта
8 сот.
S участка
S участка
107 000 000
1 км
от МКАД
от МКАД
1830 м²
S объекта
S объекта
15 сот.
S участка
S участка
639 076 808
13 км
от МКАД
от МКАД
460 м²
S объекта
S объекта
23 сот.
S участка
S участка
110 000 000
4 км
от МКАД
от МКАД
343 м²
S объекта
S объекта
Под ключ
с мебелью
с мебелью
231 821 343
8 км
от МКАД
от МКАД
-
20.64 сот.
S участка
S участка
105 000 000
9 км
от МКАД
от МКАД
1650 м²
S объекта
S объекта
70 сот.
S участка
S участка
912 966 868
28 км
от МКАД
от МКАД
800 м²
S объекта
S объекта
44 сот.
S участка
S участка
62 000 000
9 км
от МКАД
от МКАД
750 м²
S объекта
S объекта
8 сот.
S участка
S участка
301 367 746
19 км
от МКАД
от МКАД
2100 м²
S объекта
S объекта
63 сот.
S участка
S участка
1 931 844 525
24 км
от МКАД
от МКАД
1050 м²
S объекта
S объекта
26 сот.
S участка
S участка
529 325 400
22 км
от МКАД
от МКАД
садовый
50 сот.
S участка
S участка
60 000 000
22 км
от МКАД
от МКАД
1100 м²
S объекта
S объекта
48 сот.
S участка
S участка
255 000 000
7 км
от МКАД
от МКАД
646 м²
S объекта
S объекта
11 сот.
S участка
S участка
390 000 000
24 км
от МКАД
от МКАД
415 м²
S объекта
S объекта
4 сот.
S участка
S участка
49 000 000
24 км
от МКАД
от МКАД
550 м²
S объекта
S объекта
30 сот.
S участка
S участка
293 640 368
11 км
от МКАД
от МКАД
415 м²
S объекта
S объекта
12 сот.
S участка
S участка
360 000 000
15 км
от МКАД
от МКАД
прилесной
42 сот.
S участка
S участка
320 000 000
5 км
от МКАД
от МКАД
1015 м²
S объекта
S объекта
56 сот.
S участка
S участка
1 590 000 000
14 км
от МКАД
от МКАД
560 м²
S объекта
S объекта
25 сот.
S участка
S участка
146 820 184
15 км
от МКАД
от МКАД
1000 м²
S объекта
S объекта
40 сот.
S участка
S участка
420 000 000
5 км
от МКАД
от МКАД
862 м²
S объекта
S объекта
38 сот.
S участка
S участка
650 000 000
5 км
от МКАД
от МКАД
942 м²
S объекта
S объекта
38 сот.
S участка
S участка
1 390 000 000
23 км
от МКАД
от МКАД
-
120.6 сот.
S участка
S участка
301 500 000