Современный дом в КП Березки
ID12488 Продажа
- Шоссе Рублёво-Успенское шоссе
- Населенный пункт Солослово
- Поселок Березки River Village (Берёзки Ривер Вилладж)
- Расстояние от МКАД 15 км
- Площадь объекта 970 м²
- Площадь участка 33.6 сот.
Расположение
- Шоссе Рублёво-Успенское шоссе
- 2-ое Успенское шоссе
- Северный объезд Одинцово (платная дорога)
- Населенный пункт Солослово
- Поселок Березки River Village (Берёзки Ривер Вилладж)
- Удаленность от МКАД 15 км
Объект
- Площадь дома970 м²
- Кол-во спален5
- Год постройки здания2024
- Отделкачистовая отделка
Коммуникации
- Водоснабжениецентральное
- Газмагистральный
- Канализацияцентральная
- Электричествода
Дополнительно
- Гараж м\мда
- Помещение для персоналада
Планировки
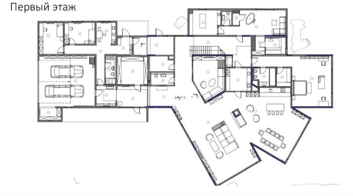
Этаж 1: холл с гардеробной комнатой, гостевой с\у, спальня с гардеробной комнатой , с/у с ванной, домашний кинотеатр, кухня-гостиная с выходом на террасу, рабочая кухня, СПА зона, сауна, душевая, с\у, гараж на 2 м/м. Блок для персонала с отдельным входом: 2 спальни, душевая / постирочная, с/у, кухня, котельная.
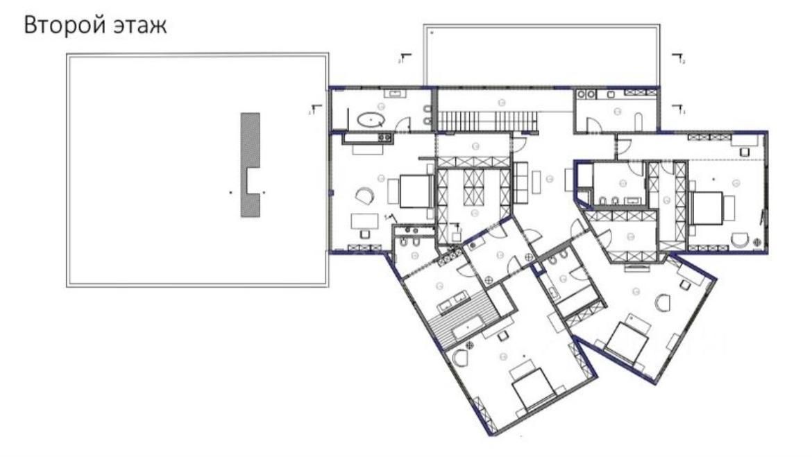
Этаж 2: 4 спальных блока с с/у и гардеробными
Описание
К продаже представлен современный просторный двухэтажный дом площадью 970 м2, расположенный на видовом участке с естественным уклоном площадью 33.6 сотки в тихой части посёлка . Фасад дома отделан клинкерной плиткой Feldhaus, натуральным сланцем, лиственницей. Терраса первого этажа - лиственница, натуральный сланец. Терраса на 2-ом этаже покрыта доской и природной галькой. Построен уличный дровяной камин. Остекление Schuco. Такой дом функционально удовлетворит потребности и запросы любой современной семьи , благодаря функциональной планировке и универсальному составу помещений. На первом этаже: просторный холл с гардеробной комнатой, гостевой с\у, спальня с гардеробной комнатой , ванная комната, домашний кинотеатр, кухня-гостиная с выходом на террасу, рабочая кухня, СПА-зона, сауна, душевая, с\у, гараж на 2 м/м, котельная. Второй этаж: 4 спальных блока с с/у и гардеробными . Предусмотрена квартира для персонала с отдельным входом: 2 спальни, душевая, постирочная, с/у, кухня. В доме установлена и запущена приточно-вытяжная система Breezart / кондиционирование Daikin. Выполнена инженерная часть по сантехнике и электричеству - сделана сантехническая разводка, теплые полы, завершена электрическая разводка, установлены и запущены конвекторы Molenhoff, радиаторы Arbonia. На участке сделан ландшафт, освещение, дренаж, ливневая канализация, установлен автополив. Тёплый гараж на 2 м/м.
16 км
от МКАД
от МКАД
1771 м²
S объекта
S объекта
25 сот.
S участка
S участка
450 000 000
15 км
от МКАД
от МКАД
560 м²
S объекта
S объекта
18 сот.
S участка
S участка
290 000 000
15 км
от МКАД
от МКАД
1542 м²
S объекта
S объекта
41 сот.
S участка
S участка
350 000 000
15 км
от МКАД
от МКАД
900 м²
S объекта
S объекта
25 сот.
S участка
S участка
330 000 000
15 км
от МКАД
от МКАД
841 м²
S объекта
S объекта
26.17 сот.
S участка
S участка
350 000 000
15 км
от МКАД
от МКАД
1227 м²
S объекта
S объекта
22.5 сот.
S участка
S участка
290 000 000
15 км
от МКАД
от МКАД
554 м²
S объекта
S объекта
13.43 сот.
S участка
S участка
385 000 000
15 км
от МКАД
от МКАД
830 м²
S объекта
S объекта
23 сот.
S участка
S участка
420 000 000
15 км
от МКАД
от МКАД
1350 м²
S объекта
S объекта
41 сот.
S участка
S участка
345 000 000
15 км
от МКАД
от МКАД
600 м²
S объекта
S объекта
10 сот.
S участка
S участка
350 000 000
17 км
от МКАД
от МКАД
680 м²
S объекта
S объекта
15 сот.
S участка
S участка
297 267 486
17 км
от МКАД
от МКАД
450 м²
S объекта
S объекта
10 сот.
S участка
S участка
360 000 000
Квартира с огромной террасой в ЖК Остров Фантазий
ID5028 Продажа
Рублёво-Успенское шоссе, Западный, Крылатское
17 км
от МКАД
от МКАД
245 м²
S объекта
S объекта
Под ключ
с мебелью
с мебелью
230 000 000
24 км
от МКАД
от МКАД
1050 м²
S объекта
S объекта
26 сот.
S участка
S участка
508 483 858
9 км
от МКАД
от МКАД
1650 м²
S объекта
S объекта
70 сот.
S участка
S участка
908 190 974
13 км
от МКАД
от МКАД
460 м²
S объекта
S объекта
23 сот.
S участка
S участка
110 000 000
7 км
от МКАД
от МКАД
630 м²
S объекта
S объекта
12 сот.
S участка
S участка
188 000 000
1 км
от МКАД
от МКАД
1830 м²
S объекта
S объекта
15 сот.
S участка
S участка
635 733 682
19 км
от МКАД
от МКАД
2100 м²
S объекта
S объекта
63 сот.
S участка
S участка
1 955 707 145
28 км
от МКАД
от МКАД
360 м²
S объекта
S объекта
20 сот.
S участка
S участка
107 000 000
9 км
от МКАД
от МКАД
220 м²
S объекта
S объекта
8 сот.
S участка
S участка
107 000 000
9 км
от МКАД
от МКАД
750 м²
S объекта
S объекта
8 сот.
S участка
S участка
305 090 315
28 км
от МКАД
от МКАД
800 м²
S объекта
S объекта
44 сот.
S участка
S участка
62 000 000
8 км
от МКАД
от МКАД
-
20.64 сот.
S участка
S участка
110 250 000
11 км
от МКАД
от МКАД
415 м²
S объекта
S объекта
12 сот.
S участка
S участка
360 000 000
24 км
от МКАД
от МКАД
550 м²
S объекта
S объекта
30 сот.
S участка
S участка
297 267 486
15 км
от МКАД
от МКАД
прилесной
42 сот.
S участка
S участка
320 000 000
19 км
от МКАД
от МКАД
847 м²
S объекта
S объекта
25.2 сот.
S участка
S участка
429 000 000
11 км
от МКАД
от МКАД
полевой
15 сот.
S участка
S участка
70 000 000
22 км
от МКАД
от МКАД
1100 м²
S объекта
S объекта
48 сот.
S участка
S участка
275 000 000
5 км
от МКАД
от МКАД
862 м²
S объекта
S объекта
38 сот.
S участка
S участка
650 000 000
24 км
от МКАД
от МКАД
415 м²
S объекта
S объекта
4 сот.
S участка
S участка
49 000 000
15 км
от МКАД
от МКАД
1000 м²
S объекта
S объекта
40 сот.
S участка
S участка
420 000 000
7 км
от МКАД
от МКАД
646 м²
S объекта
S объекта
11 сот.
S участка
S участка
390 000 000
5 км
от МКАД
от МКАД
942 м²
S объекта
S объекта
38 сот.
S участка
S участка
1 350 000 000
23 км
от МКАД
от МКАД
-
120.6 сот.
S участка
S участка
301 500 000