Коттедж в современном стиле в Горки-2
ID12562 Продажа
- Шоссе Рублёво-Успенское шоссе
- Населенный пункт Горки-2
- Расстояние от МКАД 14 км
- Площадь объекта 380 м²
- Площадь участка 10 сот.
Расположение
- Шоссе Рублёво-Успенское шоссе
- Северный объезд Одинцово (платная дорога)
- Красногорское шоссе
- Населенный пункт Горки-2
- Удаленность от МКАД 14 км
Объект
- Площадь дома380 м²
- Кол-во спален4
- Год постройки здания2023
- Отделкачистовая отделка
Коммуникации
- Водоснабжениецентральное
- Газмагистральный
- Канализацияцентральная
- Электричествода
Дополнительно
- Гараж м\мда
- Барбекюда
Планировки
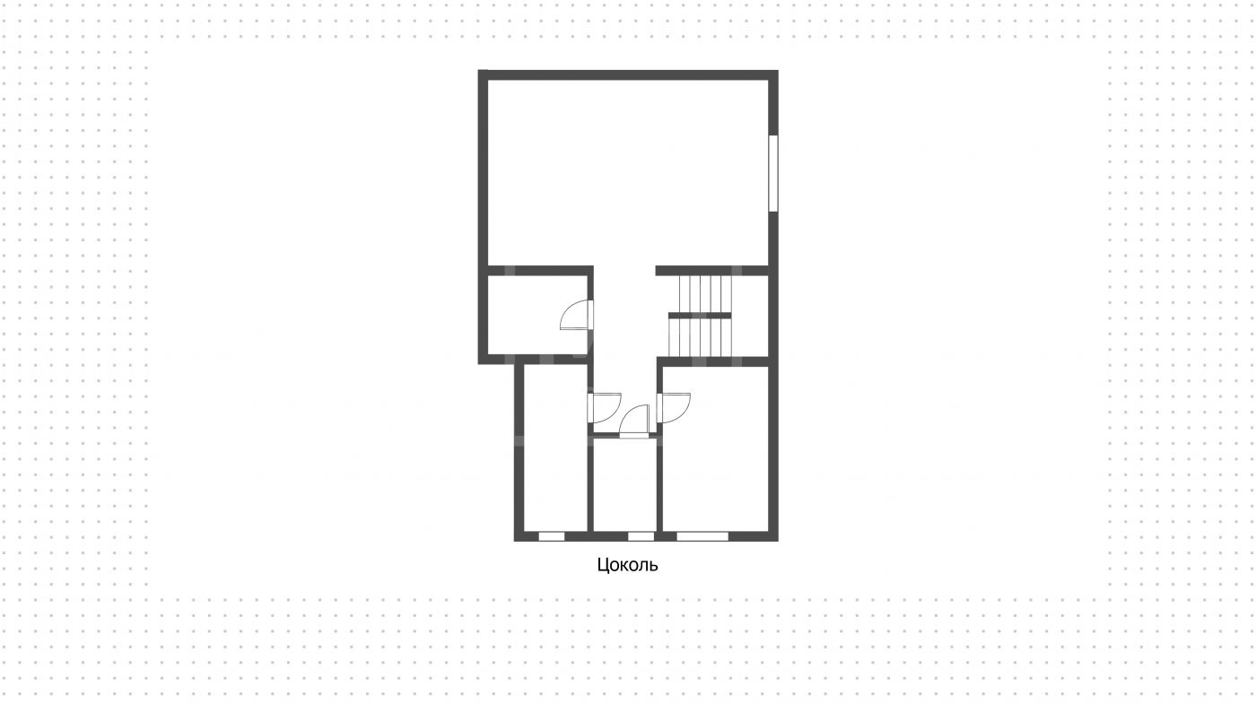
Цоколь: холл, бильярдная, спальня, санузел, котельная, кладовая.
Этаж 1: холл, гардеробная, гостиная-кухня-столовая, кабинет, санузел, гараж,терраса.
Этаж 2: холл, мастер-спальня с 2-мя гардеробными и санузлом, 2 спальни с гардеробными, санузел, балкон.
Описание
Новый загородный дом площадью 380 м² расположен на полевом участке 10 соток.Построен компанией Kampadom. Современный фасад облицован белоснежной штукатуркой и декорирован панелями с фактурой дерева. Благодаря раздвижным панорамным окнам коттедж наполнен светом и воздухом. Отделка whitebox позволяет будущим владельцам выбрать финишные покрытия, мебель и техник на свой вкус.Внутри можно разместить просторную гостиную-кухню-столовую с камином,бильярдную, кабинет, 4 спальни, включая мастер-спальню с 2-мя гардеробными и выходом на просторный балкон. Также в контуре дома предусмотрен гараж на 2 машины, а со стороны сада обустроена терраса с зоной для барбекю. На огороженном участке выполнен ландшафтный дизайн, засеян газон, растут деревья и кустарники,вымощены дорожки.
14 км
от МКАД
от МКАД
500 м²
S объекта
S объекта
11 сот.
S участка
S участка
69 000 000
14 км
от МКАД
от МКАД
460 м²
S объекта
S объекта
10 сот.
S участка
S участка
67 500 000
14 км
от МКАД
от МКАД
475 м²
S объекта
S объекта
10 сот.
S участка
S участка
65 000 000
28 км
от МКАД
от МКАД
360 м²
S объекта
S объекта
20 сот.
S участка
S участка
107 000 000
8 км
от МКАД
от МКАД
-
20.64 сот.
S участка
S участка
110 250 000
19 км
от МКАД
от МКАД
2100 м²
S объекта
S объекта
63 сот.
S участка
S участка
1 963 201 746
9 км
от МКАД
от МКАД
750 м²
S объекта
S объекта
8 сот.
S участка
S участка
306 259 472
28 км
от МКАД
от МКАД
800 м²
S объекта
S объекта
44 сот.
S участка
S участка
62 000 000
7 км
от МКАД
от МКАД
630 м²
S объекта
S объекта
12 сот.
S участка
S участка
188 000 000
24 км
от МКАД
от МКАД
1050 м²
S объекта
S объекта
26 сот.
S участка
S участка
537 917 279
Квартира с огромной террасой в ЖК Остров Фантазий
ID5028 Продажа
Рублёво-Успенское шоссе, Западный, Крылатское
17 км
от МКАД
от МКАД
245 м²
S объекта
S объекта
Под ключ
с мебелью
с мебелью
230 000 000
13 км
от МКАД
от МКАД
460 м²
S объекта
S объекта
23 сот.
S участка
S участка
110 000 000
9 км
от МКАД
от МКАД
220 м²
S объекта
S объекта
8 сот.
S участка
S участка
107 000 000
1 км
от МКАД
от МКАД
1830 м²
S объекта
S объекта
15 сот.
S участка
S участка
642 685 323
22 км
от МКАД
от МКАД
садовый
50 сот.
S участка
S участка
60 000 000
19 км
от МКАД
от МКАД
847 м²
S объекта
S объекта
25.2 сот.
S участка
S участка
429 000 000
24 км
от МКАД
от МКАД
550 м²
S объекта
S объекта
30 сот.
S участка
S участка
298 406 665
5 км
от МКАД
от МКАД
1015 м²
S объекта
S объекта
56 сот.
S участка
S участка
1 590 000 000
15 км
от МКАД
от МКАД
прилесной
42 сот.
S участка
S участка
320 000 000
23 км
от МКАД
от МКАД
-
120.6 сот.
S участка
S участка
301 500 000
7 км
от МКАД
от МКАД
646 м²
S объекта
S объекта
11 сот.
S участка
S участка
390 000 000
22 км
от МКАД
от МКАД
1100 м²
S объекта
S объекта
48 сот.
S участка
S участка
255 000 000
5 км
от МКАД
от МКАД
862 м²
S объекта
S объекта
38 сот.
S участка
S участка
650 000 000
24 км
от МКАД
от МКАД
415 м²
S объекта
S объекта
4 сот.
S участка
S участка
49 000 000
11 км
от МКАД
от МКАД
415 м²
S объекта
S объекта
12 сот.
S участка
S участка
360 000 000
5 км
от МКАД
от МКАД
942 м²
S объекта
S объекта
38 сот.
S участка
S участка
1 390 000 000
15 км
от МКАД
от МКАД
1000 м²
S объекта
S объекта
40 сот.
S участка
S участка
420 000 000