Новый дом под отделку в КП Лапино Гарден
ID5747 Продажа
- Шоссе Рублёво-Успенское шоссе
- Населенный пункт Лапино
- Поселок Corner Lapino
- Расстояние от МКАД 18 км
- Площадь объекта 376 м²
- Площадь участка 14.36 сот.
Расположение
- Шоссе Рублёво-Успенское шоссе
- 1-ое Успенское шоссе
- Рублевское шоссе
- Населенный пункт Лапино
- Поселок Corner Lapino
- Удаленность от МКАД 18 км
Объект
- Площадь дома376 м²
- Кол-во спален5
- Год постройки здания2023
- Отделкачистовая отделка
Коммуникации
- Водоснабжениецентральное
- Газмагистральный
- Канализацияцентральная
- Электричествода
Дополнительно
- Гараж м\мда
Планировки
Этаж 1: Прихожая, гардеробная, кухня, столовая, гостиная, спальня, с/у, сауна, котельная, гараж
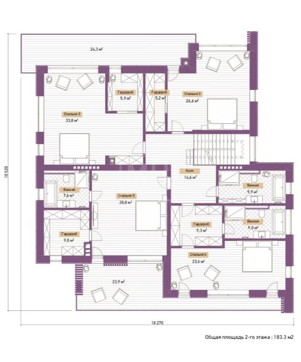
Этаж 2: мастер спальня с с/у и гардеробной, спальня с с/у и гардеробной, 2 спальни с гардеробными, с/у
Описание
Предлагается к продаже современный дом под отделку в новом поселке на Рублево-Успенском ш. КП Лапино Гарден со всеми центральными коммуникациями выполнен в едином современном архитектурном стиле. На территории поселка будут располагаться современные детские площадки. В непосредственной близости от поселка находится вся необходимая инфраструктура включая образовательные учреждения, магазины, рестораны, фитнес центры, медицинские учреждения.
18 км
от МКАД
от МКАД
340 м²
S объекта
S объекта
15.76 сот.
S участка
S участка
147 000 000
19 км
от МКАД
от МКАД
2000 м²
S объекта
S объекта
24 сот.
S участка
S участка
157 056 140
18 км
от МКАД
от МКАД
500 м²
S объекта
S объекта
30 сот.
S участка
S участка
150 000 000
18 км
от МКАД
от МКАД
350 м²
S объекта
S объекта
7.6 сот.
S участка
S участка
135 000 000
18 км
от МКАД
от МКАД
350 м²
S объекта
S объекта
8.85 сот.
S участка
S участка
127 000 000
19 км
от МКАД
от МКАД
460 м²
S объекта
S объекта
15 сот.
S участка
S участка
117 792 105
19 км
от МКАД
от МКАД
500 м²
S объекта
S объекта
15 сот.
S участка
S участка
117 792 105
Квартира с огромной террасой в ЖК Остров Фантазий
ID5028 Продажа
Рублёво-Успенское шоссе, Западный, Крылатское
17 км
от МКАД
от МКАД
245 м²
S объекта
S объекта
Под ключ
с мебелью
с мебелью
230 000 000
24 км
от МКАД
от МКАД
1050 м²
S объекта
S объекта
26 сот.
S участка
S участка
537 917 279
22 км
от МКАД
от МКАД
садовый
50 сот.
S участка
S участка
60 000 000
7 км
от МКАД
от МКАД
630 м²
S объекта
S объекта
12 сот.
S участка
S участка
188 000 000
9 км
от МКАД
от МКАД
750 м²
S объекта
S объекта
8 сот.
S участка
S участка
306 259 472
1 км
от МКАД
от МКАД
1830 м²
S объекта
S объекта
15 сот.
S участка
S участка
642 685 323
13 км
от МКАД
от МКАД
460 м²
S объекта
S объекта
23 сот.
S участка
S участка
110 000 000
28 км
от МКАД
от МКАД
360 м²
S объекта
S объекта
20 сот.
S участка
S участка
107 000 000
9 км
от МКАД
от МКАД
220 м²
S объекта
S объекта
8 сот.
S участка
S участка
107 000 000
28 км
от МКАД
от МКАД
800 м²
S объекта
S объекта
44 сот.
S участка
S участка
62 000 000
8 км
от МКАД
от МКАД
-
20.64 сот.
S участка
S участка
110 250 000
19 км
от МКАД
от МКАД
2100 м²
S объекта
S объекта
63 сот.
S участка
S участка
1 963 201 746
5 км
от МКАД
от МКАД
942 м²
S объекта
S объекта
38 сот.
S участка
S участка
1 390 000 000
19 км
от МКАД
от МКАД
847 м²
S объекта
S объекта
25.2 сот.
S участка
S участка
429 000 000
11 км
от МКАД
от МКАД
415 м²
S объекта
S объекта
12 сот.
S участка
S участка
360 000 000
5 км
от МКАД
от МКАД
1015 м²
S объекта
S объекта
56 сот.
S участка
S участка
1 590 000 000
15 км
от МКАД
от МКАД
1000 м²
S объекта
S объекта
40 сот.
S участка
S участка
420 000 000
22 км
от МКАД
от МКАД
1100 м²
S объекта
S объекта
48 сот.
S участка
S участка
255 000 000
24 км
от МКАД
от МКАД
550 м²
S объекта
S объекта
30 сот.
S участка
S участка
298 406 665
5 км
от МКАД
от МКАД
862 м²
S объекта
S объекта
38 сот.
S участка
S участка
650 000 000
24 км
от МКАД
от МКАД
415 м²
S объекта
S объекта
4 сот.
S участка
S участка
49 000 000
7 км
от МКАД
от МКАД
646 м²
S объекта
S объекта
11 сот.
S участка
S участка
390 000 000
15 км
от МКАД
от МКАД
прилесной
42 сот.
S участка
S участка
320 000 000
23 км
от МКАД
от МКАД
-
120.6 сот.
S участка
S участка
301 500 000