Прекрасный дом для большой семьи
ID5794 Продажа
- Шоссе Рублёво-Успенское шоссе
- Населенный пункт Горки-2
- Поселок Seven Hills (Севен Хиллс)
- Расстояние от МКАД 15 км
- Площадь объекта 450 м²
- Площадь участка 22 сот.
Расположение
- Шоссе Рублёво-Успенское шоссе
- Рублёво-Успенское шоссе
- Населенный пункт Горки-2
- Поселок Seven Hills (Севен Хиллс)
- Удаленность от МКАД 15 км
Объект
- Площадь дома450 м²
- Кол-во спален5
- Год постройки здания2018
- Отделкапод ключ с мебелью
Коммуникации
- Водоснабжениецентральное
- Газмагистральный
- Канализациясептик
- Электричествода
Дополнительно
- Бассейнда
- Гараж м\мда
- Доп. строенияда
- Помещение для персоналада
Планировки
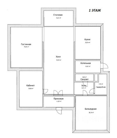
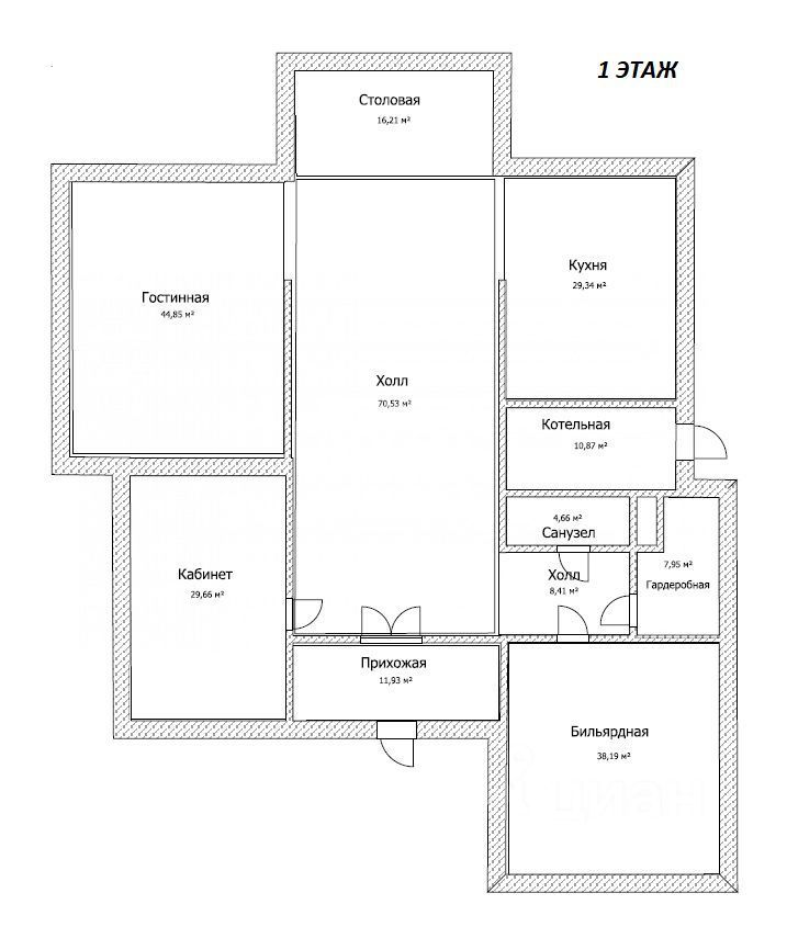
Этаж 1: Просторная гостиная с камином и выходом на террасу, столовая, оборудованная премиальной техникой, бильярдная с зоной отдыха, гостевая спальня либо кабинет, гардероб, переход в спа-дом с бассейном, хамамом, сауной, душевыми и двумя гостевыми комнатами
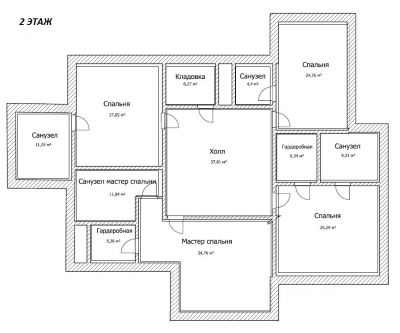
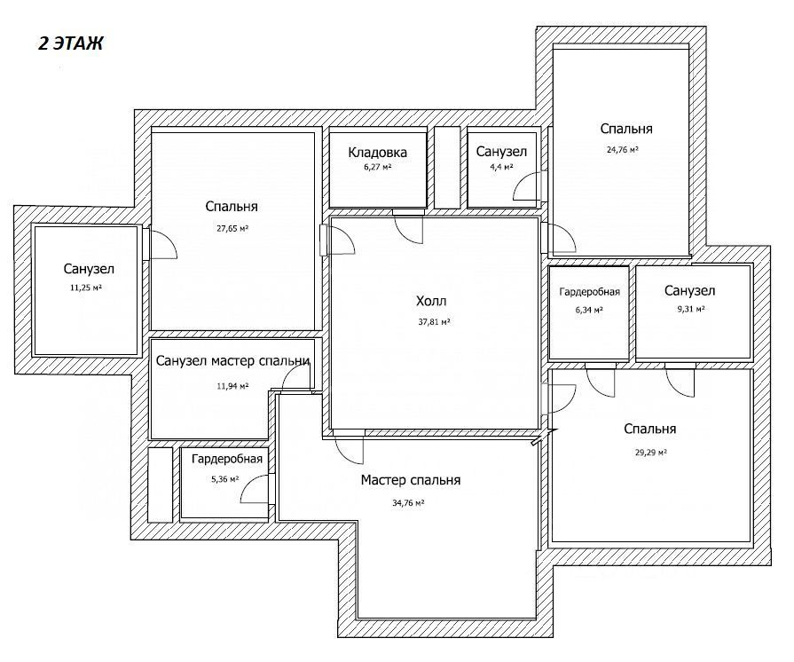
Этаж 2: Мастер- спальня со своей ванной комнатой и гардеробной, три спальни каждая со своим с/у и гардеробной, постирочная
Описание
Этот потрясающий архитектурный дом площадью 450 квадратных метров . Также на участке расположен просторный гараж на 5 авто.
15 км
от МКАД
от МКАД
1155 м²
S объекта
S объекта
27.9 сот.
S участка
S участка
650 000 000
15 км
от МКАД
от МКАД
1044 м²
S объекта
S объекта
32.6 сот.
S участка
S участка
760 000 000
15 км
от МКАД
от МКАД
1046 м²
S объекта
S объекта
31.1 сот.
S участка
S участка
700 000 000
15 км
от МКАД
от МКАД
1400 м²
S объекта
S объекта
100 сот.
S участка
S участка
511 360 005
15 км
от МКАД
от МКАД
2300 м²
S объекта
S объекта
60 сот.
S участка
S участка
750 000 000
9 км
от МКАД
от МКАД
750 м²
S объекта
S объекта
8 сот.
S участка
S участка
276 986 669
Квартира с огромной террасой в ЖК Остров Фантазий
ID5028 Продажа
Рублёво-Успенское шоссе, Западный, Крылатское
1 км
от МКАД
от МКАД
245 м²
S объекта
S объекта
Под ключ
с мебелью
с мебелью
230 000 000
13 км
от МКАД
от МКАД
460 м²
S объекта
S объекта
23 сот.
S участка
S участка
110 000 000
9 км
от МКАД
от МКАД
220 м²
S объекта
S объекта
8 сот.
S участка
S участка
132 000 000
23 км
от МКАД
от МКАД
-
84 сот.
S участка
S участка
135 000 000
9 км
от МКАД
от МКАД
лесной
17.7 сот.
S участка
S участка
126 135 468
9 км
от МКАД
от МКАД
1650 м²
S объекта
S объекта
70 сот.
S участка
S участка
826 371 156
1 км
от МКАД
от МКАД
1830 м²
S объекта
S объекта
15 сот.
S участка
S участка
578 459 809
4 км
от МКАД
от МКАД
343 м²
S объекта
S объекта
Под ключ
с мебелью
с мебелью
213 066 669
8 км
от МКАД
от МКАД
-
20.64 сот.
S участка
S участка
105 000 000
15 км
от МКАД
от МКАД
1200 м²
S объекта
S объекта
50 сот.
S участка
S участка
333 804 447
24 км
от МКАД
от МКАД
1050 м²
S объекта
S объекта
26 сот.
S участка
S участка
486 502 227
15 км
от МКАД
от МКАД
прилесной
42 сот.
S участка
S участка
320 000 000
24 км
от МКАД
от МКАД
550 м²
S объекта
S объекта
30 сот.
S участка
S участка
269 884 447
24 км
от МКАД
от МКАД
415 м²
S объекта
S объекта
4 сот.
S участка
S участка
49 000 000
7 км
от МКАД
от МКАД
646 м²
S объекта
S объекта
11 сот.
S участка
S участка
550 000 000
13 км
от МКАД
от МКАД
535 м²
S объекта
S объекта
18 сот.
S участка
S участка
490 000 000
5 км
от МКАД
от МКАД
1015 м²
S объекта
S объекта
56 сот.
S участка
S участка
1 590 000 000
22 км
от МКАД
от МКАД
лесной
60 сот.
S участка
S участка
78 000 000
5 км
от МКАД
от МКАД
862 м²
S объекта
S объекта
38 сот.
S участка
S участка
650 000 000
5 км
от МКАД
от МКАД
942 м²
S объекта
S объекта
38 сот.
S участка
S участка
1 390 000 000
22 км
от МКАД
от МКАД
1100 м²
S объекта
S объекта
48 сот.
S участка
S участка
232 000 000
15 км
от МКАД
от МКАД
1000 м²
S объекта
S объекта
40 сот.
S участка
S участка
400 000 000
11 км
от МКАД
от МКАД
415 м²
S объекта
S объекта
12 сот.
S участка
S участка
360 000 000