3-этажный таунхаус в Футуро Парке
ID11618 Продажа
- Шоссе Новорижское шоссе
- Населенный пункт Покровское
- Поселок Futuro Park (Футуро Парк)
- Расстояние от МКАД 23 км
- Площадь объекта 240 м²
- Площадь участка 2 сот.
Расположение
- Шоссе Новорижское шоссе
- Ильинское шоссе
- Населенный пункт Покровское
- Поселок Futuro Park (Футуро Парк)
- Удаленность от МКАД 23 км
Объект
- Площадь дома240 м²
- Площадь участка2 сот.
- Кол-во спален4
- Год постройки2023 г.
- Отделкапод ключ
Коммуникации
- Водоснабжениецентральное
- Газмагистральный
- Интернетда
- Канализацияцентральная
- Электричествода
Дополнительно
- Барбекюда
Планировки
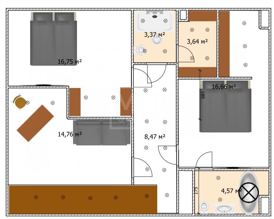
Мансарда: сауна, душевая и эксплуатируемая кровля с шезлонгами.
Этаж 1: гостиная, кухня, гардеробная, с/у, выход на участок с зоной патио.
Этаж 2: 2 комнаты, 2 спальни с с/у, гардеробными, кабинет, постирочная.
Этаж 3: 3 комнаты, 2 спальни с с/у и гардеробными.
Описание
Современный, красивый таунхаус в Футуро Парк, площадью 240 м². При отделке использовались премиальные материалы: техника Kuppersbusch, паркет, итальянский керамогранит. Канальное кондиционирование, конвекторы, теплые полы. На территории Futuro Park в августе запускают уникальный проект - бассейн под открытым небом. Планируется открытие фитнес центра с крытым бассейном, детского сада, магазинов, кафе. Клубная система Villagio Estate дает возможность пользоваться инфраструктурой всех близлежащих поселков Villagio Estate. Лучшее расположение в посёлке, соседи только со стороны сада, с другой стороны граничит с поселком Agalarov Estate.
23 км
от МКАД
от МКАД
372 м²
S объекта
S объекта
2.62 сот.
S участка
S участка
77 000 000
23 км
от МКАД
от МКАД
239 м²
S объекта
S объекта
2.25 сот.
S участка
S участка
85 000 000
23 км
от МКАД
от МКАД
250 м²
S объекта
S объекта
1.2 сот.
S участка
S участка
99 000 000
23 км
от МКАД
от МКАД
239 м²
S объекта
S объекта
1.72 сот.
S участка
S участка
89 000 000
23 км
от МКАД
от МКАД
239 м²
S объекта
S объекта
1.93 сот.
S участка
S участка
95 000 000
23 км
от МКАД
от МКАД
169 м²
S объекта
S объекта
2 сот.
S участка
S участка
66 000 000
20 км
от МКАД
от МКАД
у воды
30.88 сот.
S участка
S участка
420 000 000
20 км
от МКАД
от МКАД
410 м²
S объекта
S объекта
50 сот.
S участка
S участка
175 000 000
24 км
от МКАД
от МКАД
прилесной
17 сот.
S участка
S участка
65 000 000
1 км
от МКАД
от МКАД
400 м²
S объекта
S объекта
7 сот.
S участка
S участка
225 000 000
9 км
от МКАД
от МКАД
850 м²
S объекта
S объекта
27 сот.
S участка
S участка
746 016 664
15 км
от МКАД
от МКАД
550 м²
S объекта
S объекта
24 сот.
S участка
S участка
212 025 789
19 км
от МКАД
от МКАД
847 м²
S объекта
S объекта
25.2 сот.
S участка
S участка
429 000 000
27 км
от МКАД
от МКАД
570 м²
S объекта
S объекта
18 сот.
S участка
S участка
128 000 000
20 км
от МКАД
от МКАД
у воды
114.9 сот.
S участка
S участка
998 535 451
5 км
от МКАД
от МКАД
270 м²
S объекта
S объекта
4 сот.
S участка
S участка
115 000 000
23 км
от МКАД
от МКАД
полевой
47 сот.
S участка
S участка
117 500 000
23 км
от МКАД
от МКАД
800 м²
S объекта
S объекта
25 сот.
S участка
S участка
300 000 000
19 км
от МКАД
от МКАД
847 м²
S объекта
S объекта
25.2 сот.
S участка
S участка
429 000 000
7 км
от МКАД
от МКАД
646 м²
S объекта
S объекта
11 сот.
S участка
S участка
390 000 000
23 км
от МКАД
от МКАД
-
120.6 сот.
S участка
S участка
301 500 000
11 км
от МКАД
от МКАД
415 м²
S объекта
S объекта
12 сот.
S участка
S участка
360 000 000
15 км
от МКАД
от МКАД
прилесной
42 сот.
S участка
S участка
320 000 000
5 км
от МКАД
от МКАД
1015 м²
S объекта
S объекта
56 сот.
S участка
S участка
1 590 000 000
15 км
от МКАД
от МКАД
1000 м²
S объекта
S объекта
40 сот.
S участка
S участка
420 000 000
24 км
от МКАД
от МКАД
415 м²
S объекта
S объекта
4 сот.
S участка
S участка
49 000 000
5 км
от МКАД
от МКАД
942 м²
S объекта
S объекта
38 сот.
S участка
S участка
1 390 000 000
24 км
от МКАД
от МКАД
550 м²
S объекта
S объекта
30 сот.
S участка
S участка
298 406 665
22 км
от МКАД
от МКАД
1100 м²
S объекта
S объекта
48 сот.
S участка
S участка
255 000 000
5 км
от МКАД
от МКАД
862 м²
S объекта
S объекта
38 сот.
S участка
S участка
650 000 000