Таунхаус в “Park Fonte”
ID12387 Продажа
- Шоссе Новорижское шоссе
- Населенный пункт Красный Поселок
- Поселок Парк Фонте
- Расстояние от МКАД 25 км
- Площадь объекта 277 м²
- Площадь участка 1.51 сот.
Расположение
- Шоссе Новорижское шоссе
- Рублевское шоссе
- Волоколамское шоссе
- Населенный пункт Красный Поселок
- Поселок Парк Фонте
- Удаленность от МКАД 25 км
Объект
- Площадь дома277 м²
- Площадь участка1.51 сот.
- Кол-во спален4
- Отделкапод отделку
Коммуникации
- Водоснабжениецентральное
- Газмагистральный
- Канализацияцентральная
- Электричествода
Дополнительно
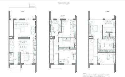
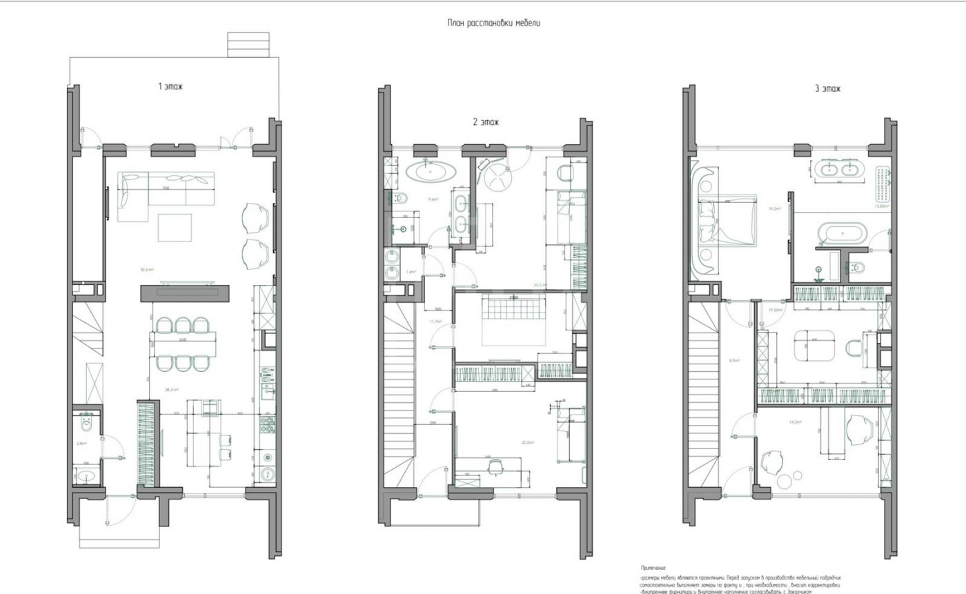
Планировки
Этаж 1: гостиная, кухня-столовая с камином, кабинет, санузел, терраса, котельная
Этаж 2: холл, 2 спальни с с/у, гардеробная, балкон
Этаж 3: 2 спальни, кабинет, санузел
Описание
Предлагается стильный таунхаус "под чистовую отделку" площадью 277 м² на участке 1,51 сот. в охраняемом элитном коттеджном поселке "Park Fonte".Выполнена черновая работа: разведена электрика, стены выровнены, подготовлены под чистовую отделку. Частично закуплена мебель и техника (телевизоры: Samsung 75, Sony 60, Samsung 45. Мебель: диван угловой 4х2 метра, журнальный стол Boconcept, два дизайнерских кресла Boconcept, кровать двуспальная с итальянским матрасом, диван из натуральной кожи IKEA, тумба под телевизор (Италия)).
Есть выход на эксплуатируемую кровлю, которую можно обустроить, как зону отдыха в тёплое время года. На втором и третьем этажах таунхауса открытые балконы, на которых будет приятно проводить время в тёплый сезон. Имеется место для установки камина.
Park Fonte (Парк Фонте) коттеджный поселок со 182 таунхаусами класса de luxe от Villagio Estate, расположенный в центре березовой рощи у живописного водоема. Благодаря скоростному Новорижскому шоссе, дорога до столицы не занимает более 20 минут.
В радиусе 5-10 минутной прогулки расположены детские сады и школы для маленьких жителей, семейные клубы, где можно провести время в кругу близких, и уютные салоны красоты для релаксации. Насладиться прогулками на природе или поужинать в ресторане, и все это в пределах вашего уникального дома в Park Fonte.
25 км
от МКАД
от МКАД
175 м²
S объекта
S объекта
3.5 сот.
S участка
S участка
52 500 000
25 км
от МКАД
от МКАД
185 м²
S объекта
S объекта
1.6 сот.
S участка
S участка
50 000 000
25 км
от МКАД
от МКАД
311 м²
S объекта
S объекта
6.3 сот.
S участка
S участка
63 000 000
25 км
от МКАД
от МКАД
311 м²
S объекта
S объекта
4.24 сот.
S участка
S участка
65 000 000
24 км
от МКАД
от МКАД
260 м²
S объекта
S объекта
4 сот.
S участка
S участка
70 350 000
15 км
от МКАД
от МКАД
550 м²
S объекта
S объекта
24 сот.
S участка
S участка
212 142 403
23 км
от МКАД
от МКАД
полевой
47 сот.
S участка
S участка
117 500 000
19 км
от МКАД
от МКАД
847 м²
S объекта
S объекта
25.2 сот.
S участка
S участка
429 000 000
27 км
от МКАД
от МКАД
570 м²
S объекта
S объекта
18 сот.
S участка
S участка
128 000 000
24 км
от МКАД
от МКАД
прилесной
17 сот.
S участка
S участка
65 000 000
20 км
от МКАД
от МКАД
у воды
114.9 сот.
S участка
S участка
999 084 645
20 км
от МКАД
от МКАД
410 м²
S объекта
S объекта
50 сот.
S участка
S участка
175 000 000
20 км
от МКАД
от МКАД
у воды
30.88 сот.
S участка
S участка
420 000 000
5 км
от МКАД
от МКАД
270 м²
S объекта
S объекта
4 сот.
S участка
S участка
115 000 000
1 км
от МКАД
от МКАД
400 м²
S объекта
S объекта
7 сот.
S участка
S участка
225 000 000
9 км
от МКАД
от МКАД
850 м²
S объекта
S объекта
27 сот.
S участка
S участка
746 426 972
23 км
от МКАД
от МКАД
800 м²
S объекта
S объекта
25 сот.
S участка
S участка
300 000 000
5 км
от МКАД
от МКАД
862 м²
S объекта
S объекта
38 сот.
S участка
S участка
650 000 000
24 км
от МКАД
от МКАД
550 м²
S объекта
S объекта
30 сот.
S участка
S участка
298 570 789
11 км
от МКАД
от МКАД
415 м²
S объекта
S объекта
12 сот.
S участка
S участка
360 000 000
19 км
от МКАД
от МКАД
847 м²
S объекта
S объекта
25.2 сот.
S участка
S участка
429 000 000
24 км
от МКАД
от МКАД
415 м²
S объекта
S объекта
4 сот.
S участка
S участка
49 000 000
23 км
от МКАД
от МКАД
-
120.6 сот.
S участка
S участка
301 500 000
22 км
от МКАД
от МКАД
1100 м²
S объекта
S объекта
48 сот.
S участка
S участка
255 000 000
15 км
от МКАД
от МКАД
прилесной
42 сот.
S участка
S участка
320 000 000
15 км
от МКАД
от МКАД
1000 м²
S объекта
S объекта
40 сот.
S участка
S участка
420 000 000
7 км
от МКАД
от МКАД
646 м²
S объекта
S объекта
11 сот.
S участка
S участка
390 000 000
5 км
от МКАД
от МКАД
1015 м²
S объекта
S объекта
56 сот.
S участка
S участка
1 590 000 000
5 км
от МКАД
от МКАД
942 м²
S объекта
S объекта
38 сот.
S участка
S участка
1 390 000 000