Стильный дом в Миллениум Парк
ID11267 Продажа
- Шоссе Новорижское шоссе
- Населенный пункт Обушково
- Поселок Миллениум Парк
- Расстояние от МКАД 19 км
- Площадь объекта 720 м²
- Площадь участка 23 сот.
Расположение
- Шоссе Новорижское шоссе
- Населенный пункт Обушково
- Поселок Миллениум Парк
- Удаленность от МКАД 19 км
Объект
- Площадь дома720 м²
- Кол-во спален5
- Год постройки здания2020
- Отделкапод ключ с мебелью
Коммуникации
- Водоснабжениецентральное
- Газмагистральный
- Канализацияцентральная
- Электричествода
Дополнительно
- Бассейнда
- Баняда
- Гараж м\мда
- Доп. строенияда
- Барбекюда
Планировки
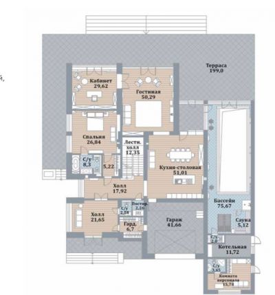
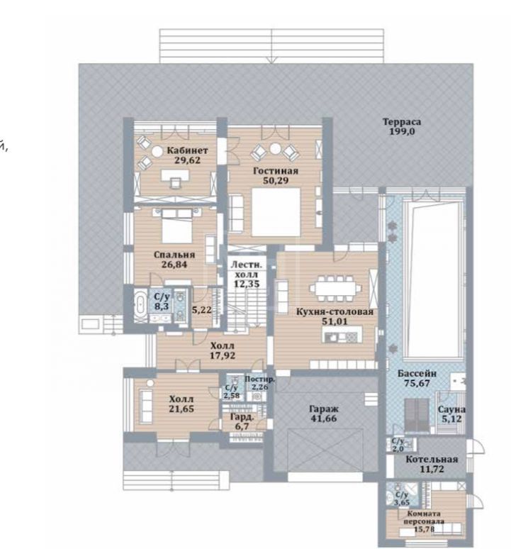
Этаж 1: холл, гардеробная, санузел, столовая с кухонной зоной, гостиная с камином, спальня с санузлом и гардеробной, кабинет, бассейн 35 м2, сауна, душевая, зона барбекю, помещение для персонала с кухней и санузлом, котельная.
Этаж 2: 4 спальни с санузлом и гардеробными, терраса.
Описание
К продаже представлен дом площадью 720 м2 с отделкой «под ключ», с бассейном 35 м2 , в тихой части посёлка, на участке 23 сотки с ландшафтным дизайном . Дом оборудован дизайнерской мебелью премиум класса , эксклюзивной сантехникой и современной бытовой техникой. Каждая деталь продумана для идеального качества жизни: столовая с кухонной зоной, гостиная с камином, спальня с санузлом и гардеробной, кабинет, бассейн 35 м2, сауна, душевая, зона барбекю, помещение для персонала с кухней и санузлом, котельная. Второй этаж полностью отведен под 4 спальни со своими гардеробными и санузлами. Уникальный проект выполнен в стиле современной классики. Тщательно продуманы все детали для комфортного проживания. В строительстве и отделке использованы натуральные материалы: дом облицован песчаником, мощения выполнены из натурального сланца, внутренняя отделка - мрамор. На территории находится зона отдыха. Жилые зоны оснащены канальным кондиционированием для максимально комфортного пребывания. Для безопасности дом обеспечен противопожарной и охранной сигнализациями, по периметру дома установлено видеонаблюдение.
19 км
от МКАД
от МКАД
1200 м²
S объекта
S объекта
34 сот.
S участка
S участка
499 000 000
19 км
от МКАД
от МКАД
1200 м²
S объекта
S объекта
19 сот.
S участка
S участка
520 000 000
19 км
от МКАД
от МКАД
571.8 м²
S объекта
S объекта
20.29 сот.
S участка
S участка
395 000 000
19 км
от МКАД
от МКАД
1064 м²
S объекта
S объекта
30.72 сот.
S участка
S участка
495 000 000
19 км
от МКАД
от МКАД
815 м²
S объекта
S объекта
22 сот.
S участка
S участка
600 000 000
19 км
от МКАД
от МКАД
600 м²
S объекта
S объекта
20.28 сот.
S участка
S участка
550 000 000
19 км
от МКАД
от МКАД
847 м²
S объекта
S объекта
25 сот.
S участка
S участка
429 000 000
19 км
от МКАД
от МКАД
580 м²
S объекта
S объекта
25.5 сот.
S участка
S участка
385 611 194
19 км
от МКАД
от МКАД
1000 м²
S объекта
S объекта
23 сот.
S участка
S участка
450 000 000
19 км
от МКАД
от МКАД
750 м²
S объекта
S объекта
32 сот.
S участка
S участка
420 000 000
19 км
от МКАД
от МКАД
495.4 м²
S объекта
S объекта
25.9 сот.
S участка
S участка
400 000 000
19 км
от МКАД
от МКАД
847 м²
S объекта
S объекта
25.2 сот.
S участка
S участка
429 000 000
9 км
от МКАД
от МКАД
850 м²
S объекта
S объекта
27 сот.
S участка
S участка
746 016 664
23 км
от МКАД
от МКАД
полевой
47 сот.
S участка
S участка
117 500 000
5 км
от МКАД
от МКАД
270 м²
S объекта
S объекта
4 сот.
S участка
S участка
115 000 000
24 км
от МКАД
от МКАД
прилесной
17 сот.
S участка
S участка
65 000 000
20 км
от МКАД
от МКАД
у воды
114.9 сот.
S участка
S участка
998 535 451
19 км
от МКАД
от МКАД
847 м²
S объекта
S объекта
25.2 сот.
S участка
S участка
429 000 000
27 км
от МКАД
от МКАД
570 м²
S объекта
S объекта
18 сот.
S участка
S участка
128 000 000
1 км
от МКАД
от МКАД
400 м²
S объекта
S объекта
7 сот.
S участка
S участка
225 000 000
20 км
от МКАД
от МКАД
410 м²
S объекта
S объекта
50 сот.
S участка
S участка
175 000 000
23 км
от МКАД
от МКАД
800 м²
S объекта
S объекта
25 сот.
S участка
S участка
300 000 000
15 км
от МКАД
от МКАД
550 м²
S объекта
S объекта
24 сот.
S участка
S участка
212 025 789
20 км
от МКАД
от МКАД
у воды
30.88 сот.
S участка
S участка
420 000 000
11 км
от МКАД
от МКАД
415 м²
S объекта
S объекта
12 сот.
S участка
S участка
360 000 000
15 км
от МКАД
от МКАД
1000 м²
S объекта
S объекта
40 сот.
S участка
S участка
420 000 000
5 км
от МКАД
от МКАД
942 м²
S объекта
S объекта
38 сот.
S участка
S участка
1 390 000 000
7 км
от МКАД
от МКАД
646 м²
S объекта
S объекта
11 сот.
S участка
S участка
390 000 000
5 км
от МКАД
от МКАД
862 м²
S объекта
S объекта
38 сот.
S участка
S участка
650 000 000
22 км
от МКАД
от МКАД
1100 м²
S объекта
S объекта
48 сот.
S участка
S участка
255 000 000
15 км
от МКАД
от МКАД
прилесной
42 сот.
S участка
S участка
320 000 000
23 км
от МКАД
от МКАД
-
120.6 сот.
S участка
S участка
301 500 000
5 км
от МКАД
от МКАД
1015 м²
S объекта
S объекта
56 сот.
S участка
S участка
1 590 000 000
24 км
от МКАД
от МКАД
550 м²
S объекта
S объекта
30 сот.
S участка
S участка
298 406 665
19 км
от МКАД
от МКАД
847 м²
S объекта
S объекта
25.2 сот.
S участка
S участка
429 000 000
24 км
от МКАД
от МКАД
415 м²
S объекта
S объекта
4 сот.
S участка
S участка
49 000 000