Продажа Дом 571.8 м² на участке 20.29 сот. в Миллениум Парк
ID12268 Продажа
- Шоссе Новорижское шоссе
- Населенный пункт Обушково
- Поселок Миллениум Парк
- Расстояние от МКАД 19 км
- Площадь объекта 571.8 м²
- Площадь участка 20.29 сот.
Расположение
- Шоссе Новорижское шоссе
- Населенный пункт Обушково
- Поселок Миллениум Парк
- Удаленность от МКАД 19 км
Объект
- Площадь дома571.8 м²
- Кол-во спален4
- Отделкапод ключ с мебелью
Коммуникации
- Водоснабжениецентральное
- Газмагистральный
- Канализацияцентральная
- Электричествода
Дополнительно
- Бассейнда
- Гараж м\мда
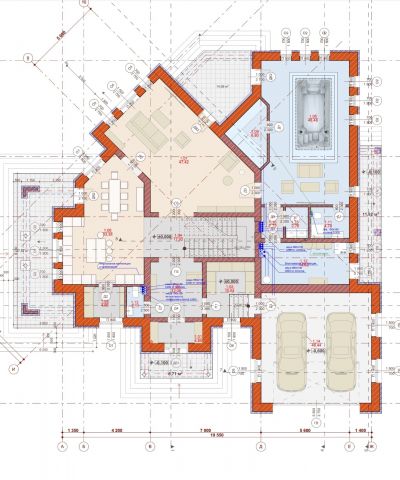
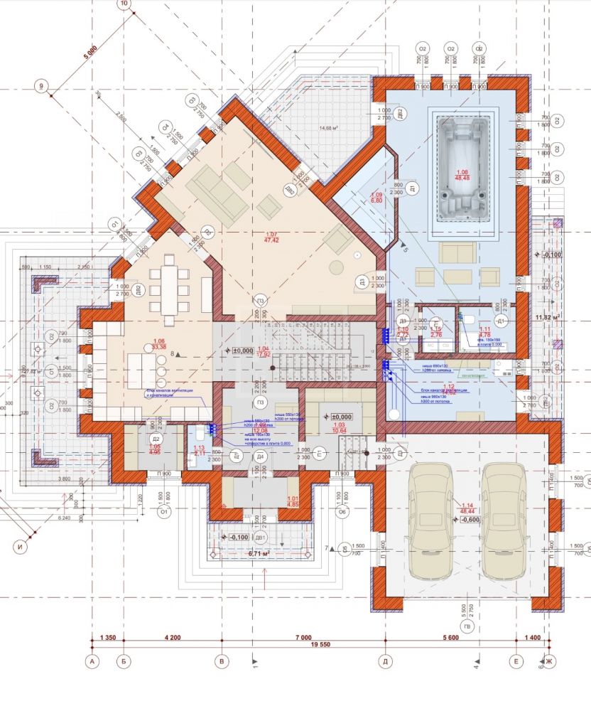
Планировки
Этаж 1: просторная кухня с островом, столовая, гостиная со 2-м светом, кабинет, SPA-зона 60 м² с американским спа-бассейном Endless pool с противотоком, джакузи, с/у, сауна Harvia и зона отдыха, гостевой с/у, постирочная, холл с прямым выходом в гараж, гараж 50 м², котельная с хозяйственной зоной, крытые террасы с диванами и обеденной зоной.
Этаж 2: мастер-блок со спальней, гардеробом, санузлом и балконом с видом на участок, детская зона со своей гостиной и гардеробом, 2 гостевые спальни, ванная комната, просторный холл со 2-м светом, бильярдная/фитнес-зона.
19 км
от МКАД
от МКАД
847 м²
S объекта
S объекта
25 сот.
S участка
S участка
429 000 000
19 км
от МКАД
от МКАД
620 м²
S объекта
S объекта
23.3 сот.
S участка
S участка
345 000 000
19 км
от МКАД
от МКАД
500 м²
S объекта
S объекта
12 сот.
S участка
S участка
285 000 000
19 км
от МКАД
от МКАД
580 м²
S объекта
S объекта
25.5 сот.
S участка
S участка
322 284 751
19 км
от МКАД
от МКАД
523 м²
S объекта
S объекта
11 сот.
S участка
S участка
330 000 000
19 км
от МКАД
от МКАД
523 м²
S объекта
S объекта
11.5 сот.
S участка
S участка
330 000 000
19 км
от МКАД
от МКАД
1000 м²
S объекта
S объекта
23 сот.
S участка
S участка
450 000 000
19 км
от МКАД
от МКАД
1223 м²
S объекта
S объекта
10 сот.
S участка
S участка
390 000 000
19 км
от МКАД
от МКАД
750 м²
S объекта
S объекта
32 сот.
S участка
S участка
420 000 000
19 км
от МКАД
от МКАД
720 м²
S объекта
S объекта
23 сот.
S участка
S участка
450 000 000
19 км
от МКАД
от МКАД
420 м²
S объекта
S объекта
18 сот.
S участка
S участка
325 000 000
19 км
от МКАД
от МКАД
495.4 м²
S объекта
S объекта
25.9 сот.
S участка
S участка
400 000 000
20 км
от МКАД
от МКАД
410 м²
S объекта
S объекта
50 сот.
S участка
S участка
175 000 000
23 км
от МКАД
от МКАД
полевой
47 сот.
S участка
S участка
117 500 000
9 км
от МКАД
от МКАД
850 м²
S объекта
S объекта
27 сот.
S участка
S участка
674 711 117
24 км
от МКАД
от МКАД
прилесной
17 сот.
S участка
S участка
63 000 000
20 км
от МКАД
от МКАД
полевой
37 сот.
S участка
S участка
198 000 000
23 км
от МКАД
от МКАД
800 м²
S объекта
S объекта
25 сот.
S участка
S участка
300 000 000
20 км
от МКАД
от МКАД
у воды
114.9 сот.
S участка
S участка
903 093 728
20 км
от МКАД
от МКАД
у воды
30.88 сот.
S участка
S участка
420 000 000
1 км
от МКАД
от МКАД
400 м²
S объекта
S объекта
7 сот.
S участка
S участка
225 000 000
5 км
от МКАД
от МКАД
270 м²
S объекта
S объекта
4 сот.
S участка
S участка
115 000 000
27 км
от МКАД
от МКАД
570 м²
S объекта
S объекта
18 сот.
S участка
S участка
128 000 000
15 км
от МКАД
от МКАД
550 м²
S объекта
S объекта
24 сот.
S участка
S участка
191 760 002
24 км
от МКАД
от МКАД
415 м²
S объекта
S объекта
4 сот.
S участка
S участка
49 000 000
22 км
от МКАД
от МКАД
1100 м²
S объекта
S объекта
48 сот.
S участка
S участка
232 000 000
11 км
от МКАД
от МКАД
415 м²
S объекта
S объекта
12 сот.
S участка
S участка
360 000 000
15 км
от МКАД
от МКАД
1000 м²
S объекта
S объекта
40 сот.
S участка
S участка
400 000 000
7 км
от МКАД
от МКАД
646 м²
S объекта
S объекта
11 сот.
S участка
S участка
550 000 000
24 км
от МКАД
от МКАД
550 м²
S объекта
S объекта
30 сот.
S участка
S участка
269 884 447
15 км
от МКАД
от МКАД
прилесной
42 сот.
S участка
S участка
320 000 000
22 км
от МКАД
от МКАД
лесной
60 сот.
S участка
S участка
78 000 000
5 км
от МКАД
от МКАД
1015 м²
S объекта
S объекта
56 сот.
S участка
S участка
1 590 000 000
5 км
от МКАД
от МКАД
942 м²
S объекта
S объекта
38 сот.
S участка
S участка
1 390 000 000
5 км
от МКАД
от МКАД
862 м²
S объекта
S объекта
38 сот.
S участка
S участка
650 000 000
13 км
от МКАД
от МКАД
535 м²
S объекта
S объекта
18 сот.
S участка
S участка
490 000 000