Современный дом в Жуковке
ID12020 Продажа
- Шоссе Рублёво-Успенское шоссе
- Населенный пункт Жуковка
- Расстояние от МКАД 9 км
- Площадь объекта 620 м²
- Площадь участка 10.5 сот.
Расположение
- Шоссе Рублёво-Успенское шоссе
- Северный объезд Одинцово (платная дорога)
- Красногорское шоссе
- Населенный пункт Жуковка
- Удаленность от МКАД 9 км
Объект
- Площадь дома620 м²
- Кол-во спален4
- Отделкапод ключ с мебелью
Коммуникации
- Водоснабжениецентральное
- Газмагистральный
- Канализацияцентральная
- Электричествода
Дополнительно
Планировки
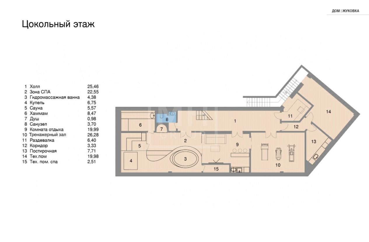
Цоколь: Спа-зона с сауной, хамамом и купелью, душевая, с/у, тренажерный зал, постирочная, технические помещения
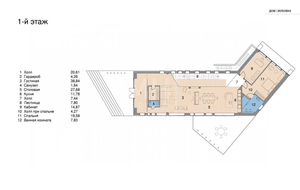
Этаж 1: Прихожая, гардеробная, с/у, зона кухни-столовой-гостиной, спальня с с/у, кабинет
Этаж 2: Мастер-спальня с с/у и гардеробной, 2 спальни с с/у
Описание
Современный дом выполнен в стиле минимализм архитектурной студией VForm, расположенный в самом сердце деревни Жуковка, станет идеальным местом для вашего комфортного проживания. Легкость конструкции и утонченная архитектура этого дома делают его поистине впечатляющим. Несущие столбы из нержавеющей стали и четкая геометрия здания создают ощущение, будто дом парит в воздухе. Гостиная с двусторонним паровым камином и панорамными видами, кухня-столовая с выходом на террасу, четыре спальни, кабинет и спа-зона с сауной, хаммамом, джакузи и купелью — всё это создает функциональную атмосферу гармонии. Первый этаж дома выглядит открытым и проницаемым: фасад декорирован стеклом и сатинированной нержавеющей сталью, что словно растворяет здание в окружающем ландшафте, а отблески наполняют сад светом. Два главных центра притяжения — живописный вид на участок и «парящий» фасад дома — создают ощущение простора и свободы. На втором этаже расположена просторная и уединенная терраса, где можно расслабиться и насладиться великолепным видом на кроны деревьев. В главной спальне изголовье кровати украшает панно из массива ореха, которое поддерживает основные мотивы материальности и уюта. Раздвижные оконные конструкции добавляют пространству легкости и открытости. В интерьере использованы натуральные материалы: мрамор Fior Di Bosco, белый кварцит, орех, дуб, термоясень и фиброцементные панели, гармоничное сочетание которых, обеспечивает высокое качество, стиль и надежность. Престижные бренды Minotti, Flexform, Cassina, Dovlet House, Acerbis, Henge, Mebel-V, Poltrona Frau отличаются лаконичным дизайном, современностью и функциональностью. Для комфортного проживания в доме предусмотрены все необходимые коммуникации: электричество, центральная канализация, центральное водоснабжение, магистральный газ и интернет. Инженерные системы включают приточно-вытяжную вентиляцию, котел Viessmann, систему автополива на участке и другие решения, обеспечивающие идеальныймикроклимат.
Этот дом — идеальное место для жизни, где вы сможете наслаждаться комфортом, уютом и гармонией.
10 км
от МКАД
от МКАД
1042 м²
S объекта
S объекта
41 сот.
S участка
S участка
471 168 419
9 км
от МКАД
от МКАД
620 м²
S объекта
S объекта
67 сот.
S участка
S участка
550 000 000
9 км
от МКАД
от МКАД
1500 м²
S объекта
S объекта
34 сот.
S участка
S участка
471 168 419
10 км
от МКАД
от МКАД
750 м²
S объекта
S объекта
35 сот.
S участка
S участка
471 168 419
9 км
от МКАД
от МКАД
726 м²
S объекта
S объекта
15 сот.
S участка
S участка
367 248 756
11 км
от МКАД
от МКАД
325 м²
S объекта
S объекта
16.2 сот.
S участка
S участка
395 000 000
9 км
от МКАД
от МКАД
487 м²
S объекта
S объекта
33 сот.
S участка
S участка
588 960 524
9 км
от МКАД
от МКАД
1000 м²
S объекта
S объекта
20 сот.
S участка
S участка
439 757 191
Резиденция к продаже под ключ с мебелью, находится в самом сердце Рублевки
ID7904 Продажа
Рублёво-Успенское шоссе
9 км
от МКАД
от МКАД
1000 м²
S объекта
S объекта
30 сот.
S участка
S участка
431 904 384
28 км
от МКАД
от МКАД
800 м²
S объекта
S объекта
44 сот.
S участка
S участка
62 000 000
13 км
от МКАД
от МКАД
460 м²
S объекта
S объекта
23 сот.
S участка
S участка
110 000 000
Квартира с огромной террасой в ЖК Остров Фантазий
ID5028 Продажа
Рублёво-Успенское шоссе, Западный, Крылатское
17 км
от МКАД
от МКАД
245 м²
S объекта
S объекта
Под ключ
с мебелью
с мебелью
230 000 000
1 км
от МКАД
от МКАД
1830 м²
S объекта
S объекта
15 сот.
S участка
S участка
642 685 323
19 км
от МКАД
от МКАД
2100 м²
S объекта
S объекта
63 сот.
S участка
S участка
1 963 201 746
9 км
от МКАД
от МКАД
220 м²
S объекта
S объекта
8 сот.
S участка
S участка
107 000 000
7 км
от МКАД
от МКАД
630 м²
S объекта
S объекта
12 сот.
S участка
S участка
188 000 000
24 км
от МКАД
от МКАД
1050 м²
S объекта
S объекта
26 сот.
S участка
S участка
537 917 279
28 км
от МКАД
от МКАД
360 м²
S объекта
S объекта
20 сот.
S участка
S участка
107 000 000
22 км
от МКАД
от МКАД
садовый
50 сот.
S участка
S участка
60 000 000
9 км
от МКАД
от МКАД
750 м²
S объекта
S объекта
8 сот.
S участка
S участка
306 259 472
8 км
от МКАД
от МКАД
-
20.64 сот.
S участка
S участка
110 250 000
7 км
от МКАД
от МКАД
646 м²
S объекта
S объекта
11 сот.
S участка
S участка
390 000 000
5 км
от МКАД
от МКАД
942 м²
S объекта
S объекта
38 сот.
S участка
S участка
1 390 000 000
11 км
от МКАД
от МКАД
415 м²
S объекта
S объекта
12 сот.
S участка
S участка
360 000 000
24 км
от МКАД
от МКАД
415 м²
S объекта
S объекта
4 сот.
S участка
S участка
49 000 000
24 км
от МКАД
от МКАД
550 м²
S объекта
S объекта
30 сот.
S участка
S участка
298 406 665
5 км
от МКАД
от МКАД
1015 м²
S объекта
S объекта
56 сот.
S участка
S участка
1 590 000 000
15 км
от МКАД
от МКАД
1000 м²
S объекта
S объекта
40 сот.
S участка
S участка
420 000 000
23 км
от МКАД
от МКАД
-
120.6 сот.
S участка
S участка
301 500 000
22 км
от МКАД
от МКАД
1100 м²
S объекта
S объекта
48 сот.
S участка
S участка
255 000 000
5 км
от МКАД
от МКАД
862 м²
S объекта
S объекта
38 сот.
S участка
S участка
650 000 000
19 км
от МКАД
от МКАД
847 м²
S объекта
S объекта
25.2 сот.
S участка
S участка
429 000 000
15 км
от МКАД
от МКАД
прилесной
42 сот.
S участка
S участка
320 000 000