Участок с домом в Жуковке
ID12670 Продажа
- Шоссе Рублёво-Успенское шоссе
- Населенный пункт Жуковка
- Поселок Жуковка Академическая
- Расстояние от МКАД 9 км
- Площадь объекта 740 м²
- Площадь участка 32 сот.
Расположение
- Шоссе Рублёво-Успенское шоссе
- Северный объезд Одинцово (платная дорога)
- Ильинское шоссе
- Населенный пункт Жуковка
- Поселок Жуковка Академическая
- Удаленность от МКАД 9 км
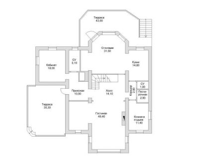
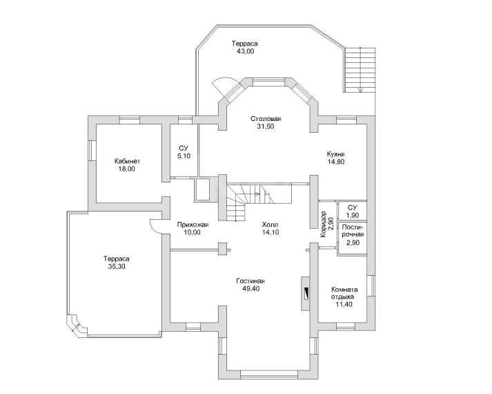
Объект
- Площадь дома740 м²
- Кол-во спален5
- Год постройки здания2003
- Отделкапод ключ с мебелью
Коммуникации
- Водоснабжениецентральное
- Газмагистральный
- Канализацияцентральная
- Электричествода
Дополнительно
- Бассейнда
- Гараж м\мда
- Доп. строенияда
Планировки
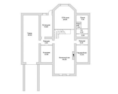
Мансарда: гостиная, бильярдная, зимний сад
Цоколь: гардеробная, каминный зал, спа зона с сауной и джакузи, гараж на 2 м/м, с/у, кладовая, котельная
Этаж 1: прихожая, кухня-столовая, гостиная, кабинет, с/у, блок для персонала: комната отдыха, постирочная, с/у.
Этаж 2: 5 спален, 3 с/у, гардеробная
10 км
от МКАД
от МКАД
1042 м²
S объекта
S объекта
41 сот.
S участка
S участка
426 133 337
9 км
от МКАД
от МКАД
620 м²
S объекта
S объекта
67 сот.
S участка
S участка
530 000 000
9 км
от МКАД
от МКАД
620 м²
S объекта
S объекта
10.5 сот.
S участка
S участка
450 000 000
9 км
от МКАД
от МКАД
1500 м²
S объекта
S объекта
34 сот.
S участка
S участка
426 133 337
10 км
от МКАД
от МКАД
750 м²
S объекта
S объекта
35 сот.
S участка
S участка
426 133 337
9 км
от МКАД
от МКАД
726 м²
S объекта
S объекта
15 сот.
S участка
S участка
371 867 020
9 км
от МКАД
от МКАД
487 м²
S объекта
S объекта
33 сот.
S участка
S участка
532 666 671
9 км
от МКАД
от МКАД
1000 м²
S объекта
S объекта
20 сот.
S участка
S участка
397 724 448
9 км
от МКАД
от МКАД
лесной
17.7 сот.
S участка
S участка
126 135 468
9 км
от МКАД
от МКАД
750 м²
S объекта
S объекта
8 сот.
S участка
S участка
276 986 669
15 км
от МКАД
от МКАД
1200 м²
S объекта
S объекта
50 сот.
S участка
S участка
333 804 447
Квартира с огромной террасой в ЖК Остров Фантазий
ID5028 Продажа
Рублёво-Успенское шоссе, Западный, Крылатское
1 км
от МКАД
от МКАД
245 м²
S объекта
S объекта
Под ключ
с мебелью
с мебелью
230 000 000
13 км
от МКАД
от МКАД
460 м²
S объекта
S объекта
23 сот.
S участка
S участка
110 000 000
4 км
от МКАД
от МКАД
343 м²
S объекта
S объекта
Под ключ
с мебелью
с мебелью
213 066 669
23 км
от МКАД
от МКАД
-
84 сот.
S участка
S участка
135 000 000
9 км
от МКАД
от МКАД
1650 м²
S объекта
S объекта
70 сот.
S участка
S участка
826 371 156
9 км
от МКАД
от МКАД
220 м²
S объекта
S объекта
8 сот.
S участка
S участка
132 000 000
1 км
от МКАД
от МКАД
1830 м²
S объекта
S объекта
15 сот.
S участка
S участка
578 459 809
8 км
от МКАД
от МКАД
-
20.64 сот.
S участка
S участка
105 000 000
24 км
от МКАД
от МКАД
1050 м²
S объекта
S объекта
26 сот.
S участка
S участка
486 502 227
15 км
от МКАД
от МКАД
прилесной
42 сот.
S участка
S участка
320 000 000
11 км
от МКАД
от МКАД
415 м²
S объекта
S объекта
12 сот.
S участка
S участка
360 000 000
5 км
от МКАД
от МКАД
1015 м²
S объекта
S объекта
56 сот.
S участка
S участка
1 590 000 000
24 км
от МКАД
от МКАД
550 м²
S объекта
S объекта
30 сот.
S участка
S участка
269 884 447
7 км
от МКАД
от МКАД
646 м²
S объекта
S объекта
11 сот.
S участка
S участка
550 000 000
5 км
от МКАД
от МКАД
862 м²
S объекта
S объекта
38 сот.
S участка
S участка
650 000 000
22 км
от МКАД
от МКАД
лесной
60 сот.
S участка
S участка
78 000 000
13 км
от МКАД
от МКАД
535 м²
S объекта
S объекта
18 сот.
S участка
S участка
490 000 000
22 км
от МКАД
от МКАД
1100 м²
S объекта
S объекта
48 сот.
S участка
S участка
232 000 000
5 км
от МКАД
от МКАД
942 м²
S объекта
S объекта
38 сот.
S участка
S участка
1 390 000 000
15 км
от МКАД
от МКАД
1000 м²
S объекта
S объекта
40 сот.
S участка
S участка
400 000 000
24 км
от МКАД
от МКАД
415 м²
S объекта
S объекта
4 сот.
S участка
S участка
49 000 000