Дом 623 кв.м. в Петрово-Дальнее
ID12046 Продажа
- Шоссе Рублёво-Успенское шоссе
- Населенный пункт Петрово-Дальнее
- Расстояние от МКАД 18 км
- Площадь объекта 623 м²
- Площадь участка 9 сот.
Расположение
- Шоссе Рублёво-Успенское шоссе
- Новорижское шоссе
- Ильинское шоссе
- Населенный пункт Петрово-Дальнее
- Удаленность от МКАД 18 км
Объект
- Площадь дома623 м²
- Кол-во спален6
- Год постройки здания2022
- Отделкапод ключ с мебелью
Коммуникации
- Водоснабжениецентральное
- Газмагистральный
- Канализацияцентральная
- Электричествода
Дополнительно
- Гараж м\мда
- Гостевой домда
Описание
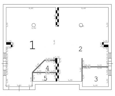
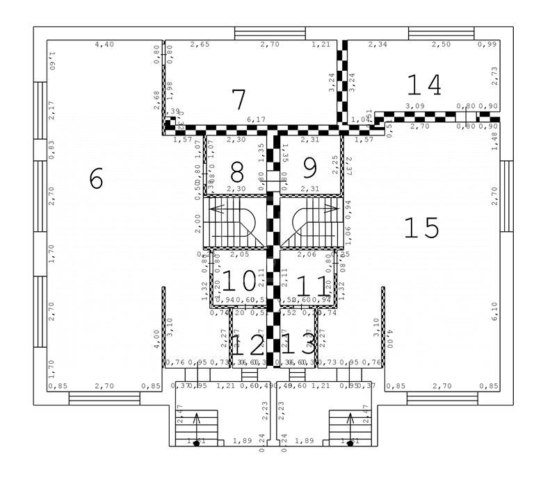
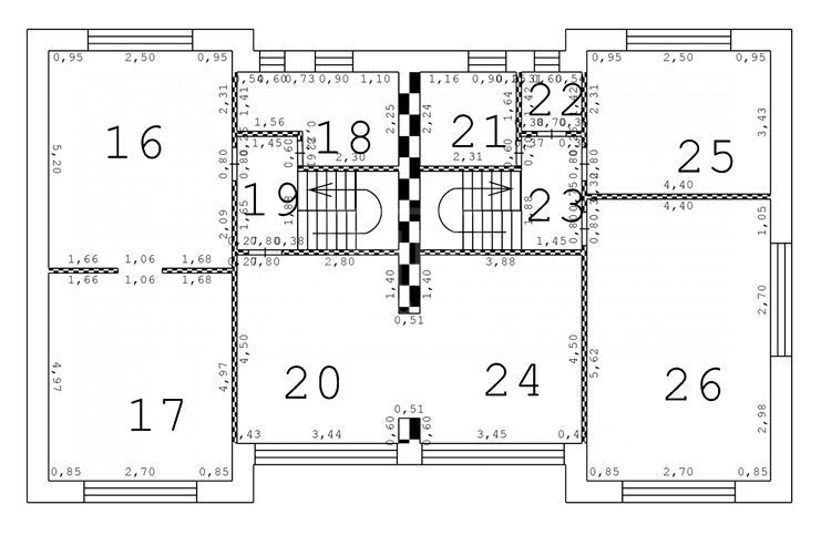
К продаже предлагается загородный дом-дуплекс, с двумя отдельными выходами, с отделкой под ключ в поселке Петрово-Дальнее. Площадь частей дуплекса 220 кв.м. и 180 кв.м. Дом с качественным ремонтом и продуманной планировкой. В отделке использовались качественные материалы, дом укомплектован мебелью. В доме на цокольном этаже расположен гараж площадью 230 кв.м. и вмещает 8 автомобилей. Участок правильной формы с ландшафтным дизайном, на территории расположен гостевой дом с качественным ремонтом и мебелью (с коммуникациями).Планировки:
Часть дуплекса площадью 220 м2:
1 этаж: прихожая, кухня - столовая - гостиная, спальня, санузел, постирочная/гардеробная
2 этаж: две спальни, кабинет, гардеробная, санузел
Часть дуплекса площадью 180 м2:
1 этаж: прихожая, кухня-столовая-гостиная, спальня, санузел, кладовка
2 этаж: две спальни, гардеробная, санузел, постирочная
Гостевой дом: прихожая, уборная (душ), кухня, жилая комната.
24 км
от МКАД
от МКАД
1050 м²
S объекта
S объекта
26 сот.
S участка
S участка
537 917 279
9 км
от МКАД
от МКАД
750 м²
S объекта
S объекта
8 сот.
S участка
S участка
306 259 472
13 км
от МКАД
от МКАД
460 м²
S объекта
S объекта
23 сот.
S участка
S участка
110 000 000
22 км
от МКАД
от МКАД
садовый
50 сот.
S участка
S участка
60 000 000
19 км
от МКАД
от МКАД
2100 м²
S объекта
S объекта
63 сот.
S участка
S участка
1 963 201 746
1 км
от МКАД
от МКАД
1830 м²
S объекта
S объекта
15 сот.
S участка
S участка
642 685 323
8 км
от МКАД
от МКАД
-
20.64 сот.
S участка
S участка
110 250 000
28 км
от МКАД
от МКАД
800 м²
S объекта
S объекта
44 сот.
S участка
S участка
62 000 000
7 км
от МКАД
от МКАД
630 м²
S объекта
S объекта
12 сот.
S участка
S участка
188 000 000
28 км
от МКАД
от МКАД
360 м²
S объекта
S объекта
20 сот.
S участка
S участка
107 000 000
Квартира с огромной террасой в ЖК Остров Фантазий
ID5028 Продажа
Рублёво-Успенское шоссе, Западный, Крылатское
17 км
от МКАД
от МКАД
245 м²
S объекта
S объекта
Под ключ
с мебелью
с мебелью
230 000 000
9 км
от МКАД
от МКАД
220 м²
S объекта
S объекта
8 сот.
S участка
S участка
107 000 000
23 км
от МКАД
от МКАД
-
120.6 сот.
S участка
S участка
301 500 000
5 км
от МКАД
от МКАД
862 м²
S объекта
S объекта
38 сот.
S участка
S участка
650 000 000
11 км
от МКАД
от МКАД
415 м²
S объекта
S объекта
12 сот.
S участка
S участка
360 000 000
24 км
от МКАД
от МКАД
550 м²
S объекта
S объекта
30 сот.
S участка
S участка
298 406 665
5 км
от МКАД
от МКАД
942 м²
S объекта
S объекта
38 сот.
S участка
S участка
1 390 000 000
5 км
от МКАД
от МКАД
1015 м²
S объекта
S объекта
56 сот.
S участка
S участка
1 590 000 000
22 км
от МКАД
от МКАД
1100 м²
S объекта
S объекта
48 сот.
S участка
S участка
255 000 000
24 км
от МКАД
от МКАД
415 м²
S объекта
S объекта
4 сот.
S участка
S участка
49 000 000
7 км
от МКАД
от МКАД
646 м²
S объекта
S объекта
11 сот.
S участка
S участка
390 000 000
15 км
от МКАД
от МКАД
1000 м²
S объекта
S объекта
40 сот.
S участка
S участка
420 000 000
19 км
от МКАД
от МКАД
847 м²
S объекта
S объекта
25.2 сот.
S участка
S участка
429 000 000
15 км
от МКАД
от МКАД
прилесной
42 сот.
S участка
S участка
320 000 000