Элегантный дом в КП Никольская Слобода
ID12083 Продажа
- Шоссе Новорижское шоссе
- Населенный пункт Поздняково
- Поселок Никольская Слобода
- Расстояние от МКАД 9 км
- Площадь объекта 850 м²
- Площадь участка 46 сот.
Расположение
- Шоссе Новорижское шоссе
- Ильинское шоссе
- Населенный пункт Поздняково
- Поселок Никольская Слобода
- Удаленность от МКАД 9 км
Объект
- Площадь дома850 м²
- Кол-во спален5
- Отделкапод ключ с мебелью
Коммуникации
- Водоснабжениецентральное
- Газмагистральный
- Канализацияцентральная
- Электричествода
Дополнительно
- Гараж м\мда
- Барбекюда
- Помещение для персоналада
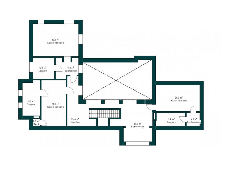
Планировки
Цоколь: галерея для экспозиции и хранения предметов искусства и коллекционирования, спорт зал, кинотеатр, винная комната, кладовая, котельная отдельным входом для персонала.
Этаж 1: тамбур, холл, просторная гостиная с камином и вторым светом, столовая с выходом на веранду, две кухни, мастер-спальня с санузлом и гардеробной, гостевая комната, кабинет, гостевой с/у, постирочная.
Этаж 2: три спальни с санузлами и гардеробными, библиотека.
Описание
На продажу представлен элегантный дом в стиле современной классики — 850 м² безупречного пространства, где каждая деталь продумана до мелочей. Панорамные окна, высокие потолки и натуральные материалы создают атмосферу света и воздуха, а премиальная отделка и эксклюзивная мебель подчеркивают утонченность и статус владельца. Интерьер украшен текстилем, декором и светильниками от Ralf Lauren Home, создавая атмосферу роскоши и уюта. Здесь не нужно тратить время на ремонт — дом готов стать вашим идеальным местом для жизни. Гостиная с камином плавно переходит в обеденную зону с выходом на террасу — сердце дома для встреч с семьей и друзьями, 2 кухни, в том числе рабочая. Для ценителей кино предусмотрен кинозал, энотека для коллекционных вин и тренажерный зал, обеспечивающие комфортное времяпрепровождение. Пять стильных спален и отдельная квартира для обслуживающего персонала с двумя спальнями и санузлом добавляют удобства. Банный комплекс — это уникальное пространство для отдыха. спальня на втором этаже, уличное джакузи и пруд для купания создают атмосферу уединения, где каждый момент приносит удовольствие. Гараж на 5 автомобилей — для тех, кто ценит качество и удобство, гармонично вписывающийся в общий стиль участка. Участок площадью 46 соток — настоящий оазис с профессиональным ландшафтным дизайном. Ухоженные газоны, декоративные деревья и прогулочные дорожки создают идеальное пространство для уединенных прогулок. Плодоносящий сад, огород и теплица — рай для любителей натуральных продуктов. Отдельная беседка с зоной барбекю и казаном — идеальное место для наслаждения гастрономическими удовольствиями на свежем воздухе. Территория имеет небольшой уклон, открывающий захватывающие виды на природу. Этот дом и участок — произведение искусства, сочетающее изысканный стиль, комфорт и удобство.
9 км
от МКАД
от МКАД
1120 м²
S объекта
S объекта
29 сот.
S участка
S участка
590 000 000
9 км
от МКАД
от МКАД
1778 м²
S объекта
S объекта
28 сот.
S участка
S участка
650 000 000
9 км
от МКАД
от МКАД
980 м²
S объекта
S объекта
60 сот.
S участка
S участка
600 000 000
9 км
от МКАД
от МКАД
850 м²
S объекта
S объекта
27 сот.
S участка
S участка
746 016 664
9 км
от МКАД
от МКАД
1015 м²
S объекта
S объекта
20 сот.
S участка
S участка
651 782 980
9 км
от МКАД
от МКАД
1050 м²
S объекта
S объекта
30 сот.
S участка
S участка
471 168 419
9 км
от МКАД
от МКАД
1458 м²
S объекта
S объекта
44 сот.
S участка
S участка
500 000 000
19 км
от МКАД
от МКАД
847 м²
S объекта
S объекта
25.2 сот.
S участка
S участка
429 000 000
23 км
от МКАД
от МКАД
полевой
47 сот.
S участка
S участка
117 500 000
27 км
от МКАД
от МКАД
570 м²
S объекта
S объекта
18 сот.
S участка
S участка
128 000 000
24 км
от МКАД
от МКАД
прилесной
17 сот.
S участка
S участка
65 000 000
15 км
от МКАД
от МКАД
550 м²
S объекта
S объекта
24 сот.
S участка
S участка
212 025 789
5 км
от МКАД
от МКАД
270 м²
S объекта
S объекта
4 сот.
S участка
S участка
115 000 000
23 км
от МКАД
от МКАД
800 м²
S объекта
S объекта
25 сот.
S участка
S участка
300 000 000
9 км
от МКАД
от МКАД
850 м²
S объекта
S объекта
27 сот.
S участка
S участка
746 016 664
1 км
от МКАД
от МКАД
400 м²
S объекта
S объекта
7 сот.
S участка
S участка
225 000 000
20 км
от МКАД
от МКАД
у воды
30.88 сот.
S участка
S участка
420 000 000
20 км
от МКАД
от МКАД
у воды
114.9 сот.
S участка
S участка
998 535 451
20 км
от МКАД
от МКАД
410 м²
S объекта
S объекта
50 сот.
S участка
S участка
175 000 000
19 км
от МКАД
от МКАД
847 м²
S объекта
S объекта
25.2 сот.
S участка
S участка
429 000 000
24 км
от МКАД
от МКАД
550 м²
S объекта
S объекта
30 сот.
S участка
S участка
298 406 665
5 км
от МКАД
от МКАД
862 м²
S объекта
S объекта
38 сот.
S участка
S участка
650 000 000
7 км
от МКАД
от МКАД
646 м²
S объекта
S объекта
11 сот.
S участка
S участка
390 000 000
11 км
от МКАД
от МКАД
415 м²
S объекта
S объекта
12 сот.
S участка
S участка
360 000 000
24 км
от МКАД
от МКАД
415 м²
S объекта
S объекта
4 сот.
S участка
S участка
49 000 000
22 км
от МКАД
от МКАД
1100 м²
S объекта
S объекта
48 сот.
S участка
S участка
255 000 000
5 км
от МКАД
от МКАД
1015 м²
S объекта
S объекта
56 сот.
S участка
S участка
1 590 000 000
15 км
от МКАД
от МКАД
1000 м²
S объекта
S объекта
40 сот.
S участка
S участка
420 000 000
5 км
от МКАД
от МКАД
942 м²
S объекта
S объекта
38 сот.
S участка
S участка
1 390 000 000
15 км
от МКАД
от МКАД
прилесной
42 сот.
S участка
S участка
320 000 000
23 км
от МКАД
от МКАД
-
120.6 сот.
S участка
S участка
301 500 000