Современный дом в КП Маслово Парк
ID12204 Продажа
- Шоссе Рублёво-Успенское шоссе
- Населенный пункт Маслово
- Поселок Маслово Парк
- Расстояние от МКАД 24 км
- Площадь объекта 545 м²
- Площадь участка 32 сот.
Расположение
- Шоссе Рублёво-Успенское шоссе
- Новорижское шоссе
- Ильинское шоссе
- Населенный пункт Маслово
- Поселок Маслово Парк
- Удаленность от МКАД 24 км
Объект
- Площадь дома545 м²
- Кол-во спален5
- Год постройки здания2022
- Отделкапод ключ с мебелью
Коммуникации
- Водоснабжениецентральное
- Газмагистральный
- Канализацияцентральная
- Электричествода
Дополнительно
- Бассейнда
- Баняда
- Гараж м\мда
- Доп. строенияда
- Барбекюда
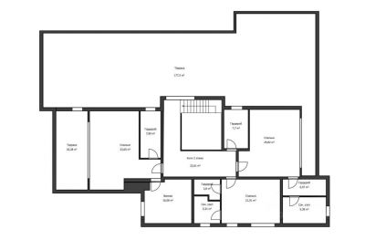
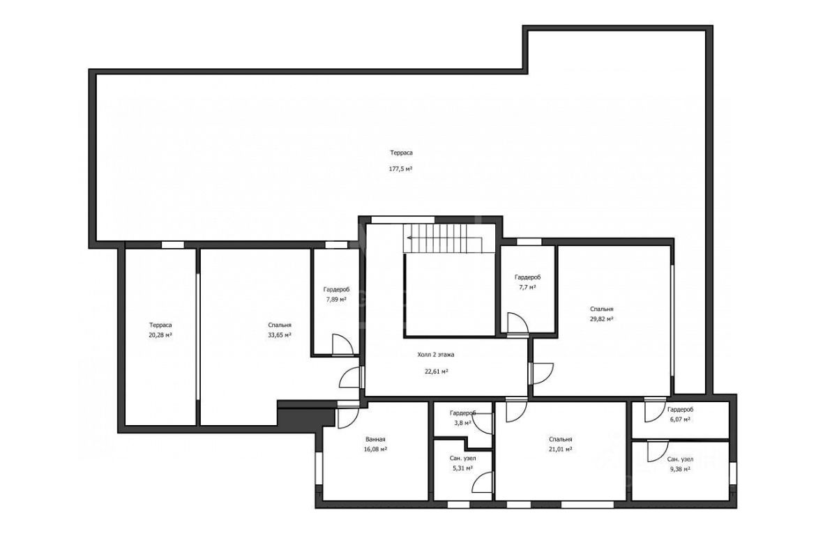
Планировки
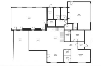
Этаж 1: холл, гардеробная, гостевая комната, с/у гостевой, гостевая комната с с/у, кухня-гостинная с выходом на террасу, бассейн, хаммам, прачечная, гараж на 2 м/м, подсобные помещения.
Этаж 2: мастер спальня с гардеробной с выходом на террасу, ванная комната с с/у, гостевая спальня с гардеробной, душевая с с/у, детская комната с ванной и гардеробной.
Описание
На продажу предлагается эксклюзивное предложение в камерном КП Маслово Парк, в 27 км по Рублево-Успенскому шоссе. Дом 545 кв. метров, расположен в лучшей части поселка на лесном участке 32 сотки, с вековыми соснами и елями, где только тишина и пение птиц. При отделке дома использовались премиальные материалы. Внутреннее пространство дома организовано с учетом удобства жизни и отдыха всех проживающих в нем. Также на участке располагается русская баня, построенная из бревна сосны (кело), с гостиной и кухней, отельной гостевой комнатой с с/у, с парной из кедра, кедровой бочкой и купелью с дровяным подогревом. На участке выполнен ландшафтный дизайн, высажены кустарники, туи, освещены дорожки. Есть зона патио с костровой ямой и устройством ливневых стоков .
22 км
от МКАД
от МКАД
600 м²
S объекта
S объекта
15 сот.
S участка
S участка
450 000 000
24 км
от МКАД
от МКАД
400 м²
S объекта
S объекта
23 сот.
S участка
S участка
345 000 000
22 км
от МКАД
от МКАД
1500 м²
S объекта
S объекта
32 сот.
S участка
S участка
460 000 000
Квартира с огромной террасой в ЖК Остров Фантазий
ID5028 Продажа
Рублёво-Успенское шоссе, Западный, Крылатское
17 км
от МКАД
от МКАД
245 м²
S объекта
S объекта
Под ключ
с мебелью
с мебелью
230 000 000
28 км
от МКАД
от МКАД
800 м²
S объекта
S объекта
44 сот.
S участка
S участка
62 000 000
7 км
от МКАД
от МКАД
630 м²
S объекта
S объекта
12 сот.
S участка
S участка
188 000 000
19 км
от МКАД
от МКАД
2100 м²
S объекта
S объекта
63 сот.
S участка
S участка
1 955 707 145
1 км
от МКАД
от МКАД
1830 м²
S объекта
S объекта
15 сот.
S участка
S участка
635 733 682
8 км
от МКАД
от МКАД
-
20.64 сот.
S участка
S участка
110 250 000
9 км
от МКАД
от МКАД
220 м²
S объекта
S объекта
8 сот.
S участка
S участка
107 000 000
13 км
от МКАД
от МКАД
460 м²
S объекта
S объекта
23 сот.
S участка
S участка
110 000 000
9 км
от МКАД
от МКАД
1650 м²
S объекта
S объекта
70 сот.
S участка
S участка
908 190 974
9 км
от МКАД
от МКАД
750 м²
S объекта
S объекта
8 сот.
S участка
S участка
305 090 315
24 км
от МКАД
от МКАД
1050 м²
S объекта
S объекта
26 сот.
S участка
S участка
508 483 858
28 км
от МКАД
от МКАД
360 м²
S объекта
S объекта
20 сот.
S участка
S участка
107 000 000
15 км
от МКАД
от МКАД
1000 м²
S объекта
S объекта
40 сот.
S участка
S участка
420 000 000
24 км
от МКАД
от МКАД
550 м²
S объекта
S объекта
30 сот.
S участка
S участка
297 267 486
5 км
от МКАД
от МКАД
942 м²
S объекта
S объекта
38 сот.
S участка
S участка
1 350 000 000
11 км
от МКАД
от МКАД
полевой
15 сот.
S участка
S участка
70 000 000
23 км
от МКАД
от МКАД
-
120.6 сот.
S участка
S участка
301 500 000
7 км
от МКАД
от МКАД
646 м²
S объекта
S объекта
11 сот.
S участка
S участка
390 000 000
11 км
от МКАД
от МКАД
415 м²
S объекта
S объекта
12 сот.
S участка
S участка
360 000 000
24 км
от МКАД
от МКАД
415 м²
S объекта
S объекта
4 сот.
S участка
S участка
49 000 000
19 км
от МКАД
от МКАД
847 м²
S объекта
S объекта
25.2 сот.
S участка
S участка
429 000 000
22 км
от МКАД
от МКАД
1100 м²
S объекта
S объекта
48 сот.
S участка
S участка
275 000 000
15 км
от МКАД
от МКАД
прилесной
42 сот.
S участка
S участка
320 000 000
5 км
от МКАД
от МКАД
862 м²
S объекта
S объекта
38 сот.
S участка
S участка
650 000 000