Вилла в Жуковке
ID12324 Продажа
- Шоссе Рублёво-Успенское шоссе
- Населенный пункт Жуковка
- Поселок Ильинские Дачи
- Расстояние от МКАД 10 км
- Площадь объекта 1495 м²
- Площадь участка 15 сот.
Расположение
- Шоссе Рублёво-Успенское шоссе
- Северный объезд Одинцово (платная дорога)
- Красногорское шоссе
- Населенный пункт Жуковка
- Поселок Ильинские Дачи
- Удаленность от МКАД 10 км
Объект
- Площадь дома1495 м²
- Кол-во спален5
- Год постройки здания2024
- Отделкапод ключ с мебелью
Коммуникации
- Водоснабжениецентральное
- Газмагистральный
- Канализацияцентральная
- Электричествода
Дополнительно
- Бассейнда
- Баняда
- Гараж м\мда
- Гостевой домда
- Доп. строенияда
Планировки
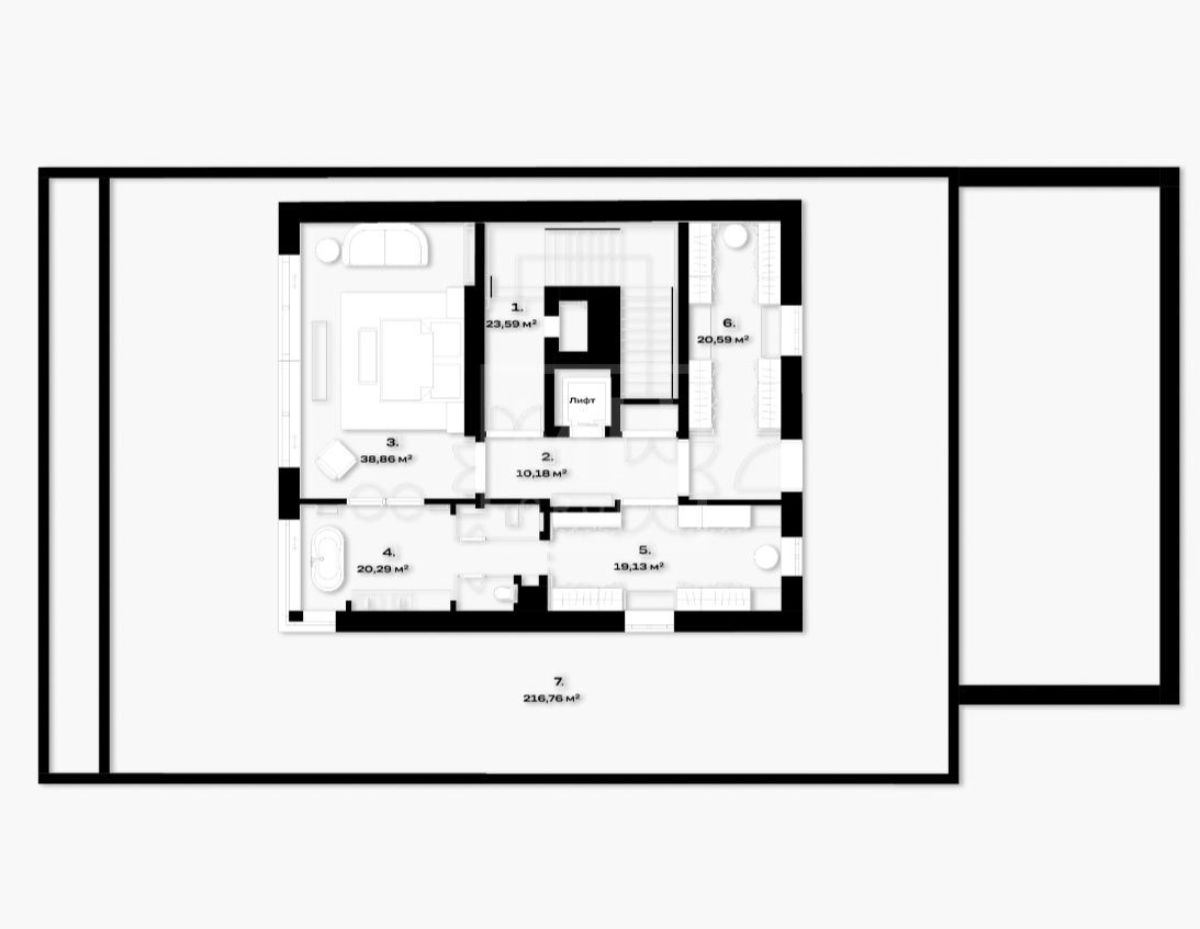
Цоколь: Спа-зона состоящая из бассейна, 11*3.5м, хаммама, сауны, комнаты отдыха и раздевалки, а также санузла. Квартира для персонала: кухня-столовая-гостиная, спальня и санузел. Помещение свободного назначения в которых можно организовать сезонное хранение, рабочую кухню. Помещение для охраны с видеонаблюдением.
Этаж 1: прихожая, гардеробная, просторная гостиная с камином, панорамным остеклением и выходом на террасу, столовая со столом на 10 персон, кухня с островом для завтраков и всем необходимым кухонным оборудованием, кабинет, гараж на 4 автомобиля.
Этаж 2: 4 спальни сьют состоящий из спальни с выходом на террасу, просторной гардеробной и ванной комнаты. 2 гостевые спальни( могут быть также использованы как детские) со своими ванными комнатами и шкафами для хранения одежды и просторная детская с ванной комнатой и шкафами для хранения.
Этаж 3: мастер блок состоящий из просторной спальни, 2 гардеробных комнат и ванной комнаты. Из мастер блока также предусмотрен выход на террасу.
Описание
VILLA SILVIA в Жуковке. Уникальный проект класса люкс, расположенный в охраняемом поселке "Ильинские Дачи" на Рублево-Успенском шоссе в 9 км от МКАД. Архитектура от Spaceworkers (Португалия ) и интерьер от Imagede Marc (Франция) создают гармоничное пространство, где современный стиль сочетается с природой и комфортом. Общая площадь виллы 1495.4 м2, включая 420 м2, панорамных террас. В доме 2 этажа и цоколь, обьединенные лифтом и системой "умный дом" KNX. Первый этаж - парадная часть виллы, где утонченный стиль обьединяется с функциональностью. Здесь есть все для комфортной жизни: элегантная входная группа с высотой потолков 3.5 метра со знаменитыми итальянскими светильниками FLOS и дизайнерским круглым столом ANDREAU WORLD гармонично сочетающимися с настенными панелями из эвкалипта. Пространство украшает барельеф, выполненный по индивидуальному эскизу скульптором Александром Чичкиным. На втором этаже :4 спальни сьют состоящий из спальни с выходом на террасу, просторной гардеробной и ванной комнаты, 2 гостевые спальни( могут быть также использованы как детские) со своими ванными комнатами и шкафами для хранения одежды и просторная детская с ванной комнатой и шкафами для хранения. Третий этаж полностью отведен под мастер блок состоящий из просторной спальни, 2 гардеробных комнат и ванной комнаты. Из мастер блока также предусмотрен выход на террасу. В цоколе уютная Спа-зона состоящая из бассейна, 11*3.5м, хаммама, сауны, комнаты отдыха и раздевалки, а также санузла. Квартира для персонала: кухня-столовая-гостиная, спальня и санузел. Помещение свободного назначения в которых можно организовать сезонное хранение, рабочую кухню. Помещение для охраны с видеонаблюдением. Участок 15 соток, окружен вековыми соснами.от МКАД
S объекта
S участка
от МКАД
S объекта
S участка
от МКАД
S объекта
S участка
от МКАД
S объекта
S участка
от МКАД
S объекта
S участка
от МКАД
S объекта
S участка
от МКАД
S объекта
S участка
от МКАД
S объекта
S участка
от МКАД
S объекта
S участка
от МКАД
S объекта
S участка
Квартира с огромной террасой в ЖК Остров Фантазий
ID5028 Продажа
от МКАД
S объекта
с мебелью
от МКАД
S участка
от МКАД
S объекта
S участка
от МКАД
S объекта
S участка
от МКАД
S объекта
S участка
от МКАД
S объекта
S участка
от МКАД
S объекта
S участка
от МКАД
S объекта
S участка
от МКАД
S участка
от МКАД
S объекта
с мебелью
от МКАД
S участка
от МКАД
S объекта
S участка
от МКАД
S объекта
S участка
от МКАД
S объекта
S участка
от МКАД
S объекта
S участка
от МКАД
S участка
от МКАД
S участка
от МКАД
S объекта
S участка
от МКАД
S объекта
S участка
от МКАД
S объекта
S участка
от МКАД
S объекта
S участка
от МКАД
S объекта
S участка
от МКАД
S объекта
S участка
от МКАД
S объекта
S участка