Дом под ключ в Жуковке XXI
ID7420 Продажа
- Шоссе Рублёво-Успенское шоссе
- Населенный пункт Жуковка
- Поселок Жуковка XXI
- Расстояние от МКАД 9 км
- Площадь объекта 990 м²
- Площадь участка 50 сот.
Расположение
- Шоссе Рублёво-Успенское шоссе
- Северный объезд Одинцово (платная дорога)
- Ильинское шоссе
- Населенный пункт Жуковка
- Поселок Жуковка XXI
- Удаленность от МКАД 9 км
Объект
- Площадь дома990 м²
- Кол-во спален5
- Год постройки здания2018
- Отделкапод ключ с мебелью
Коммуникации
- Водоснабжениецентральное
- Газмагистральный
- Канализацияцентральная
- Электричествода
Дополнительно
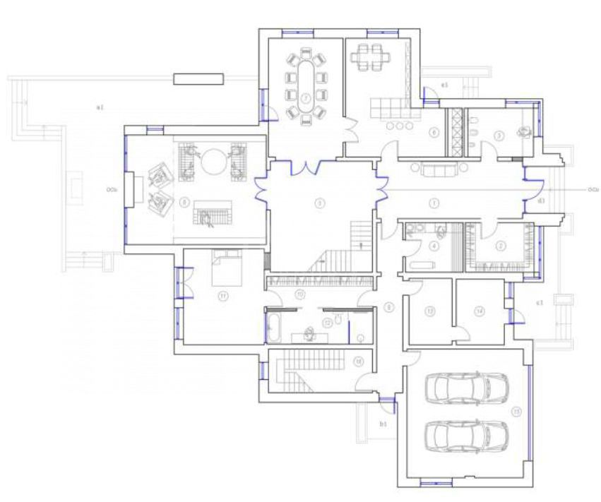
Планировки
Этаж 1: прихожая, гардеробная, с/у,холл, кухня-столовая, гостиная со вторым светом, выход на террасу с уличным камином,спальня с гардеробной и ванной комнатой, постирочная, котельная, серверная, гараж на 2 м/м
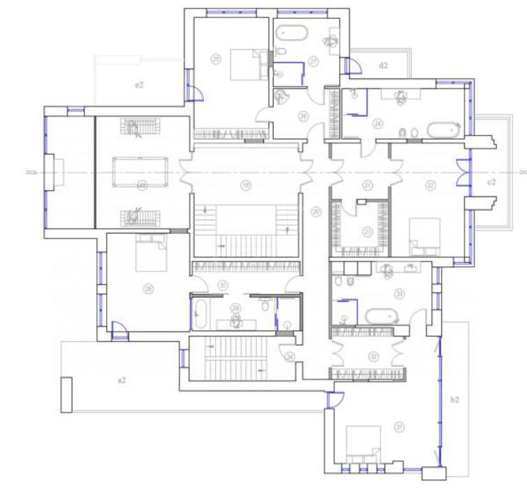
Этаж 2: 4 спальни со своими гардеробными, ванными комнатами и балконами, игровая комната
Описание
Современный дом с высоким уровнем отделки. Удобная, продуманная планировка. Премиальное оснащение мебелью, светильниками, сан.тех приборами и инженерией.
9 км
от МКАД
от МКАД
830 м²
S объекта
S объекта
30 сот.
S участка
S участка
762 141 224
9 км
от МКАД
от МКАД
1250 м²
S объекта
S объекта
51 сот.
S участка
S участка
1 021 426 383
9 км
от МКАД
от МКАД
890 м²
S объекта
S объекта
50 сот.
S участка
S участка
899 250 000
9 км
от МКАД
от МКАД
1100 м²
S объекта
S объекта
23 сот.
S участка
S участка
1 000 000 000
9 км
от МКАД
от МКАД
1215 м²
S объекта
S объекта
51.62 сот.
S участка
S участка
982 140 753
9 км
от МКАД
от МКАД
950 м²
S объекта
S объекта
50 сот.
S участка
S участка
738 375 000
9 км
от МКАД
от МКАД
876 м²
S объекта
S объекта
17.5 сот.
S участка
S участка
1 170 711 777
9 км
от МКАД
от МКАД
1650 м²
S объекта
S объекта
70 сот.
S участка
S участка
921 964 892
11 км
от МКАД
от МКАД
900 м²
S объекта
S объекта
20 сот.
S участка
S участка
942 855 122
9 км
от МКАД
от МКАД
1508 м²
S объекта
S объекта
50 сот.
S участка
S участка
1 064 250 000
28 км
от МКАД
от МКАД
800 м²
S объекта
S объекта
44 сот.
S участка
S участка
62 000 000
1 км
от МКАД
от МКАД
1830 м²
S объекта
S объекта
15 сот.
S участка
S участка
645 375 424
7 км
от МКАД
от МКАД
630 м²
S объекта
S объекта
12 сот.
S участка
S участка
188 000 000
19 км
от МКАД
от МКАД
2100 м²
S объекта
S объекта
63 сот.
S участка
S участка
1 964 281 505
Квартира с огромной террасой в ЖК Остров Фантазий
ID5028 Продажа
Рублёво-Успенское шоссе, Западный, Крылатское
17 км
от МКАД
от МКАД
245 м²
S объекта
S объекта
Под ключ
с мебелью
с мебелью
230 000 000
13 км
от МКАД
от МКАД
460 м²
S объекта
S объекта
23 сот.
S участка
S участка
110 000 000
24 км
от МКАД
от МКАД
1050 м²
S объекта
S объекта
26 сот.
S участка
S участка
538 213 132
28 км
от МКАД
от МКАД
360 м²
S объекта
S объекта
20 сот.
S участка
S участка
107 000 000
8 км
от МКАД
от МКАД
-
20.64 сот.
S участка
S участка
110 250 000
9 км
от МКАД
от МКАД
220 м²
S объекта
S объекта
8 сот.
S участка
S участка
107 000 000
22 км
от МКАД
от МКАД
садовый
50 сот.
S участка
S участка
60 000 000
9 км
от МКАД
от МКАД
750 м²
S объекта
S объекта
8 сот.
S участка
S участка
306 427 915
19 км
от МКАД
от МКАД
847 м²
S объекта
S объекта
25.2 сот.
S участка
S участка
429 000 000
7 км
от МКАД
от МКАД
646 м²
S объекта
S объекта
11 сот.
S участка
S участка
390 000 000
11 км
от МКАД
от МКАД
415 м²
S объекта
S объекта
12 сот.
S участка
S участка
360 000 000
22 км
от МКАД
от МКАД
1100 м²
S объекта
S объекта
48 сот.
S участка
S участка
255 000 000
24 км
от МКАД
от МКАД
550 м²
S объекта
S объекта
30 сот.
S участка
S участка
298 570 789
23 км
от МКАД
от МКАД
-
120.6 сот.
S участка
S участка
301 500 000
5 км
от МКАД
от МКАД
942 м²
S объекта
S объекта
38 сот.
S участка
S участка
1 390 000 000
5 км
от МКАД
от МКАД
862 м²
S объекта
S объекта
38 сот.
S участка
S участка
650 000 000
24 км
от МКАД
от МКАД
415 м²
S объекта
S объекта
4 сот.
S участка
S участка
49 000 000
15 км
от МКАД
от МКАД
1000 м²
S объекта
S объекта
40 сот.
S участка
S участка
420 000 000
15 км
от МКАД
от МКАД
прилесной
42 сот.
S участка
S участка
320 000 000
5 км
от МКАД
от МКАД
1015 м²
S объекта
S объекта
56 сот.
S участка
S участка
1 590 000 000