Продажа Дом 250 м² на участке 6.2 сот. в Новорижский
ID12472 Продажа
- Шоссе Новорижское шоссе
- Населенный пункт Покровское
- Поселок Новорижский
- Расстояние от МКАД 23 км
- Площадь объекта 250 м²
- Площадь участка 6.2 сот.
Расположение
- Шоссе Новорижское шоссе
- Ильинское шоссе
- Населенный пункт Покровское
- Поселок Новорижский
- Удаленность от МКАД 23 км
Объект
- Площадь дома250 м²
- Кол-во спален5
- Отделкачистовая отделка
Коммуникации
- Водоснабжениецентральное
- Газмагистральный
- Канализацияцентральная
- Электричествода
Дополнительно
Планировки
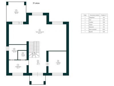
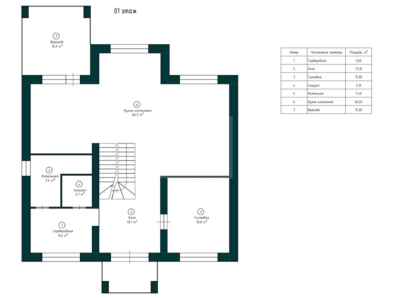
Этаж 1: холл, гардеробная, гостиная, кухня с выходом на веранду, комната гостевая, с-у, постирочная, котельная.
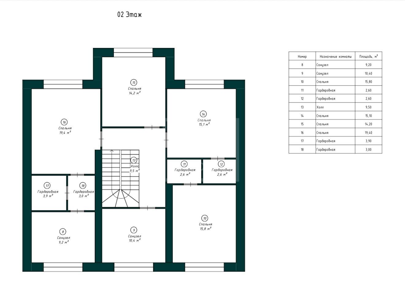
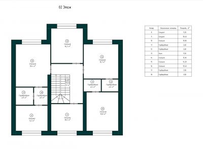
Этаж 2: мастер- спальня со своим с-у и гардеробной, три спальни с гардеробными, с-у.
Описание
Кирпичный дом площадью 250 м² расположен в охраняемом коттеджном посёлке «Новорижский», всего в 24 км от Москвы. Участок — 6,2 сотки, открытого типа, что даёт широкие возможности для ландшафтного оформления. Архитектура дома выполнена в современном стиле с акцентом на выразительность и свободу планировки. Фасад облицован дагестанским камнем, установлены алюминиевые окна, уложена премиальная брусчатка Steingot. Забор оснащён электроприводом.Дом находится в состоянии white box: полы — керамогранит, стены — подготовлены под покраску, потолки — полностью завершены. Все санузлы оборудованы качественной сантехникой. В комплект входят шторы, люстры, диван. Кухня подготовлена по дизайн-проекту. На участке высажены крупномеры.
Планировка первого этажа включает просторный холл, гардеробную, гостиную, кухню с выходом на веранду, гостевую комнату, санузел, постирочную и котельную. Второй этаж — мастер-спальня с собственной ванной и гардеробной, две детские спальни с индивидуальными гардеробными и общий санузел. Предусмотрен навес на два автомобиля.
Посёлок имеет удобный выезд на Новорижское шоссе и обеспечивает высокий уровень безопасности и приватности. Дом готов к финальной отделке и позволяет реализовать любые интерьерные решения.
23 км
от МКАД
от МКАД
330 м²
S объекта
S объекта
13 сот.
S участка
S участка
79 900 000
23 км
от МКАД
от МКАД
300 м²
S объекта
S объекта
6.1 сот.
S участка
S участка
94 999 999
23 км
от МКАД
от МКАД
307 м²
S объекта
S объекта
12.5 сот.
S участка
S участка
69 900 000
23 км
от МКАД
от МКАД
240 м²
S объекта
S объекта
9 сот.
S участка
S участка
95 000 000
23 км
от МКАД
от МКАД
494 м²
S объекта
S объекта
11 сот.
S участка
S участка
78 000 000
20 км
от МКАД
от МКАД
у воды
30.88 сот.
S участка
S участка
420 000 000
15 км
от МКАД
от МКАД
550 м²
S объекта
S объекта
24 сот.
S участка
S участка
203 132 759
27 км
от МКАД
от МКАД
570 м²
S объекта
S объекта
18 сот.
S участка
S участка
128 000 000
9 км
от МКАД
от МКАД
850 м²
S объекта
S объекта
27 сот.
S участка
S участка
714 726 373
20 км
от МКАД
от МКАД
у воды
114.9 сот.
S участка
S участка
956 653 726
1 км
от МКАД
от МКАД
400 м²
S объекта
S объекта
7 сот.
S участка
S участка
225 000 000
5 км
от МКАД
от МКАД
270 м²
S объекта
S объекта
4 сот.
S участка
S участка
95 000 000
23 км
от МКАД
от МКАД
полевой
47 сот.
S участка
S участка
117 500 000
23 км
от МКАД
от МКАД
800 м²
S объекта
S объекта
25 сот.
S участка
S участка
300 000 000
24 км
от МКАД
от МКАД
прилесной
17 сот.
S участка
S участка
63 000 000
20 км
от МКАД
от МКАД
полевой
37 сот.
S участка
S участка
198 000 000
20 км
от МКАД
от МКАД
410 м²
S объекта
S объекта
50 сот.
S участка
S участка
175 000 000
11 км
от МКАД
от МКАД
415 м²
S объекта
S объекта
12 сот.
S участка
S участка
360 000 000
23 км
от МКАД
от МКАД
-
120.6 сот.
S участка
S участка
301 500 000
15 км
от МКАД
от МКАД
1000 м²
S объекта
S объекта
40 сот.
S участка
S участка
420 000 000
5 км
от МКАД
от МКАД
1015 м²
S объекта
S объекта
56 сот.
S участка
S участка
1 590 000 000
15 км
от МКАД
от МКАД
прилесной
42 сот.
S участка
S участка
320 000 000
7 км
от МКАД
от МКАД
646 м²
S объекта
S объекта
11 сот.
S участка
S участка
550 000 000
24 км
от МКАД
от МКАД
550 м²
S объекта
S объекта
30 сот.
S участка
S участка
285 890 549
5 км
от МКАД
от МКАД
942 м²
S объекта
S объекта
38 сот.
S участка
S участка
1 390 000 000
14 км
от МКАД
от МКАД
560 м²
S объекта
S объекта
25 сот.
S участка
S участка
142 945 275
24 км
от МКАД
от МКАД
415 м²
S объекта
S объекта
4 сот.
S участка
S участка
49 000 000
5 км
от МКАД
от МКАД
862 м²
S объекта
S объекта
38 сот.
S участка
S участка
650 000 000
22 км
от МКАД
от МКАД
1100 м²
S объекта
S объекта
48 сот.
S участка
S участка
232 000 000