Современный дом в Жуковке
ID12619 Продажа
- Шоссе Рублёво-Успенское шоссе
- Населенный пункт Жуковка
- Поселок Камыши
- Расстояние от МКАД 10 км
- Площадь объекта 1400 м²
- Площадь участка 49 сот.
Расположение
- Шоссе Рублёво-Успенское шоссе
- Северный объезд Одинцово (платная дорога)
- Красногорское шоссе
- Населенный пункт Жуковка
- Поселок Камыши
- Удаленность от МКАД 10 км
Объект
- Площадь дома1400 м²
- Кол-во спален9
- Год постройки здания2025
- Отделкачерновая отделка
Коммуникации
- Водоснабжениецентральное
- Газмагистральный
- Канализацияцентральная
- Электричествода
Дополнительно
- Баняда
- Доп. строенияда
- Барбекюда
Планировки
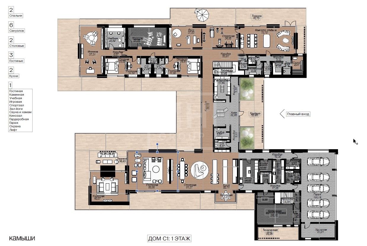
Этаж 1: Холл, две большие гардеробные, гараж на 5 автомобилей, два гостевых санузла, гостевой блок со своей гардеробной и санузлом, гостиная с камином, рабочая кухня, кухня с обеденной и выходом на террасу, комната для пилатес/ тренажерный зал, душевые, Спа. Детский блок с двумя спальнями, санузлами, гардеробными, игровая, ученическая, терраса.
Этаж 2: Семейная гостиная с мягкой и ТВ зоной, мастер блок с двумя ванными комнатами и кабинет, три детских блока со своими санузлами и гардеробными.
Описание
Представляем вашему вниманию великолепный дом, который станет вашей идеальной резиденцией для комфортной и счастливой жизни. Этот объект — воплощение уюта, стиля и функциональности, идеально подходящий для тех, кто ценит простор и приватность.Дом расположен в одном из самых живописных и спокойных районов, где каждый день вы будете окружены красотой природы и свежим воздухом. Это идеальное место для семей, которые хотят обеспечить своим детям безопасное и здоровое окружение для роста и развития.
Внутреннее пространство дома продумано до мелочей, что бы удовлетворить самые высокие требования к комфорту и уюту. Просторные комнаты наполнены естественным светом, а продуманная планировка позволяет эффективно использовать каждый квадратный метр.
Не менее важно и то, что дом находится в районе с хорошо развитой инфраструктурой. В непосредственной близости расположены:
Магазины и супермаркеты, где вы сможете приобрести всё необходимое для повседневной жизни.
Школы и детские сады, обеспечивающие высокое качество образования для ваших детей.
Медицинские учреждения, где вы сможете получить квалифицированную помощь и заботу.
Парки и зоны отдыха, где вы сможете проводить время на свежем воздухе и наслаждаться природой.
Этот дом — не просто недвижимость, это ваш шанс начать новую жизнь, полную комфорта, уюта и радости. Здесь вы сможете воплотить свои мечты о идеальном доме, где каждый член семьи будет чувствовать себя счастливым и защищённым.
9 км
от МКАД
от МКАД
850 м²
S объекта
S объекта
117 сот.
S участка
S участка
1 420 444 457
10 км
от МКАД
от МКАД
1495 м²
S объекта
S объекта
15 сот.
S участка
S участка
1 100 844 454
11 км
от МКАД
от МКАД
1337 м²
S объекта
S объекта
15 сот.
S участка
S участка
1 313 911 123
10 км
от МКАД
от МКАД
2000 м²
S объекта
S объекта
35 сот.
S участка
S участка
1 242 888 900
23 км
от МКАД
от МКАД
-
84 сот.
S участка
S участка
135 000 000
9 км
от МКАД
от МКАД
лесной
17.7 сот.
S участка
S участка
126 135 468
4 км
от МКАД
от МКАД
343 м²
S объекта
S объекта
Под ключ
с мебелью
с мебелью
213 066 669
Квартира с огромной террасой в ЖК Остров Фантазий
ID5028 Продажа
Рублёво-Успенское шоссе, Западный, Крылатское
1 км
от МКАД
от МКАД
245 м²
S объекта
S объекта
Под ключ
с мебелью
с мебелью
230 000 000
1 км
от МКАД
от МКАД
1830 м²
S объекта
S объекта
15 сот.
S участка
S участка
578 459 809
8 км
от МКАД
от МКАД
-
20.64 сот.
S участка
S участка
105 000 000
9 км
от МКАД
от МКАД
750 м²
S объекта
S объекта
8 сот.
S участка
S участка
276 986 669
24 км
от МКАД
от МКАД
1050 м²
S объекта
S объекта
26 сот.
S участка
S участка
486 502 227
15 км
от МКАД
от МКАД
1200 м²
S объекта
S объекта
50 сот.
S участка
S участка
333 804 447
9 км
от МКАД
от МКАД
1650 м²
S объекта
S объекта
70 сот.
S участка
S участка
826 371 156
13 км
от МКАД
от МКАД
460 м²
S объекта
S объекта
23 сот.
S участка
S участка
110 000 000
9 км
от МКАД
от МКАД
220 м²
S объекта
S объекта
8 сот.
S участка
S участка
132 000 000
5 км
от МКАД
от МКАД
862 м²
S объекта
S объекта
38 сот.
S участка
S участка
650 000 000
5 км
от МКАД
от МКАД
942 м²
S объекта
S объекта
38 сот.
S участка
S участка
1 390 000 000
24 км
от МКАД
от МКАД
415 м²
S объекта
S объекта
4 сот.
S участка
S участка
49 000 000
22 км
от МКАД
от МКАД
лесной
60 сот.
S участка
S участка
78 000 000
15 км
от МКАД
от МКАД
прилесной
42 сот.
S участка
S участка
320 000 000
24 км
от МКАД
от МКАД
550 м²
S объекта
S объекта
30 сот.
S участка
S участка
269 884 447
7 км
от МКАД
от МКАД
646 м²
S объекта
S объекта
11 сот.
S участка
S участка
550 000 000
22 км
от МКАД
от МКАД
1100 м²
S объекта
S объекта
48 сот.
S участка
S участка
232 000 000
5 км
от МКАД
от МКАД
1015 м²
S объекта
S объекта
56 сот.
S участка
S участка
1 590 000 000
11 км
от МКАД
от МКАД
415 м²
S объекта
S объекта
12 сот.
S участка
S участка
360 000 000
13 км
от МКАД
от МКАД
535 м²
S объекта
S объекта
18 сот.
S участка
S участка
490 000 000
15 км
от МКАД
от МКАД
1000 м²
S объекта
S объекта
40 сот.
S участка
S участка
400 000 000